Nous utilisons des témoins et d’autres technologies pour assurer le fonctionnement et la sécurité de nos services en ligne, et pour vous offrir une expérience personnalisée. En continuant à utiliser nos services en ligne, vous acceptez notre Politique de confidentialité et les conditions d’utilisation. Pour obtenir des informations sur la façon de régler vos paramètres de confidentialité, veuillez consulter notre Politique sur les témoins.
Masquer
Accueil ON Grand Toronto Toronto Etobicoke Humber Bay Shores Humber Bay
1805 - 56 ANNIE CRAIG DRIVE
Directions Imprimer
1805 - 56 ANNIE CRAIG DRIVE 2 900 $/mois
Depuis 3 heures
2 900 $/mois
Masquer
Favoris

1805 - 56 ANNIE CRAIG DRIVE
Toronto (Mimico), Ontario M8V0C8

Numéro MLS® : W12706512
2
Chambres
2
Salles de bain
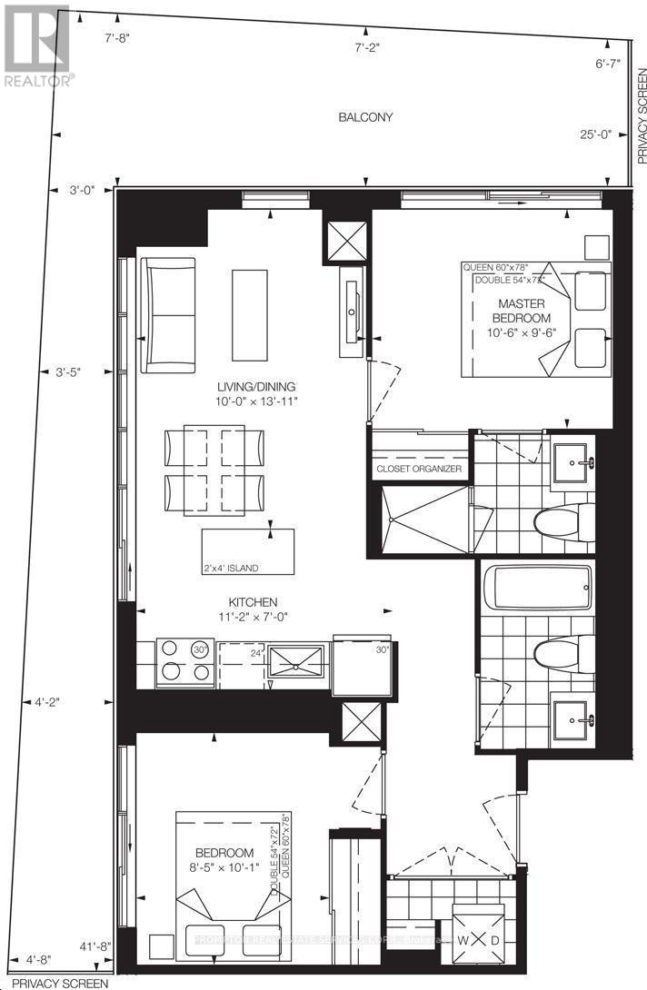
700 - 799
Pieds carrés

Résumé de la propriété

Type de propriété
Unifamiliale
Type de bâtiment
Appartement
Superficie
700 - 799 pi2
Titre
Copropriété divise
Type de stationnement
Stationnement souterrain, Garage
Sur REALTOR.ca depuis
3 heures

Édifice

Chambres
Au-dessus du niveau du sol
2
Salles de bain
Total
2
Caractéristiques intérieures
Appareils électroménagers inclus
Stores, Surface de cuisson, Lave-vaisselle, Sécheuse, Micro-ondes, Four, Machine à laver, Réfrigérateur
Couvre-plancher
plancher en stratifié
Type de sous-sol
Pas de sous-sol
Caractéristiques du bâtiment
Caractéristiques
Balcon, Sans tapis
Protection contre les incendies
Détecteurs de fumée, Agent de sécurité
Commodités qu'offre le bâtiment
Salle d'exercises, Salle de réception, Sauna, Armoire vestiaire, Service de sécurité/conciergerie
Chauffage et refroidissement
Système de refroidissement
Climatisation centrale
Type de chauffage
Air pulsé (Gaz naturel)
Caractéristiques extérieures
Revêtement extérieur
Béton
Piscine
Piscine intérieure
Caractéristiques du quartier
Caractéristiques de la communauté
Animaux interdits
Commodités à proximité
Parc, Transport en commun
Infos entretien ou copropriété
Société de gestion de l'entretien
Crossbridge Condominium Services - 416-551-2167
Stationnement
Type de stationnement
Stationnement souterrain, Garage
Nombre total d'espaces de stationnement
1

Mesures

Superficie
700 - 799 pi2

Pièces

MétriqueImpérial
Niveau du sol
Salon
Salle à manger
Cuisine
Chambre principale
Deuxième chambre

Terrain

Caractéristiques du terrain
Vue
Vue
Données fournies par : Toronto Regional Real Estate Board
Souhaitez-vous visiter cette propriété?
Demander une visite

Inscriptions semblables

SIMON TAM