Nous utilisons des témoins et d’autres technologies pour assurer le fonctionnement et la sécurité de nos services en ligne, et pour vous offrir une expérience personnalisée. En continuant à utiliser nos services en ligne, vous acceptez notre Politique de confidentialité et les conditions d’utilisation. Pour obtenir des informations sur la façon de régler vos paramètres de confidentialité, veuillez consulter notre Politique sur les témoins.
Masquer
Accueil ON St. Catharines - Niagara Région de Niagara Fort Erie Fort Erie Lakeshore
803 BURWELL STREET
Directions Imprimer
803 BURWELL STREET 529 900 $
529 900 $
Masquer
Favoris

803 BURWELL STREET
Fort Erie (Lakeshore), Ontario L2A0H5

Numéro MLS® : X12704680
3
Chambres
2
Salles de bain
1100 - 1500
Pieds carrés

Résumé de la propriété

Type de propriété
Unifamiliale
Type de bâtiment
Maison en rangée
Étages
1.5
Superficie
1100 - 1500 pi2
Titre
Tenure franche
Superficie du terrain
21 x 90 FT
Impôt foncier annuel
0 $
Type de stationnement
Garage attenant, Garage
Sur REALTOR.ca depuis
43 jours

Édifice

Chambres
Au-dessus du niveau du sol
3
Salles de bain
Total
2
Caractéristiques intérieures
Type de sous-sol
Non aménagé
Caractéristiques du bâtiment
Type de fondation
Fondation en béton
Style
En rangée
Location de matérial incluse
Chauffe-eau - gaz, Chauffe-eau
Chauffage et refroidissement
Système de refroidissement
Aucun
Type de chauffage
Air pulsé (Gaz naturel)
Services publics
Égouts
Égout sanitaire
Eau
Approvisionnement en eau par la municipalité
Caractéristiques extérieures
Revêtement extérieur
Parement de brique, Bardage en vinyle
Stationnement
Type de stationnement
Garage attenant, Garage
Nombre total d'espaces de stationnement
2

Mesures

Superficie
1100 - 1500 pi2

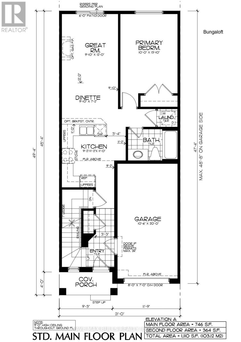
Pièces

MétriqueImpérial
Niveau principal
Grande salle
Salle à manger
Cuisine
Chambre principale
Deuxième niveau
Deuxième chambre
Troisième chambre

Terrain

Caractéristiques du terrain
Façade
21 pi
Superficie du terrain
90 pi
Données fournies par : Toronto Regional Real Estate Board
Souhaitez-vous visiter cette propriété?
Demander une visite

Inscriptions semblables

SID SARKAR