Nous utilisons des témoins et d’autres technologies pour assurer le fonctionnement et la sécurité de nos services en ligne, et pour vous offrir une expérience personnalisée. En continuant à utiliser nos services en ligne, vous acceptez notre Politique de confidentialité et les conditions d’utilisation. Pour obtenir des informations sur la façon de régler vos paramètres de confidentialité, veuillez consulter notre Politique sur les témoins.
Masquer
Accueil AB Grand Calgary Calgary Altadore
4511 17 Street SW
Directions Imprimer
4511 17 Street SW 1 899 500 $
Depuis 16 heures
1 899 500 $
Masquer
Favoris

4511 17 Street SW
Calgary, Alberta T2T4R3

Numéro MLS® : A2249806
3 + 1
Chambres
5
Salles de bain
2693
Pieds carrés

Résumé de la propriété

Type de propriété
Unifamiliale
Type de bâtiment
Unifamilial
Étages
3
Superficie
2693 pi2
Titre
Tenure franche
Superficie du terrain
270.66 m2|0-4 050 pi2
Date de construction
2026
Type de stationnement
Garage détaché (2)
Sur REALTOR.ca depuis
16 heures

Édifice

Chambres
Au-dessus du niveau du sol
3
Au-dessous du niveau du sol
1
Salles de bain
Total
5
Partielle
1
Caractéristiques intérieures
Appareils électroménagers inclus
Réfrigérateur, Surface de cuisson au gaz, Lave-vaisselle, Micro-ondes, Four encastré, Ouvre-porte de garage, Machine à laver et sécheuse
Couvre-plancher
plancher recouvert de tapis, plancher de bois franc, Carrelage, Planche vinyle
Type de sous-sol
Sous-sol complet (Aménagé)
Caractéristiques du bâtiment
Caractéristiques
Voie d'accès à l'arrière, Mini-bar, Range-placards, Branchement barbecue à gaz
Type de fondation
Béton coulé
Style
Isolée
Structures
Terrasse
Chauffage et refroidissement
Système de refroidissement
Voir les notes
Foyer
1
Type de chauffage
Air pulsé
Caractéristiques extérieures
Revêtement extérieur
Brique, Bardage en panneaux composites, Stuc
Caractéristiques du quartier
Caractéristiques de la communauté
Ensemble domiciliaire près d'un terrain de golf
Commodités à proximité
Terrain de golf, Parc, Terrain de jeu, Loisirs à proximité, Écoles, Centres commerciaux
Stationnement
Type de stationnement
Garage détaché (2)
Nombre total d'espaces de stationnement
2

Mesures

Superficie
2693 pi2
Superficie totale aménagée
2693 pi2

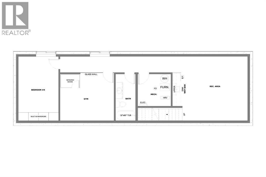
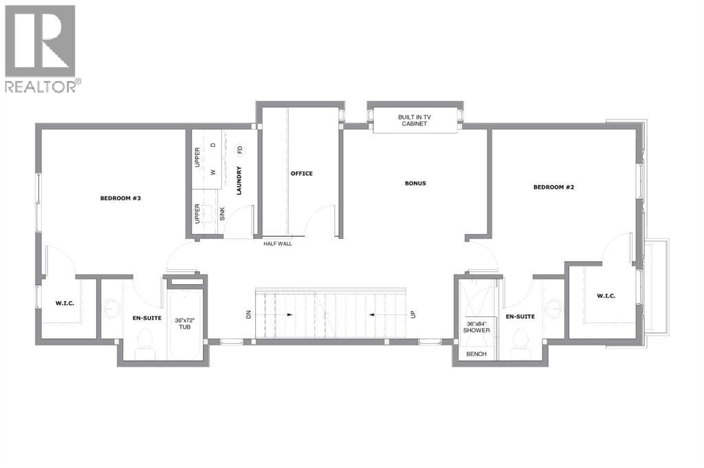
Pièces

MétriqueImpérial
Niveau principal
Salon
Cuisine
Salle à manger
Salle de bain - 2 éléments
Deuxième niveau
Chambre à coucher
Chambre à coucher
Bureau
Pièce supplémentaire
Buanderie
Salle de bain - 3 éléments
Salle de bain - 4 éléments
Troisième niveau
Chambre principale
Autre
Pièce supplémentaire
Salle de bain - 5 éléments
Sous-sol
Chambre à coucher
Salle de jeux, récréative
Appareil de chauffage
Salle de bain - 4 éléments

Terrain

Caractéristiques du terrain
Clôture
Clôture
Façade
8.15 m
Superficie du terrain
33.21 m
Données fournies par : Pillar 9™
Souhaitez-vous visiter cette propriété?
Demander une visite

Inscriptions semblables

Lisa Johnson