Nous utilisons des témoins et d’autres technologies pour assurer le fonctionnement et la sécurité de nos services en ligne, et pour vous offrir une expérience personnalisée. En continuant à utiliser nos services en ligne, vous acceptez notre Politique de confidentialité et les conditions d’utilisation. Pour obtenir des informations sur la façon de régler vos paramètres de confidentialité, veuillez consulter notre Politique sur les témoins.
Masquer
Accueil BC Sayward
561 McMillan Dr
Directions Imprimer
561 McMillan Dr 449 000 $
Depuis 19 heures
449 000 $
Masquer
Favoris

561 McMillan Dr
Sayward, Colombie-Britannique V0P1R0

Numéro MLS® : 1023180
3
Chambres
2
Salles de bain
1335
Pieds carrés

Résumé de la propriété

Type de propriété
Unifamiliale
Type de bâtiment
Unifamilial
Superficie
1335 pi2
Titre
Tenure franche
Superficie du terrain
8712 pi2
Date de construction
1968
Impôt foncier annuel
3 528,96 $
Type de stationnement
Place de stationnement
Sur REALTOR.ca depuis
19 heures

Édifice

Salles de bain
Total
2
Caractéristiques intérieures
Appareils électroménagers inclus
Réfrigérateur, Cuisinière, Machine à laver, Sécheuse
Chauffage et refroidissement
Système de refroidissement
Voir les notes
Type de chauffage
Air pulsé, (Huile), (Bois)
Stationnement
Type de stationnement
Place de stationnement
Nombre total d'espaces de stationnement
4

Mesures

Superficie
1335 pi2
Superficie totale aménagée
1335 pi2

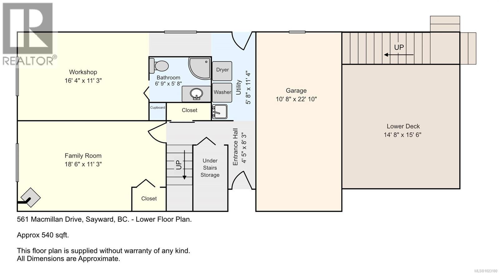
Pièces

MétriqueImpérial
Niveau principal
Salle de bain
Chambre à coucher
Chambre à coucher
Chambre principale
Cuisine
Salle à manger
Salon
Niveau inférieur
Atelier
Buanderie
Salle de bain
Salle familiale

Terrain

Autres informations sur la propriété
Type de Zonage
Résidentiel
Données fournies par : Vancouver Island Real Estate Board
Souhaitez-vous visiter cette propriété?
Demander une visite

Inscriptions semblables

Susan Mallinson