Nous utilisons des témoins et d’autres technologies pour assurer le fonctionnement et la sécurité de nos services en ligne, et pour vous offrir une expérience personnalisée. En continuant à utiliser nos services en ligne, vous acceptez notre Politique de confidentialité et les conditions d’utilisation. Pour obtenir des informations sur la façon de régler vos paramètres de confidentialité, veuillez consulter notre Politique sur les témoins.
Masquer
Accueil ON Greater Napanee
137 THOMAS STREET W
Directions Imprimer
137 THOMAS STREET W 599 900 $
Depuis 1 journée
599 900 $
Masquer
Favoris

137 THOMAS STREET W
Greater Napanee (Greater Napanee), Ontario K7R2H4

Numéro MLS® : X12703036
4
Chambres
3
Salles de bain
3000 - 3500
Pieds carrés

Résumé de la propriété

Type de propriété
Unifamiliale
Type de bâtiment
Unifamilial
Étages
1.5
Superficie
3000 - 3500 pi2
Titre
Tenure franche
Superficie du terrain
208.7 x 106.5 FT|moins de 1/2 acre
Impôt foncier annuel
4 017,97 $
Type de stationnement
Garage détaché, Garage
Sur REALTOR.ca depuis
1 journée

Édifice

Chambres
Au-dessus du niveau du sol
4
Salles de bain
Total
3
Caractéristiques intérieures
Appareils électroménagers inclus
Four encastré, Lave-vaisselle, Micro-ondes, Four, Cuisinière
Type de sous-sol
Vide sanitaire (Non aménagé)
Caractéristiques du bâtiment
Caractéristiques
Terrain irrégulier, Pompe de vidange
Type de fondation
Blocs de béton
Style
Isolée
Protection contre les incendies
Système d'alarme
Location de matérial incluse
Chauffe-eau
Structures
Terrasse(s), Remise
Chauffage et refroidissement
Système de refroidissement
Climatisation centrale
Type de chauffage
Air pulsé (Gaz naturel)
Services publics
Services publics disponibles
Service du câble (Installé), Électricité (Installé), Service d'égout (Installé)
Égouts
Égout sanitaire
Eau
Approvisionnement en eau par la municipalité
Caractéristiques extérieures
Revêtement extérieur
Brique
Caractéristiques du quartier
Commodités à proximité
Un hôpital, Lieu de culte, Écoles, Parc
Stationnement
Type de stationnement
Garage détaché, Garage
Nombre total d'espaces de stationnement
5

Mesures

Superficie
3000 - 3500 pi2

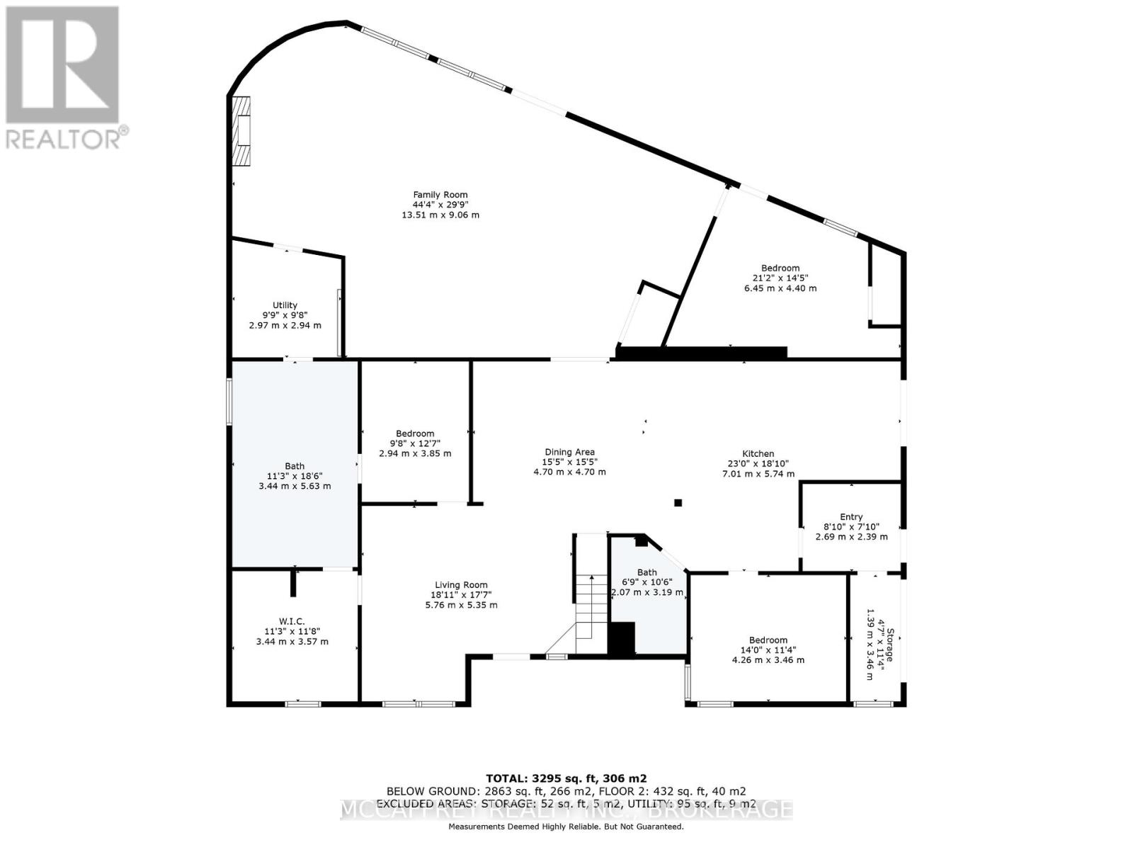
Pièces

MétriqueImpérial
Niveau principal
Salle familiale
Troisième chambre
Chambre à coucher
Vestibule
Autre
Deuxième chambre
Salle de bain
Local de services
Autre
Salon
Salle à manger
Cuisine
Salle de bain
Deuxième niveau
Chambre principale
Salle de bain

Terrain

Caractéristiques du terrain
Clôture
Cour clôturée
Façade
208 pi 8 po
Superficie du terrain
106 pi 6 po
Autres informations sur la propriété
Accès
Voie publique
Servitudes
Servitude
Données fournies par : Kingston & Area Real Estate Association
Souhaitez-vous visiter cette propriété?
Demander une visite

Inscriptions semblables

SHANNON MCCAFFREY