Nous utilisons des témoins et d’autres technologies pour assurer le fonctionnement et la sécurité de nos services en ligne, et pour vous offrir une expérience personnalisée. En continuant à utiliser nos services en ligne, vous acceptez notre Politique de confidentialité et les conditions d’utilisation. Pour obtenir des informations sur la façon de régler vos paramètres de confidentialité, veuillez consulter notre Politique sur les témoins.
Masquer
Accueil ON Dufferin Grand Valley
402 - 50 EMMA STREET
Directions Imprimer
402 - 50 EMMA STREET 729 000 $
Depuis 1 journée
729 000 $
Masquer
Favoris

402 - 50 EMMA STREET
East Luther Grand Valley (Grand Valley), Ontario L9W5P9

Numéro MLS® : X12702506
2
Chambres
2
Salles de bain
1000 - 1199
Pieds carrés

Résumé de la propriété

Type de propriété
Unifamiliale
Type de bâtiment
Appartement
Superficie
1000 - 1199 pi2
Titre
Copropriété divise
Âge de l'édifice
Bâtiment neuf
Impôt foncier annuel
0 $
Type de stationnement
Stationnement souterrain, Garage
Sur REALTOR.ca depuis
1 journée

Édifice

Chambres
Au-dessus du niveau du sol
2
Salles de bain
Total
2
Caractéristiques intérieures
Appareils électroménagers inclus
Chauffe-eau
Couvre-plancher
Vinyle
Type de sous-sol
Pas de sous-sol
Caractéristiques du bâtiment
Caractéristiques
Ascenseur, Balcon, Sans tapis, Buanderie
Commodités qu'offre le bâtiment
Stationnement pour les visiteurs, Armoire vestiaire
Location de matérial incluse
Chauffe-eau
Chauffage et refroidissement
Type de chauffage
Autre
Caractéristiques extérieures
Revêtement extérieur
Brique, Bardage en vinyle
Caractéristiques du quartier
Caractéristiques de la communauté
Animaux permis avec restrictions, Centre communautaire
Commodités à proximité
Parc, Lieu de culte, Écoles
Infos entretien ou copropriété
Frais d'entretien
711,57 $ mois
Les frais d'entretien comprennent
Entretien de la zone commune, Parking, Assurance
Société de gestion de l'entretien
Laker Property Management LTD
Stationnement
Type de stationnement
Stationnement souterrain, Garage
Nombre total d'espaces de stationnement
1

Mesures

Superficie
1000 - 1199 pi2

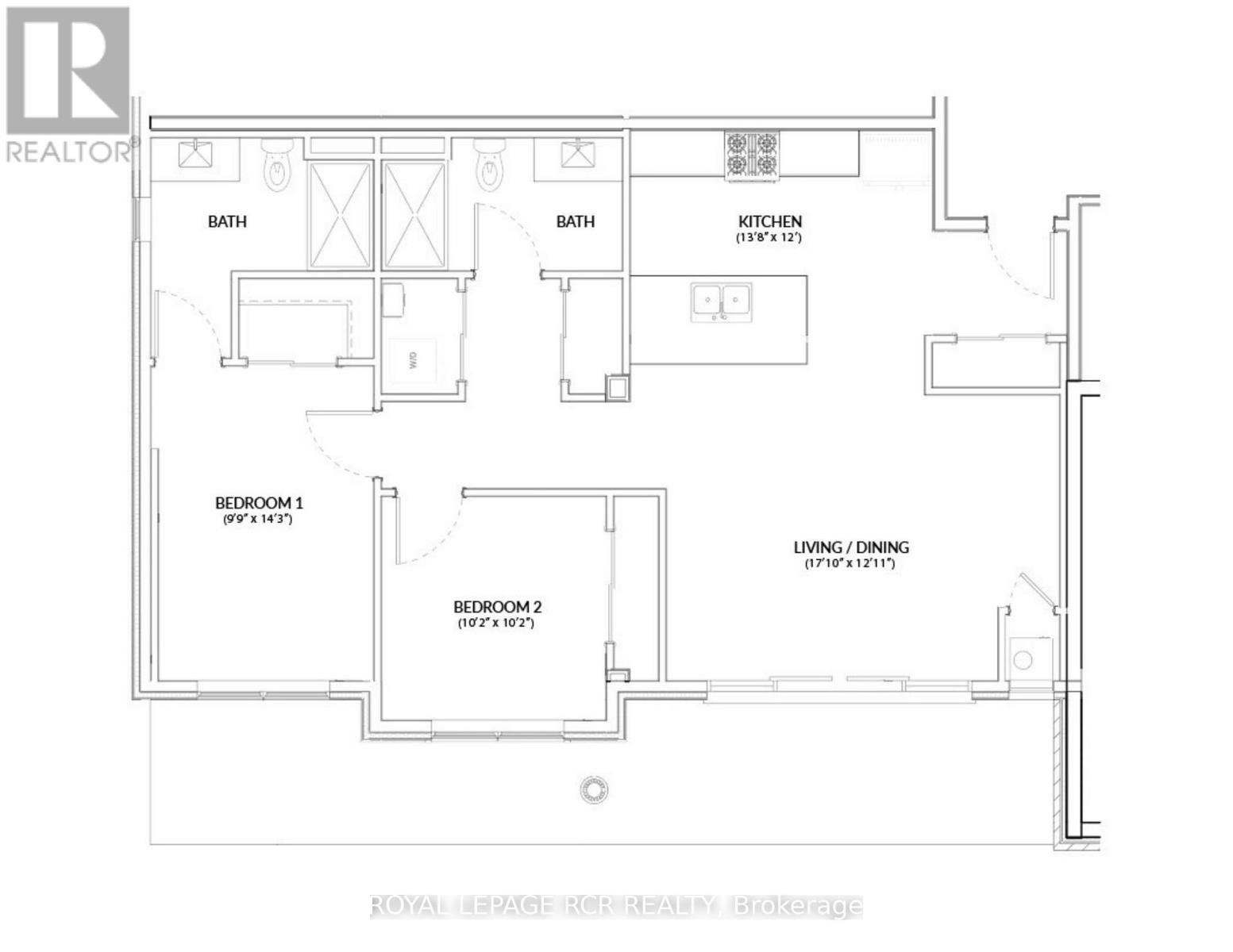
Pièces

MétriqueImpérial
Autre
Cuisine
Salon
Chambre à coucher
Deuxième chambre

Terrain

Caractéristiques du terrain
Vue
Vue sur la rivière
Caractéristiques du bord de l'eau
Eau de surface
rivière/courant
Données fournies par : Toronto Regional Real Estate Board
Souhaitez-vous visiter cette propriété?
Demander une visite

Inscriptions semblables

JENNA WILDEBOER