Nous utilisons des témoins et d’autres technologies pour assurer le fonctionnement et la sécurité de nos services en ligne, et pour vous offrir une expérience personnalisée. En continuant à utiliser nos services en ligne, vous acceptez notre Politique de confidentialité et les conditions d’utilisation. Pour obtenir des informations sur la façon de régler vos paramètres de confidentialité, veuillez consulter notre Politique sur les témoins.
Masquer
Accueil BC Summerland
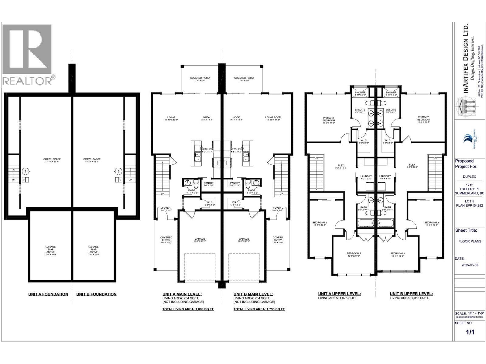
1715 Treffry Place
Directions Imprimer
1715 Treffry Place 749 900 $
Depuis 2 jours
749 900 $
Masquer
Favoris

1715 Treffry Place
Summerland, Colombie-Britannique V0H1Z9

Numéro MLS® : 10372525
3
Chambres
3
Salles de bain
1835
Pieds carrés

Résumé de la propriété

Type de propriété
Unifamiliale
Type de bâtiment
Duplex
Étages
2
Superficie
1835 pi2
Titre
Tenure franche
Superficie du terrain
0.12 a|moins de 1 acre
Date de construction
2026
Impôt foncier annuel
0 $
Type de stationnement
Garage attenant (1)
Sur REALTOR.ca depuis
2 jours

Prix et historique

Date Statut Prix vendu
26 mars 2022 Vente conclue 354 900 $

Édifice

Salles de bain
Total
3
Partielle
1
Chauffage et refroidissement
Système de refroidissement
Climatisation centrale
Type de chauffage
Air pulsé
Services publics
Égouts
Égout municipal
Eau
Approvisionnement en eau par la municipalité
Caractéristiques extérieures
Style de toiture
Bardeaux d'asphalte
Stationnement
Type de stationnement
Garage attenant (1)
Nombre total d'espaces de stationnement
2

Mesures

Superficie
1835 pi2

Pièces

MétriqueImpérial
Niveau principal
Vestibule
Autre
Vestibule
Garde-manger
Salle de bain - 2 éléments
Cuisine
Recoin-repas
Salon
Deuxième niveau
Chambre à coucher
Chambre à coucher
Salle de bain - 4 éléments
Buanderie
Salle de jeu
Autre
Salle de bain attenante - (4 éléments)
Chambre principale
Données fournies par : Association of Interior REALTORS®
Souhaitez-vous visiter cette propriété?
Demander une visite

Inscriptions semblables

Nicole McGillis