Nous utilisons des témoins et d’autres technologies pour assurer le fonctionnement et la sécurité de nos services en ligne, et pour vous offrir une expérience personnalisée. En continuant à utiliser nos services en ligne, vous acceptez notre Politique de confidentialité et les conditions d’utilisation. Pour obtenir des informations sur la façon de régler vos paramètres de confidentialité, veuillez consulter notre Politique sur les témoins.
Masquer
Accueil BC Lake Cowichan
212 Oak Lane
Directions Imprimer
212 Oak Lane 574 900 $
Depuis 3 jours
574 900 $
Masquer
Favoris

212 Oak Lane
Lake Cowichan, Colombie-Britannique V0R2G0

Numéro MLS® : 1022851
2
Chambres
2
Salles de bain
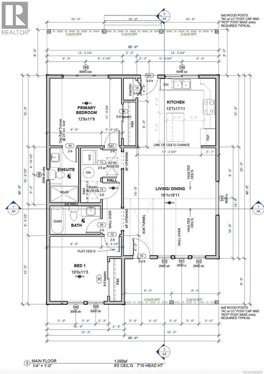
1068
Pieds carrés

Résumé de la propriété

Type de propriété
Unifamiliale
Type de bâtiment
Unifamilial
Superficie
1068 pi2
Titre
Tenure franche
Superficie du terrain
3049 pi2
Date de construction
2025
Impôt foncier annuel
1 717 $
Type de stationnement
Stationnement à ciel ouvert
Sur REALTOR.ca depuis
3 jours

Édifice

Salles de bain
Total
2
Caractéristiques intérieures
Appareils électroménagers inclus
Réfrigérateur, Cuisinière, Machine à laver, Sécheuse
Caractéristiques du bâtiment
Caractéristiques
Site central, Autre, Rectangulaire
Chauffage et refroidissement
Système de refroidissement
Entièrement climatisé
Type de chauffage
Thermopompe
Stationnement
Type de stationnement
Stationnement à ciel ouvert
Nombre total d'espaces de stationnement
2

Mesures

Superficie
1068 pi2
Superficie totale aménagée
1068 pi2

Pièces

MétriqueImpérial
Niveau principal
Salle de bain
Chambre à coucher
Chambres communicantes, agencement en suite
Chambre principale
Cuisine
Salon/Salle à manger

Terrain

Autres informations sur la propriété
Accès
Accès routier
Type de Zonage
Résidentiel
Données fournies par : Vancouver Island Real Estate Board
Souhaitez-vous visiter cette propriété?
Demander une visite

Inscriptions semblables

Cal Kaiser