Nous utilisons des témoins et d’autres technologies pour assurer le fonctionnement et la sécurité de nos services en ligne, et pour vous offrir une expérience personnalisée. En continuant à utiliser nos services en ligne, vous acceptez notre Politique de confidentialité et les conditions d’utilisation. Pour obtenir des informations sur la façon de régler vos paramètres de confidentialité, veuillez consulter notre Politique sur les témoins.
Masquer
Accueil QC Grande région de Québec Québec Les Rivières Neufchatel Est-Lebourgneuf
1259 Rue Larche
Directions Imprimer
1259 Rue Larche 399 900 $
Depuis 2 jours
Prochaine visite libre
17
janv.
399 900 $
Masquer
Favoris

1259 Rue Larche
Québec (Les Rivières), Québec G2K1X7

Numéro MLS® : 21898542
3
Chambres
1
Salles de bain
1378
Pieds carrés

Description de l’inscription

Celle que vous attendiez! Au coeur du Mesnil, magnifique maison de ville unité de coin très bien divisée et rénovée, offrant cuisine ROCHON avec comptoirs de quartz, salle de bain MATHURIN et 2 salles d'eau, planchers de bois en chêne sablage au rez-de-chaussée ainsi que les escaliers sans contremarches, foyer combustion lente, thermopompe 2 têtes, grandes chambres à l'étage et seulement 1 mur à rajouter au sous-sol pour une 3e si désiré, méticuleusement entretenue c'est une RARETÉ, faites vite! * La maison n'est pas détenue en copropriété seulement une partie du terrain donc aucun entretien pour piscine, gazon et stationnement, frais minime* (51148139)

Visites libres

17 janv.
12 h - 14 h
Ajouter au calendrier

Résumé de la propriété

Type de propriété
Unifamiliale
Type de bâtiment
Unifamilial
Étages
2
Superficie
1378 pi2
Quartier
Neufchâtel-Est/Lebourgneuf
Superficie du terrain
4024 pi2
Date de construction
1989
Type de stationnement
Autre
Sur REALTOR.ca depuis
2 jours

Édifice

Salles de bain
Total
1
Partielle
2
Caractéristiques intérieures
Caractéristiques du sous-sol
Six pieds et plus
Type de sous-sol
Sous-sol complet (Aménagé)
Caractéristiques du bâtiment
Caractéristiques
Terrain plat, Voie d'accès pavée, Fenêtres PVC, Fenêtres à manivelle, Fenêtre à la française
Type de fondation
Béton coulé
Style
En rangée
Chauffage et refroidissement
Système de refroidissement
Échangeur d'air
Foyer
1
Type de foyer
(Inconnu)
Type de chauffage
(Électrique)
Services publics
Égouts
Égout municipal
Eau
Approvisionnement en eau par la municipalité
Caractéristiques extérieures
Style de toiture
Bardeaux d'asphalte
Revêtement extérieur
Brique
Piscine
Piscine creusée
Caractéristiques
Piscine chauffée
Caractéristiques du quartier
Commodités à proximité
Autoroute, Parc, Écoles, Transport en commun
Stationnement
Type de stationnement
Autre
Nombre total d'espaces de stationnement
2

Mesures

Superficie
1378 pi2

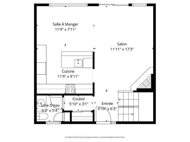
Pièces

MétriqueImpérial
Niveau principal
Autre
Salon
Salle à manger
Cuisine
Salle de bains partielle
Deuxième niveau
Chambre principale
Autre
Chambre à coucher
Salle de bain
Sous-sol
Salle familiale
Chambre à coucher
Bureau
Salle de bains partielle
Buanderie
Lieu de rangement

Terrain

Caractéristiques du terrain
Façade
30 pi
Autres informations sur la propriété
Type de Zonage
Résidentiel
Caractéristiques de la ferme
Type de ferme
Autre
Souhaitez-vous visiter cette propriété?
Demander une visite

Inscriptions semblables

Richard Turmel