Nous utilisons des témoins et d’autres technologies pour assurer le fonctionnement et la sécurité de nos services en ligne, et pour vous offrir une expérience personnalisée. En continuant à utiliser nos services en ligne, vous acceptez notre Politique de confidentialité et les conditions d’utilisation. Pour obtenir des informations sur la façon de régler vos paramètres de confidentialité, veuillez consulter notre Politique sur les témoins.
Masquer
Accueil ON Grand Toronto Toronto York Nord Bermondsey Victoria Village
24 PINEBROOK AVENUE
Directions Imprimer
24 PINEBROOK AVENUE 799 000 $
Modification du prix le 2026/02/03
799 000 $
-50 000 $
849 000 $
Masquer
Favoris

24 PINEBROOK AVENUE
Toronto (Victoria Village), Ontario M4A1Y9

Numéro MLS® : C12694710
3
Chambres
1
Salles de bain
1100 - 1500
Pieds carrés

Résumé de la propriété

Type de propriété
Unifamiliale
Type de bâtiment
Unifamilial
Étages
1
Superficie
1100 - 1500 pi2
Titre
Tenure franche
Superficie du terrain
33 x 100.5 FT
Âge de l'édifice
51 à 99 ans
Impôt foncier annuel
3 929 $
Type de stationnement
Garage
Sur REALTOR.ca depuis
24 jours

Édifice

Chambres
Au-dessus du niveau du sol
3
Salles de bain
Total
1
Caractéristiques intérieures
Appareils électroménagers inclus
Couvre-fenêtre
Caractéristiques du sous-sol
Entrée distincte
Caractéristiques du bâtiment
Type de fondation
Fondation en béton, Blocs de béton
Style
Jumelée
Style d'architecture
Bungalow surélevé
Chauffage et refroidissement
Système de refroidissement
Climatisation centrale
Type de chauffage
Air pulsé (Gaz naturel)
Services publics
Égouts
Égout sanitaire
Eau
Approvisionnement en eau par la municipalité
Caractéristiques extérieures
Revêtement extérieur
Brique
Stationnement
Type de stationnement
Garage
Nombre total d'espaces de stationnement
5

Mesures

Superficie
1100 - 1500 pi2

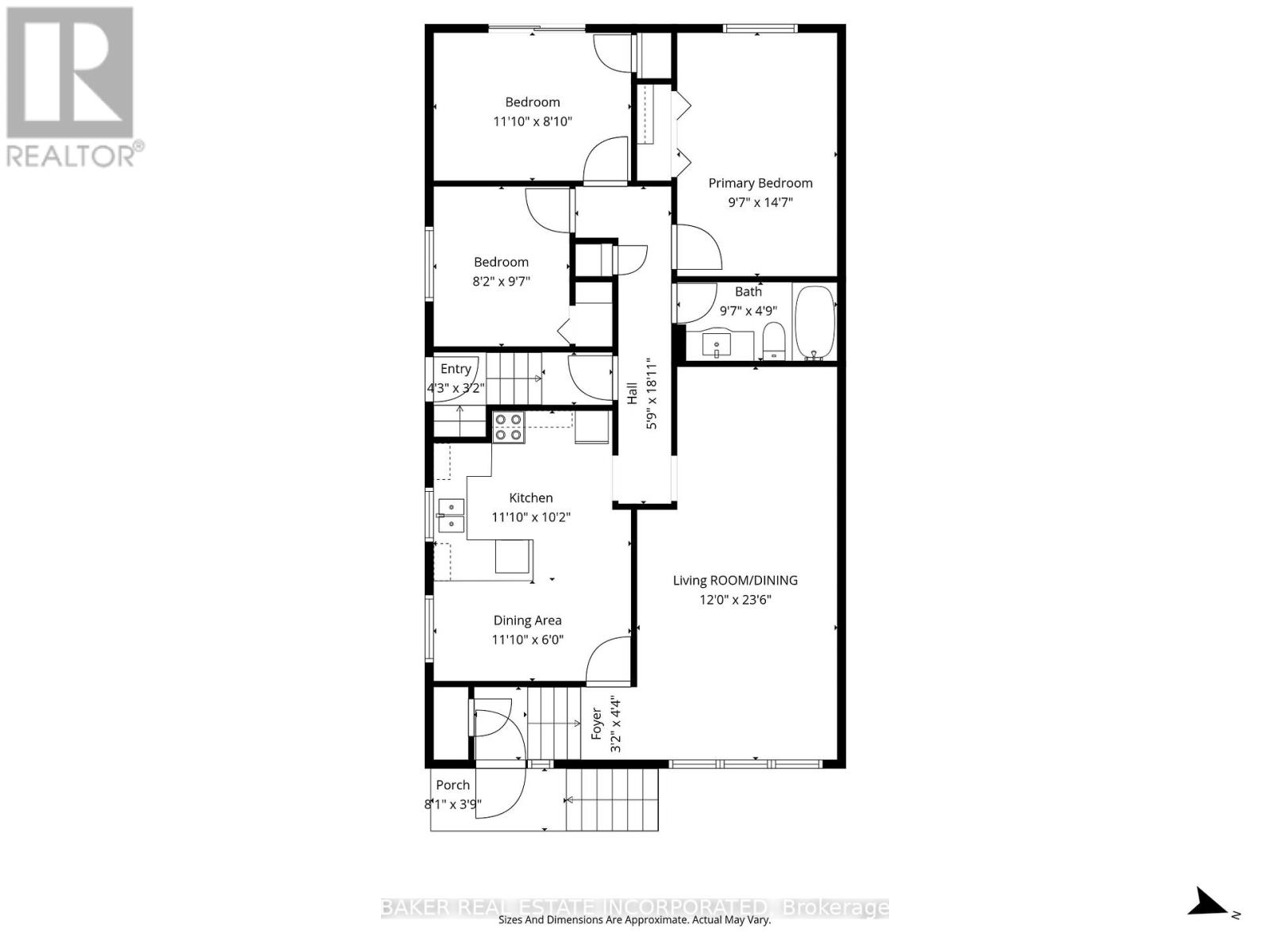
Pièces

MétriqueImpérial
Sous-sol
Salle de jeux, récréative
Buanderie
Local de services
Niveau supérieur
Salon
Salle à manger
Cuisine
Salle de repas
Chambre principale
Deuxième chambre
Troisième chambre

Terrain

Caractéristiques du terrain
Façade
33 pi
Superficie du terrain
100 pi 6 po
Données fournies par : Toronto Regional Real Estate Board
Souhaitez-vous visiter cette propriété?
Demander une visite

Inscriptions semblables

PETER GIAOURIS