Nous utilisons des témoins et d’autres technologies pour assurer le fonctionnement et la sécurité de nos services en ligne, et pour vous offrir une expérience personnalisée. En continuant à utiliser nos services en ligne, vous acceptez notre Politique de confidentialité et les conditions d’utilisation. Pour obtenir des informations sur la façon de régler vos paramètres de confidentialité, veuillez consulter notre Politique sur les témoins.
Masquer
Accueil NS Grand Halifax Comté de Halifax Halifax Upper Sackville
Lot 5128 246 Orchid Court
Directions Imprimer
Lot 5128 246 Orchid Court 729 900 $
729 900 $
Masquer
Favoris

Lot 5128 246 Orchid Court
Middle Sackville, Nouvelle-Écosse B4E3C3

Numéro MLS® : 202600730
3 + 1
Chambres
3
Salles de bain
1951
Pieds carrés

Résumé de la propriété

Type de propriété
Unifamiliale
Type de bâtiment
Unifamilial
Étages
1
Superficie
1951 pi2
Titre
Tenure franche
Superficie du terrain
1.4666 a
Type de stationnement
Garage, Garage attenant
Sur REALTOR.ca depuis
45 jours

Édifice

Chambres
Au-dessus du niveau du sol
3
Au-dessous du niveau du sol
1
Salles de bain
Total
3
Partielle
0
Caractéristiques intérieures
Couvre-plancher
Tuile céramique, plancher en stratifié
Caractéristiques du bâtiment
Type de fondation
Béton coulé
Style
Isolée
Style d'architecture
2 étages
Chauffage et refroidissement
Système de refroidissement
Unité murale, Thermopompe
Services publics
Égouts
Fosse septique
Eau
Puits foré à la sondeuse
Caractéristiques extérieures
Revêtement extérieur
Vinyle
Stationnement
Type de stationnement
Garage, Garage attenant
Fonctions d’accessibilité
Entrée et accès
Cadres de porte d'entrée : min. 32 po
Cuisine et électroménagers
Diamètre de rotation dans la cuisine : min. 5 pi
Déplacement à l'intérieur
Cadres de porte : min. 32 po

Mesures

Superficie
1951 pi2
Source : Autre
Superficie totale aménagée
1951 pi2

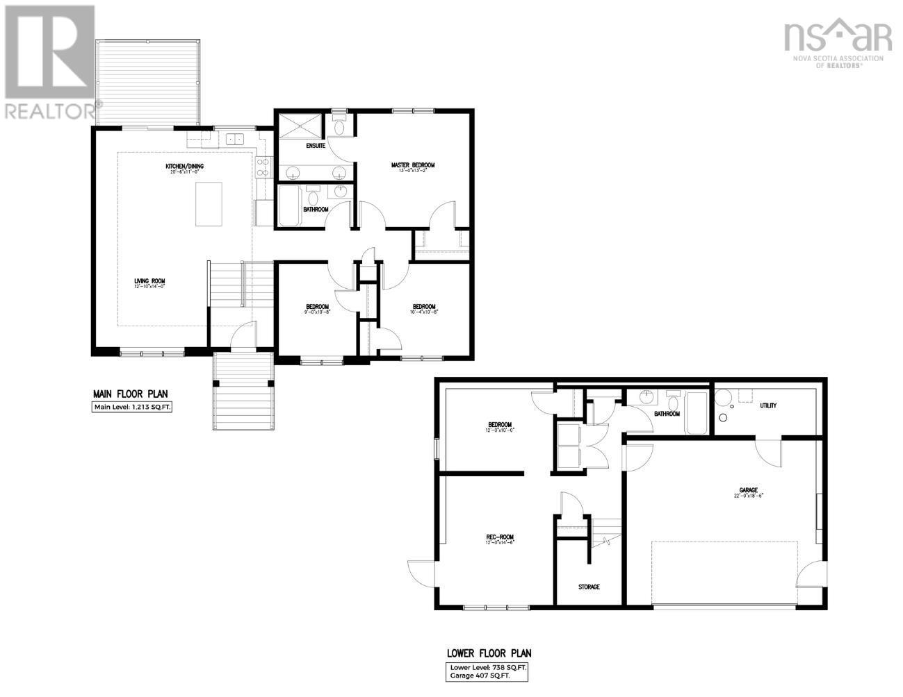
Pièces

MétriqueImpérial
Niveau principal
Salon
Cuisine avec coin repas
Bain (nbre de pièces 1-6)
Chambre principale
Ensuite (nbre de pièces 2-6)
Chambre à coucher
Chambre à coucher
Niveau inférieur
Salle de jeux, récréative
Chambre à coucher
Chambre à coucher
Local de services
Autre
Bain (nbre de pièces 1-6)
Données fournies par : Nova Scotia Association of REALTORS®
Souhaitez-vous visiter cette propriété?
Demander une visite

902-880-4222
902-455-6738

Inscriptions semblables

Scott Moulton