Nous utilisons des témoins et d’autres technologies pour assurer le fonctionnement et la sécurité de nos services en ligne, et pour vous offrir une expérience personnalisée. En continuant à utiliser nos services en ligne, vous acceptez notre Politique de confidentialité et les conditions d’utilisation. Pour obtenir des informations sur la façon de régler vos paramètres de confidentialité, veuillez consulter notre Politique sur les témoins.
Masquer
Accueil AB Grand Edmonton Division No. 11 Edmonton Rio Terrace
7305B 155 ST NW
Directions Imprimer
7305B 155 ST NW 1 479 900 $
1 479 900 $
Masquer
Favoris

7305B 155 ST NW
Edmonton, Alberta T5R1V4

Numéro MLS® : E4469913
3
Chambres
5
Salles de bain
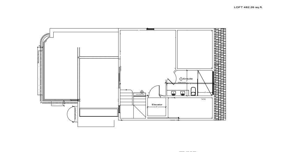
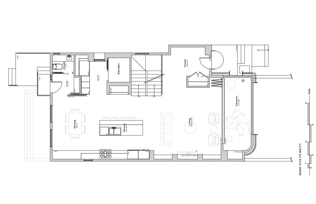
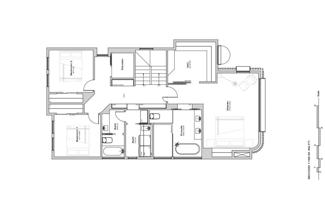
2689
Pieds carrés

Résumé de la propriété

Type de propriété
Unifamiliale
Type de bâtiment
Unifamilial
Étages
2.5
Superficie
2689 pi2
Titre
Tenure franche
Superficie du terrain
390.57 m2
Date de construction
2026
Type de stationnement
Garage attenant
Sur REALTOR.ca depuis
44 jours

Description officielle

Plan :- 2222604 Block :- 9 Lot :- 10B

Édifice

Salles de bain
Total
5
Partielle
2
Caractéristiques intérieures
Appareils électroménagers inclus
Lave-vaisselle, Sécheuse, Four encastré, Réfrigérateur, Cuisinière, Machine à laver
Type de sous-sol
Sous-sol complet (Aménagé)
Type de plafond
En voûte
Caractéristiques du bâtiment
Caractéristiques
Aucune voie d'accès à l'arrière, Maison sans animaux, Maison sans fumeurs
Style
Isolée
Structures
Terrasse
Chauffage et refroidissement
Type de foyer
Inconnu (Gaz)
Type de chauffage
Air pulsé, Système de chauffage par rayonnement à partir du plancher
Caractéristiques du quartier
Commodités à proximité
Écoles
Stationnement
Type de stationnement
Garage attenant
Nombre total d'espaces de stationnement
4

Mesures

Superficie
2689 pi2

Pièces

MétriqueImpérial
Niveau principal
Salon
Salle à manger
Cuisine
Sous-sol
Salle de jeu
Niveau supérieur
Salle familiale
Chambre principale
Deuxième chambre
Troisième chambre

Terrain

Caractéristiques du terrain
Clôture
Non clôturé
Vue
Vue sur une vallée
Données fournies par : REALTORS® Association of Edmonton
Souhaitez-vous visiter cette propriété?
Demander une visite

Inscriptions semblables

Adam J. Benke