Nous utilisons des témoins et d’autres technologies pour assurer le fonctionnement et la sécurité de nos services en ligne, et pour vous offrir une expérience personnalisée. En continuant à utiliser nos services en ligne, vous acceptez notre Politique de confidentialité et les conditions d’utilisation. Pour obtenir des informations sur la façon de régler vos paramètres de confidentialité, veuillez consulter notre Politique sur les témoins.
Masquer
Accueil BC Grand Kamloops Kamloops Juniper Ridge
3080 Kicking Horse Drive
Directions Imprimer
3080 Kicking Horse Drive 3 190 000 $
Depuis 3 jours
3 190 000 $
Masquer
Favoris

3080 Kicking Horse Drive
Kamloops, Colombie-Britannique V2E2T6

Numéro MLS® : 10372299
5
Chambres
7
Salles de bain
8056
Pieds carrés

Résumé de la propriété

Type de propriété
Unifamiliale
Type de bâtiment
Unifamilial
Étages
3
Superficie
8056 pi2
Titre
Tenure franche
Superficie du terrain
0.53 a|moins de 1 acre
Date de construction
2006
Impôt foncier annuel
17 356,22 $
Type de stationnement
Garage attenant (2)
Sur REALTOR.ca depuis
3 jours

Prix et historique

Date Statut Prix vendu
10 mai 2016 Vente conclue 1 600 000 $

Édifice

Salles de bain
Total
7
Partielle
4
Caractéristiques intérieures
Appareils électroménagers inclus
Plaque de cuisson, Réfrigérateur, Lave-vaisselle, Sécheuse, Four, Machine à laver, Machine à laver et sécheuse, Four encastré
Couvre-plancher
Recouvrements mixtes
Type de sous-sol
Sous-sol complet
Caractéristiques du bâtiment
Style
Isolée
Chauffage et refroidissement
Système de refroidissement
Climatisation centrale
Foyer
5
Type de foyer
Inconnu (Gaz)
Type de chauffage
Air pulsé, (Autre), Voir les remarques
Services publics
Égouts
Égout municipal
Eau
Approvisionnement en eau par la municipalité
Caractéristiques extérieures
Style de toiture
Bardeaux d'asphalte
Caractéristiques du quartier
Commodités à proximité
Parc, Loisirs, Écoles, Centres commerciaux
Stationnement
Type de stationnement
Garage attenant (2)
Nombre total d'espaces de stationnement
2

Mesures

Superficie
8056 pi2

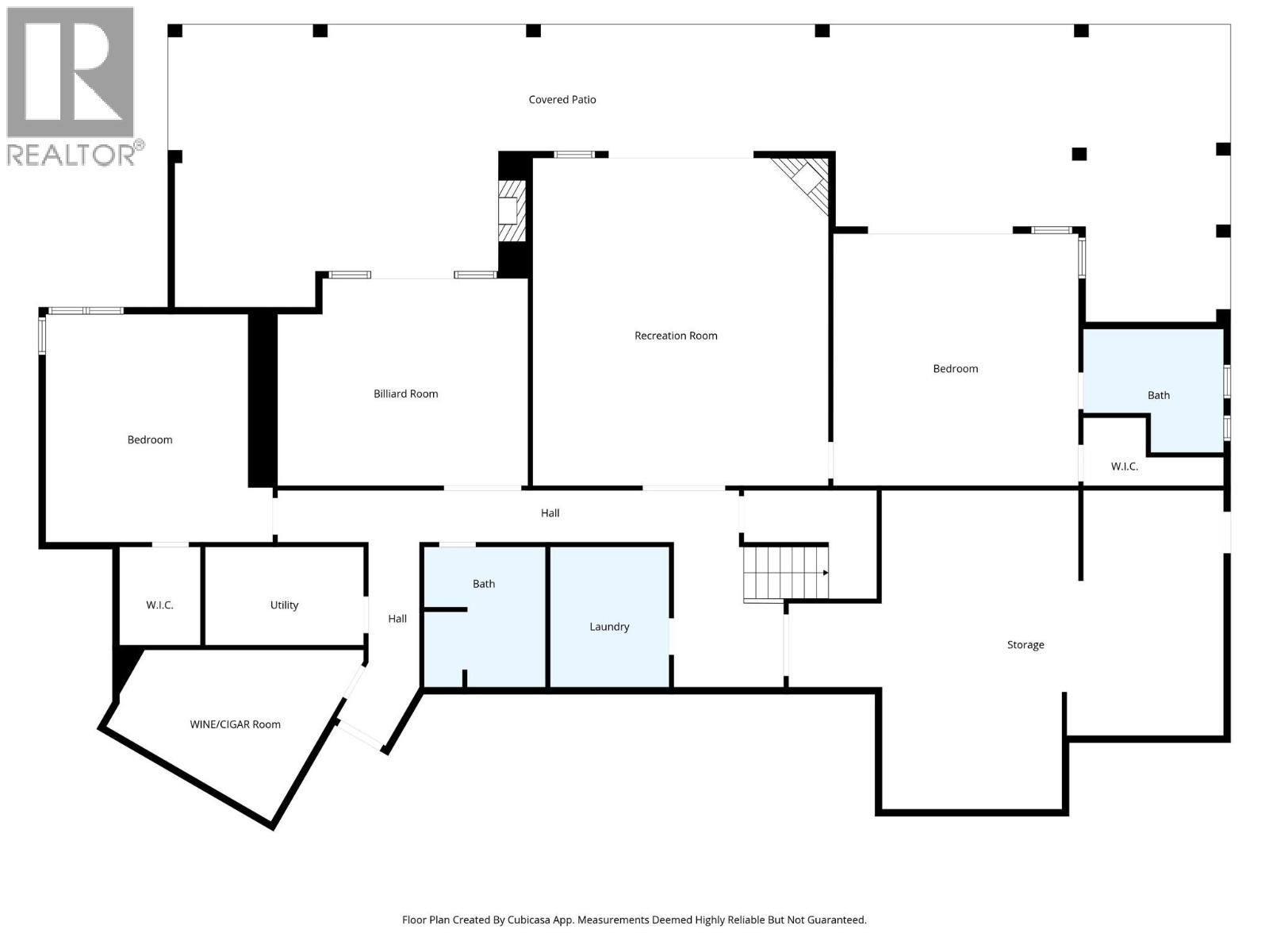
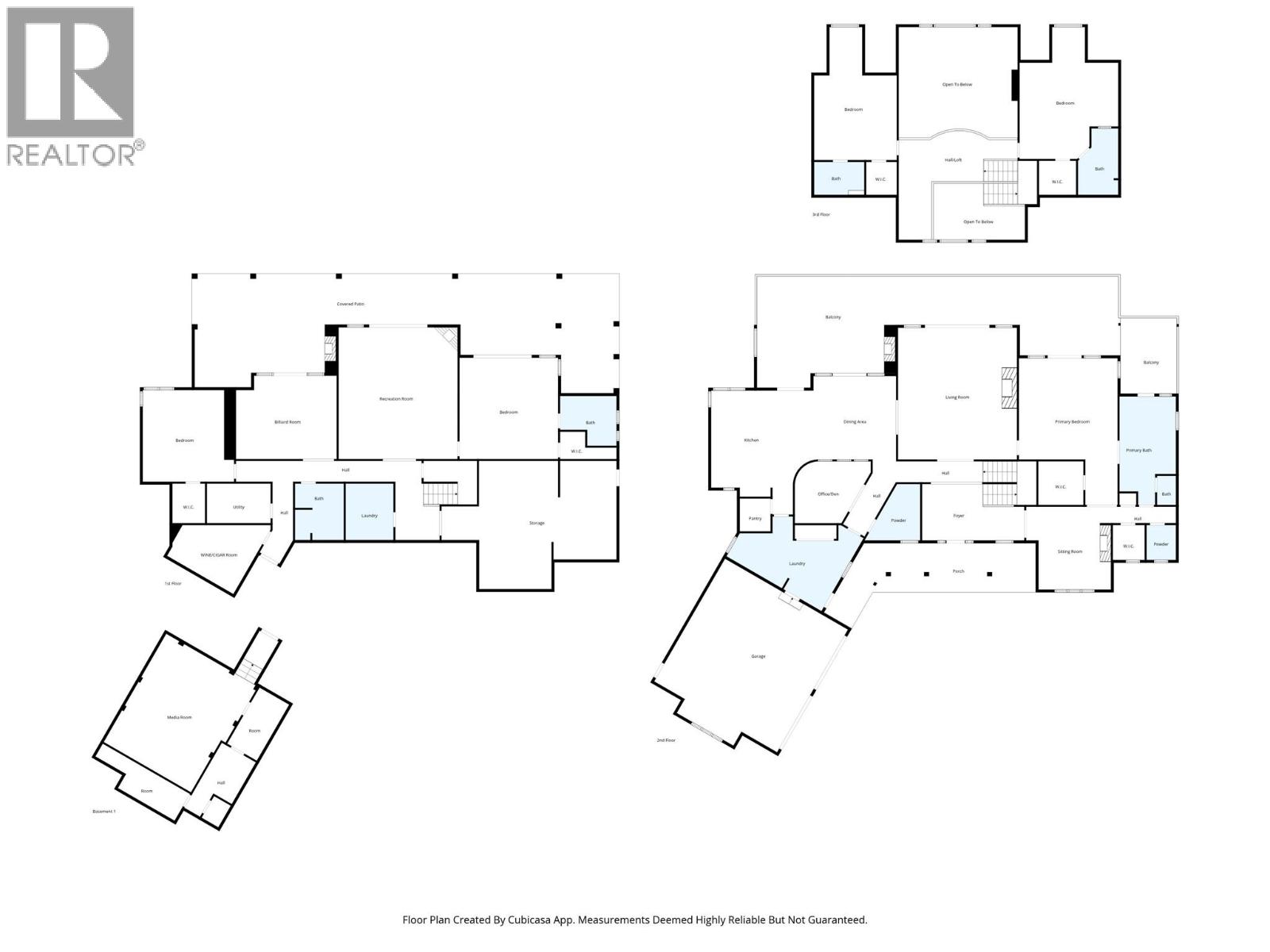
Pièces

MétriqueImpérial
Niveau principal
Salle de bain attenante - (2 éléments)
Coin repos
Salle de bain attenante - (5 éléments)
Chambre principale
Bureau
Salle de bain - 2 éléments
Buanderie
Cuisine
Salle à manger
Salon
Deuxième niveau
Salle de bain - 3 éléments
Chambre à coucher
Salle de bain - 4 éléments
Chambre à coucher
Sous-sol
Chambre à coucher
Salle de bain - 3 éléments
Salle de jeux
Buanderie
Salle de bain - 3 éléments
Chambre à coucher
Salle de jeu

Terrain

Caractéristiques du terrain
Vue
Vue sur la rivière, Vue sur la montagne
Données fournies par : Association of Interior REALTORS®
Souhaitez-vous visiter cette propriété?
Demander une visite

Inscriptions semblables

Helen Ralph