Nous utilisons des témoins et d’autres technologies pour assurer le fonctionnement et la sécurité de nos services en ligne, et pour vous offrir une expérience personnalisée. En continuant à utiliser nos services en ligne, vous acceptez notre Politique de confidentialité et les conditions d’utilisation. Pour obtenir des informations sur la façon de régler vos paramètres de confidentialité, veuillez consulter notre Politique sur les témoins.
Masquer
Accueil ON Dufferin Shelburne
101 CLARK STREET
Directions Imprimer
101 CLARK STREET 599 000 $
Depuis 4 jours
599 000 $
Masquer
Favoris

101 CLARK STREET
Shelburne, Ontario L9V3W9

Numéro MLS® : X12686192
3 + 1
Chambres
3
Salles de bain
1500 - 2000
Pieds carrés

Résumé de la propriété

Type de propriété
Unifamiliale
Type de bâtiment
Maison en rangée
Étages
2
Superficie
1500 - 2000 pi2
Titre
Tenure franche
Superficie du terrain
35 x 103 FT
Âge de l'édifice
0 à 5 ans
Impôt foncier annuel
4 469,69 $
Type de stationnement
Garage attenant, Garage
Sur REALTOR.ca depuis
4 jours

Édifice

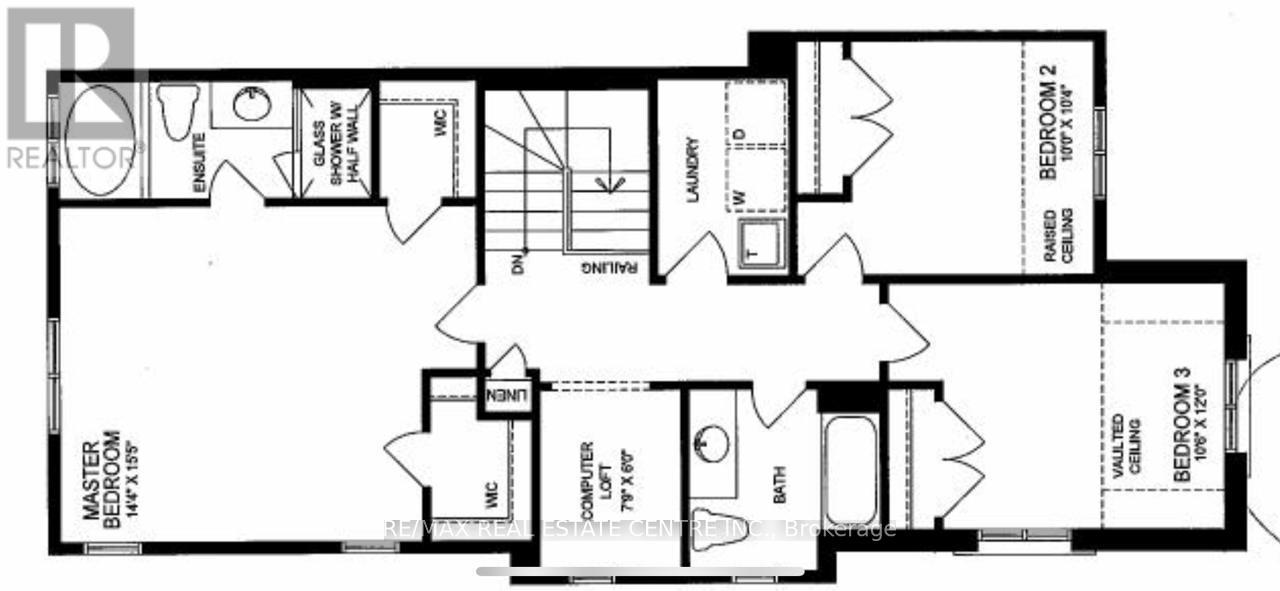
Chambres
Au-dessus du niveau du sol
3
Au-dessous du niveau du sol
1
Salles de bain
Total
3
Partielle
1
Caractéristiques intérieures
Appareils électroménagers inclus
Chauffe-eau, Lave-vaisselle, Sécheuse, Micro-ondes, Cuisinière, Machine à laver, Couvre-fenêtre, Réfrigérateur
Couvre-plancher
Tuile de porcelaine, plancher de bois franc, plancher recouvert de tapis
Type de sous-sol
Sous-sol complet
Caractéristiques du bâtiment
Type de fondation
Inconnu
Style
En rangée
Location de matérial incluse
Chauffe-eau
Chauffage et refroidissement
Système de refroidissement
Climatisation centrale
Type de chauffage
Air pulsé (Gaz naturel)
Services publics
Égouts
Égout sanitaire
Eau
Approvisionnement en eau par la municipalité
Caractéristiques extérieures
Revêtement extérieur
Brique, Bardage en vinyle
Stationnement
Type de stationnement
Garage attenant, Garage
Nombre total d'espaces de stationnement
4

Mesures

Superficie
1500 - 2000 pi2

Pièces

MétriqueImpérial
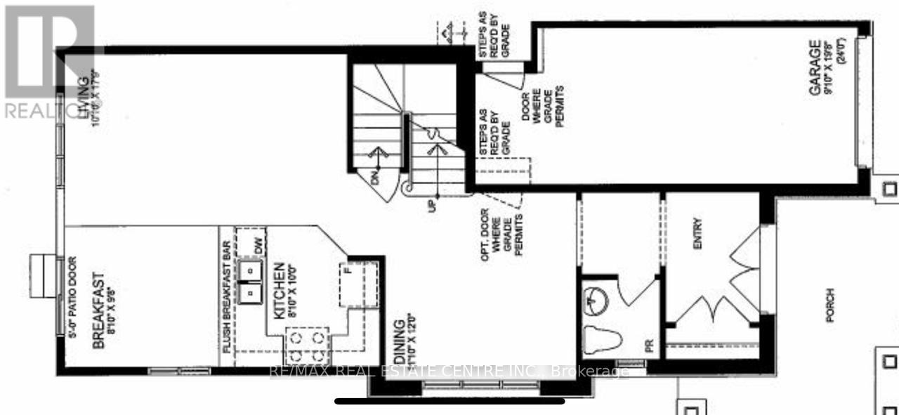
Niveau principal
Vestibule
Grande salle
Salle à manger
Cuisine
Salle de repas
Niveau supérieur
Chambre principale
Deuxième chambre
Troisième chambre
Bureau

Terrain

Caractéristiques du terrain
Façade
35 pi
Superficie du terrain
103 pi
Données fournies par : Toronto Regional Real Estate Board
Souhaitez-vous visiter cette propriété?
Demander une visite

Inscriptions semblables

SACHIT SHETTY