Nous utilisons des témoins et d’autres technologies pour assurer le fonctionnement et la sécurité de nos services en ligne, et pour vous offrir une expérience personnalisée. En continuant à utiliser nos services en ligne, vous acceptez notre Politique de confidentialité et les conditions d’utilisation. Pour obtenir des informations sur la façon de régler vos paramètres de confidentialité, veuillez consulter notre Politique sur les témoins.
Masquer
Accueil ON Grand Toronto Bradford West Gwillimbury
13 ELGIN COURT
Directions Imprimer
13 ELGIN COURT 699 900 $
699 900 $
Masquer
Favoris

13 ELGIN COURT
Bradford West Gwillimbury (Bradford), Ontario L3Z4R1

Numéro MLS® : N12683066
3
Chambres
3
Salles de bain
1100 - 1500
Pieds carrés

Résumé de la propriété

Type de propriété
Unifamiliale
Type de bâtiment
Maison en rangée
Étages
3
Superficie
1100 - 1500 pi2
Titre
Tenure franche
Superficie du terrain
18 x 95 FT
Âge de l'édifice
Bâtiment neuf
Impôt foncier annuel
0 $
Type de stationnement
Garage attenant, Garage
Sur REALTOR.ca depuis
8 jours

Édifice

Chambres
Au-dessus du niveau du sol
3
Salles de bain
Total
3
Partielle
1
Caractéristiques intérieures
Couvre-plancher
Céramique, plancher de bois franc, plancher recouvert de tapis
Caractéristiques du sous-sol
Sous-sol à niveau
Type de sous-sol
Non aménagé
Caractéristiques du bâtiment
Caractéristiques
Terrain plat
Type de fondation
Fondation en béton
Style
En rangée
Location de matérial incluse
Chauffe-eau - gaz, Chauffe-eau
Chauffage et refroidissement
Système de refroidissement
Aucun
Type de chauffage
Air pulsé (Gaz naturel)
Services publics
Services publics disponibles
Service du câble (Installé), Électricité (Installé), Service d'égout (Installé)
Égouts
Égout sanitaire
Eau
Approvisionnement en eau par la municipalité
Caractéristiques extérieures
Revêtement extérieur
Brique
Caractéristiques du quartier
Caractéristiques de la communauté
Centre communautaire
Commodités à proximité
Lieu de culte, Écoles, Transport en commun
Stationnement
Type de stationnement
Garage attenant, Garage
Nombre total d'espaces de stationnement
3

Mesures

Superficie
1100 - 1500 pi2

Pièces

MétriqueImpérial
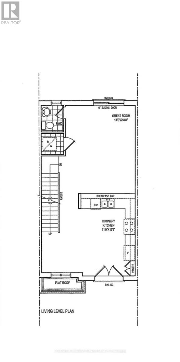
Niveau principal
Cuisine
Grande salle
Buanderie
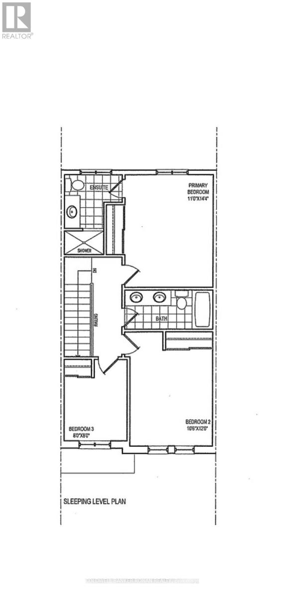
Deuxième niveau
Chambre principale
Deuxième chambre
Troisième chambre
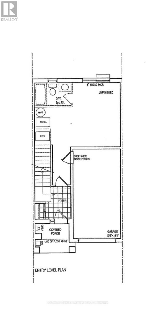
Niveau du sol
Vestibule

Terrain

Caractéristiques du terrain
Façade
18 pi
Superficie du terrain
95 pi
Données fournies par : Toronto Regional Real Estate Board
Souhaitez-vous visiter cette propriété?
Demander une visite

Inscriptions semblables

HEIDI CROWTHER