Nous utilisons des témoins et d’autres technologies pour assurer le fonctionnement et la sécurité de nos services en ligne, et pour vous offrir une expérience personnalisée. En continuant à utiliser nos services en ligne, vous acceptez notre Politique de confidentialité et les conditions d’utilisation. Pour obtenir des informations sur la façon de régler vos paramètres de confidentialité, veuillez consulter notre Politique sur les témoins.
Masquer
Accueil ON Comté de Middlesex Southwest Middlesex
21298 SPRINGFIELD ROAD
Directions Imprimer
21298 SPRINGFIELD ROAD 1 999 999 $
1 999 999 $
Masquer
Favoris

21298 SPRINGFIELD ROAD
Southwest Middlesex, Ontario N0L1T0

Numéro MLS® : X12679448
5 + 2
Chambres
4
Salles de bain
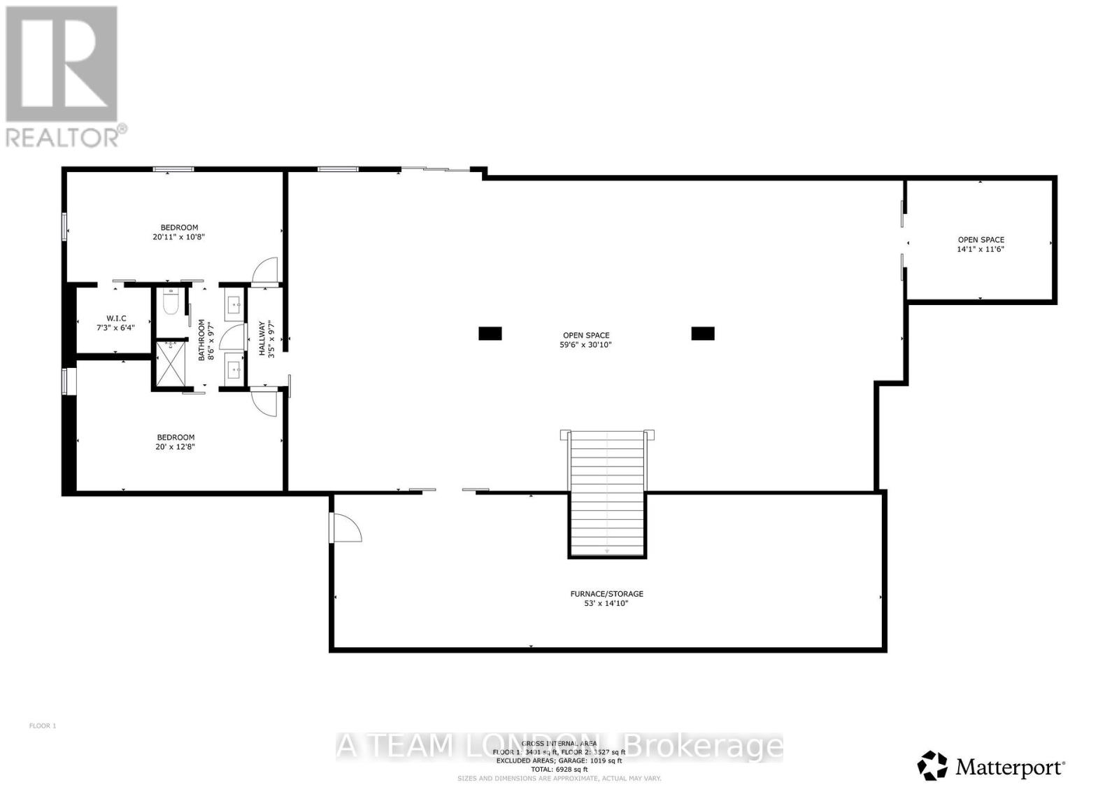
3500 - 5000
Pieds carrés

Résumé de la propriété

Type de propriété
Unifamiliale
Type de bâtiment
Unifamilial
Étages
1.5
Superficie
3500 - 5000 pi2
Superficie du terrain
2223.4 x 974.1 FT ; 2,252.17 x 1,009.73 x 2,223.37 x 974.14|50 - 100 acres
Impôt foncier annuel
16 236 $
Type de stationnement
Garage attenant, Garage
Sur REALTOR.ca depuis
28 jours

Édifice

Chambres
Au-dessus du niveau du sol
5
Au-dessous du niveau du sol
2
Salles de bain
Total
4
Partielle
1
Caractéristiques intérieures
Appareils électroménagers inclus
Chauffe-eau sans réservoir
Caractéristiques du sous-sol
Sous-sol à niveau
Type de sous-sol
Aménagé
Caractéristiques du bâtiment
Caractéristiques
Terrain irrégulier, Résidentiel campagne
Type de fondation
Fondation en béton
Chauffage et refroidissement
Système de refroidissement
Climatisation centrale
Type de chauffage
Air pulsé, Inconnu (Gaz naturel), Inconnu (Propane)
Services publics
Services publics disponibles
Service du câble (Disponible), Électricité (Disponible)
Égouts
Fosse septique
Caractéristiques extérieures
Revêtement extérieur
Bois, Pierre
Piscine
Piscine creusée
Stationnement
Type de stationnement
Garage attenant, Garage
Nombre total d'espaces de stationnement
24

Mesures

Superficie
3500 - 5000 pi2

Terrain

Caractéristiques du terrain
Façade
2223 pi 4 po
Superficie du terrain
974 pi 1 po
Souhaitez-vous visiter cette propriété?
Demander une visite

Inscriptions semblables

NICK JAREMKO