Nous utilisons des témoins et d’autres technologies pour assurer le fonctionnement et la sécurité de nos services en ligne, et pour vous offrir une expérience personnalisée. En continuant à utiliser nos services en ligne, vous acceptez notre Politique de confidentialité et les conditions d’utilisation. Pour obtenir des informations sur la façon de régler vos paramètres de confidentialité, veuillez consulter notre Politique sur les témoins.
Masquer
Accueil BC Grand Vancouver Greater Vancouver Delta Sunbury-Terrace
8222 NECHAKO DRIVE
Directions Imprimer
8222 NECHAKO DRIVE 1 480 000 $
Prochaine visite libre
7
févr.
1 480 000 $
Masquer
Favoris

8222 NECHAKO DRIVE
Delta, Colombie-Britannique V4C3X3

Numéro MLS® : R3077578
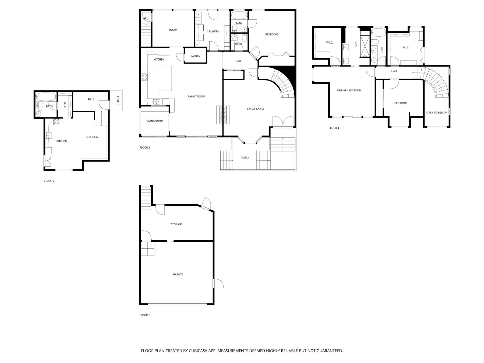
6
Chambres
5
Salles de bain
3035
Pieds carrés

Visites libres

7 févr.
14 h - 16 h
Ajouter au calendrier

Résumé de la propriété

Type de propriété
Unifamiliale
Type de bâtiment
Unifamilial
Superficie
3035 pi2
Titre
Tenure franche
Superficie du terrain
6835 pi2
Âge de l'édifice
33 ans
Impôt foncier annuel
5 612,51 $
Type de stationnement
Garage
Sur REALTOR.ca depuis
29 jours

Prix et historique

Date Statut Prix vendu
29 nov. 2017 Vente conclue 950 000 $
14 oct. 2014 Vente conclue 560 000 $
26 mai 2011 Vente conclue 578 500 $

Édifice

Salles de bain
Total
5
Caractéristiques intérieures
Appareils électroménagers inclus
Machine à laver, Sécheuse, Réfrigérateur, Cuisinière, Lave-vaisselle, Ouvre-porte de garage
Accessoires fixes inclus
Draperies/Couvre-fenêtres
Caractéristiques du sous-sol
Inconnu
Type de sous-sol
Sous-sol complet (Aménagé)
Caractéristiques du bâtiment
Style
Isolée
Style d'architecture
3 étages
Protection contre les incendies
Détecteurs de fumée
Commodités qu'offre le bâtiment
Climatisation, Buanderie – dans l’appartement
Chauffage et refroidissement
Système de refroidissement
Climatisé
Foyer
1
Type de chauffage
(Gaz naturel)
Services publics
Services publics disponibles
Électricité (Disponible), Gaz naturel (Disponible), Eau (Disponible)
Égouts
Égout sanitaire, Égout pluvial
Eau
Approvisionnement en eau par la municipalité
Stationnement
Type de stationnement
Garage
Nombre total d'espaces de stationnement
4

Mesures

Superficie
3035 pi2

Terrain

Caractéristiques du terrain
Vue
Vue sur la ville, Vue sur l'eau, Vue ( panoramique )
Données fournies par : Fraser Valley Real Estate Board
Souhaitez-vous visiter cette propriété?
Demander une visite

Inscriptions semblables

Alex Avgerinos