Nous utilisons des témoins et d’autres technologies pour assurer le fonctionnement et la sécurité de nos services en ligne, et pour vous offrir une expérience personnalisée. En continuant à utiliser nos services en ligne, vous acceptez notre Politique de confidentialité et les conditions d’utilisation. Pour obtenir des informations sur la façon de régler vos paramètres de confidentialité, veuillez consulter notre Politique sur les témoins.
Masquer
Accueil ON Grand Toronto Ajax Duffins Bay
2 CUMBERLAND LANE
Directions Imprimer
2 CUMBERLAND LANE 699 900 $
699 900 $
Masquer
Favoris

2 CUMBERLAND LANE
Ajax (South West), Ontario L1S7K4

Numéro MLS® : E12676130
3
Chambres
3
Salles de bain
1600 - 1799
Pieds carrés

Résumé de la propriété

Type de propriété
Unifamiliale
Type de bâtiment
Maison en rangée
Étages
3
Superficie
1600 - 1799 pi2
Titre
Copropriété divise
Impôt foncier annuel
4 047,15 $
Type de stationnement
Garage attenant, Garage
Sur REALTOR.ca depuis
9 jours

Édifice

Chambres
Au-dessus du niveau du sol
3
Salles de bain
Total
3
Partielle
1
Caractéristiques intérieures
Appareils électroménagers inclus
Télécommande(s) d'ouvre-porte de garage, Four encastré, Broyeur d'évier, Toutes les options, Ouvre-porte de garage, Couvre-fenêtre
Couvre-plancher
plancher de bois franc
Type de sous-sol
Autre, voir remarques
Caractéristiques du bâtiment
Caractéristiques
Zone boisée, Balcon
Statut de construction
Isolant amélioré
Protection contre les incendies
Système de sécurité
Commodités qu'offre le bâtiment
Foyer(s), Service de sécurité/conciergerie
Location de matérial incluse
Chauffe-eau
Structures
Terrasse(s)
Chauffage et refroidissement
Système de refroidissement
Climatisation centrale
Type de chauffage
Air pulsé (Gaz naturel)
Caractéristiques extérieures
Revêtement extérieur
Brique
Caractéristiques du quartier
Caractéristiques de la communauté
Animaux permis avec restrictions, Centre communautaire
Commodités à proximité
Transport en commun, Un hôpital
Infos entretien ou copropriété
Frais d'entretien
1 018,47 $ mois
Les frais d'entretien comprennent
Eau, Câblodistribution, Assurance, Parking
Société de gestion de l'entretien
Crossbridge Condominium Services Ltd.
Stationnement
Type de stationnement
Garage attenant, Garage
Nombre total d'espaces de stationnement
2

Mesures

Superficie
1600 - 1799 pi2

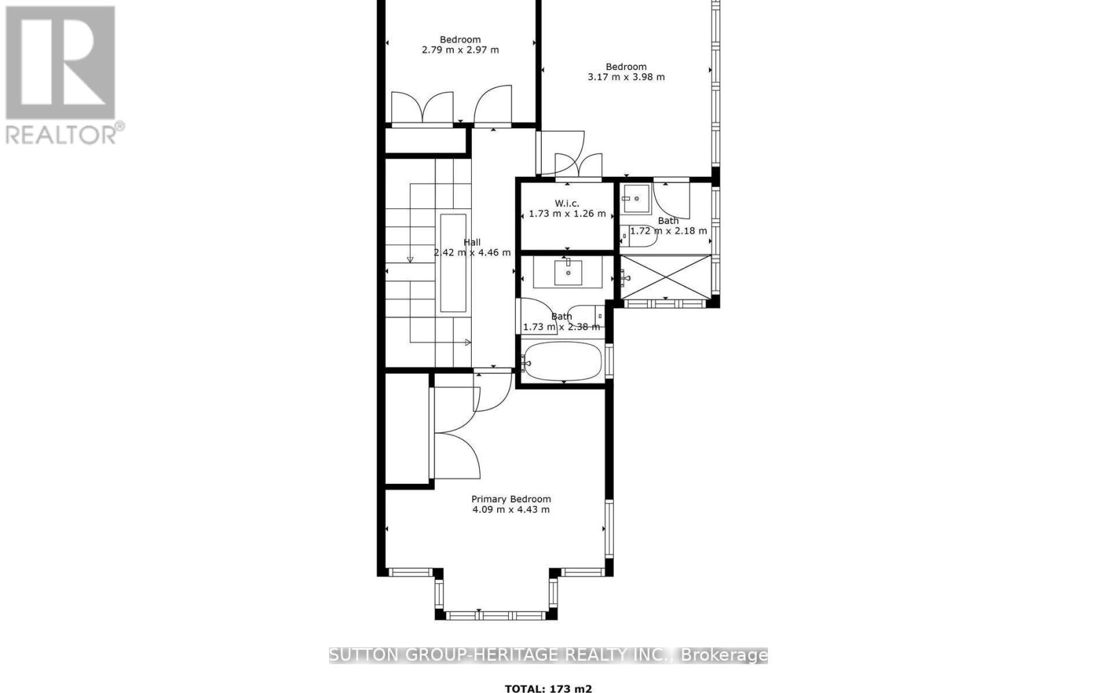
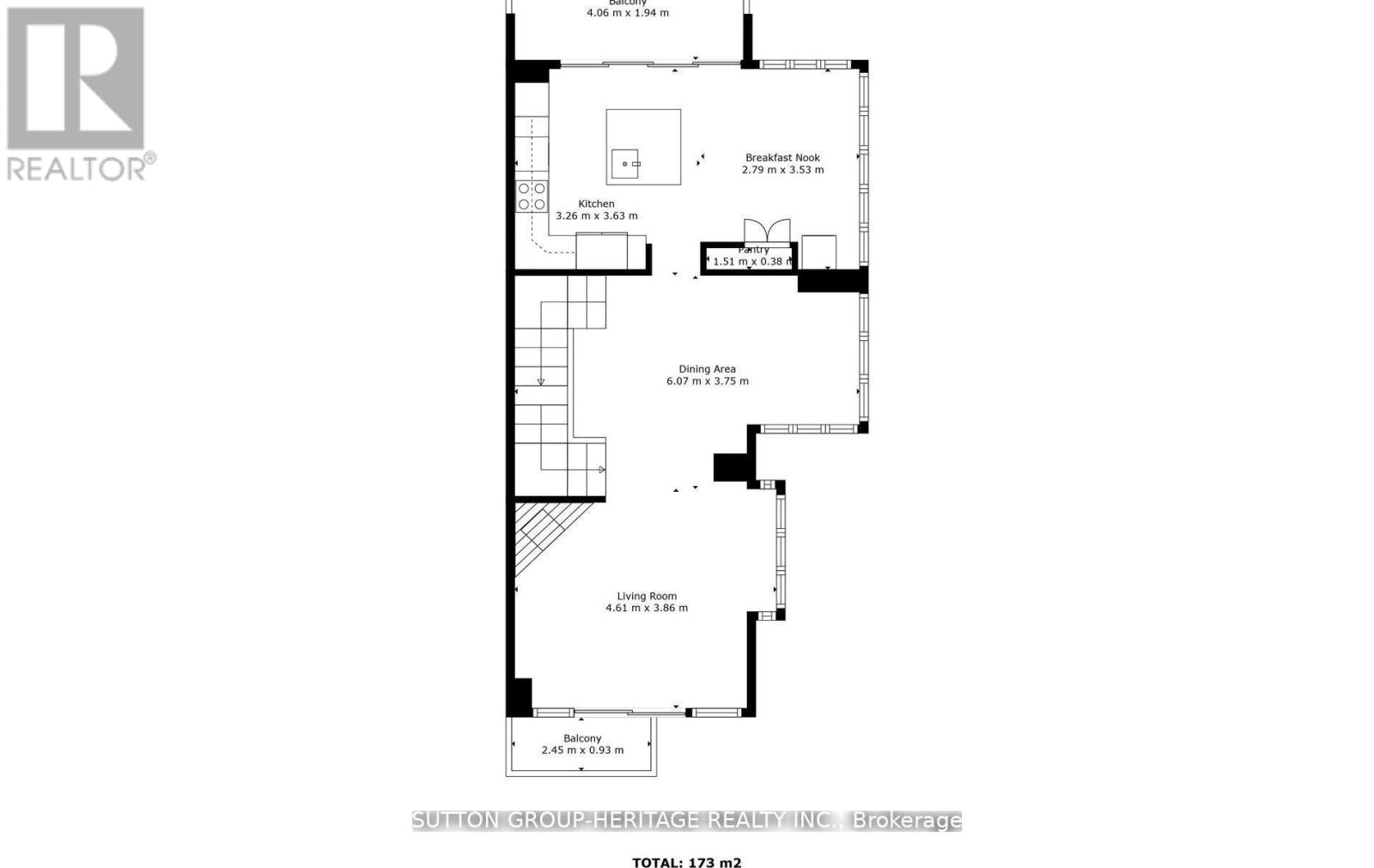
Pièces

MétriqueImpérial
Niveau principal
Cuisine
Salon
Salle à manger
Deuxième niveau
Chambre principale
Deuxième chambre
Troisième chambre
Troisième niveau
Grenier
Niveau du sol
Bureau

Terrain

Caractéristiques du terrain
Aménagement paysager
Terrain paysager
Autres informations sur la propriété
Accès
Voie publique
Servitudes
Inconnu, Aucune
Caractéristiques du bord de l'eau
Bord de l'eau
Bord de l'eau
Données fournies par : Toronto Regional Real Estate Board
Souhaitez-vous visiter cette propriété?
Demander une visite

Inscriptions semblables

TINA L. BOWEN