Nous utilisons des témoins et d’autres technologies pour assurer le fonctionnement et la sécurité de nos services en ligne, et pour vous offrir une expérience personnalisée. En continuant à utiliser nos services en ligne, vous acceptez notre Politique de confidentialité et les conditions d’utilisation. Pour obtenir des informations sur la façon de régler vos paramètres de confidentialité, veuillez consulter notre Politique sur les témoins.
Masquer
Accueil ON Grand Toronto Région de Peel Brampton Mount Pleasant Fletchers Meadow North
8 EMILY STREET
Directions Imprimer
8 EMILY STREET 749 900 $
Modification du prix le 2026/01/23
749 900 $
+50 900 $
699 000 $
Masquer
Favoris

8 EMILY STREET
Brampton (Northwest Brampton), Ontario L7A0A9

Numéro MLS® : W12675826
3
Chambres
3
Salles de bain
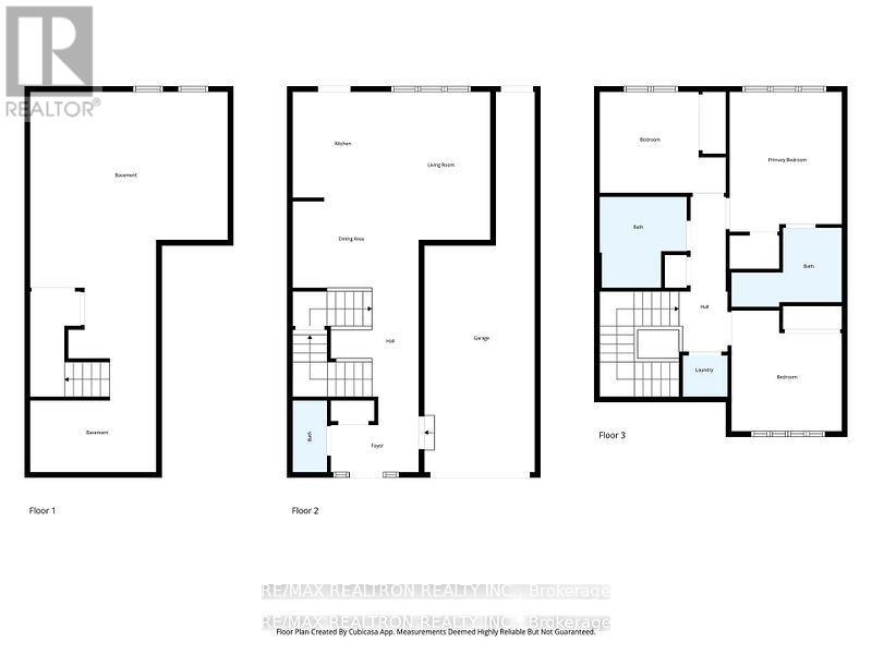
1100 - 1500
Pieds carrés

Résumé de la propriété

Type de propriété
Unifamiliale
Type de bâtiment
Maison en rangée
Étages
2
Superficie
1100 - 1500 pi2
Titre
Tenure franche
Superficie du terrain
23 x 91.3 FT
Impôt foncier annuel
5 487 $
Type de stationnement
Garage
Sur REALTOR.ca depuis
29 jours

Édifice

Chambres
Au-dessus du niveau du sol
3
Salles de bain
Total
3
Partielle
1
Caractéristiques intérieures
Appareils électroménagers inclus
Lave-vaisselle, Sécheuse, Hotte, Cuisinière, Machine à laver, Réfrigérateur
Couvre-plancher
plancher en stratifié, Céramique
Type de sous-sol
Non aménagé
Caractéristiques du bâtiment
Caractéristiques
Sans tapis
Type de fondation
Inconnu
Style
En rangée
Location de matérial incluse
Chauffe-eau
Chauffage et refroidissement
Système de refroidissement
Climatisation centrale
Type de chauffage
Air pulsé (Gaz naturel)
Services publics
Égouts
Égout sanitaire
Eau
Approvisionnement en eau par la municipalité
Caractéristiques extérieures
Revêtement extérieur
Brique
Stationnement
Type de stationnement
Garage
Nombre total d'espaces de stationnement
2

Mesures

Superficie
1100 - 1500 pi2

Pièces

MétriqueImpérial
Niveau principal
Cuisine
Salle de repas
Salon
Salle à manger
Deuxième niveau
Chambre principale
Deuxième chambre
Troisième chambre
Buanderie

Terrain

Caractéristiques du terrain
Façade
23 pi
Superficie du terrain
91 pi 3 po
Données fournies par : Toronto Regional Real Estate Board
Souhaitez-vous visiter cette propriété?
Demander une visite

Inscriptions semblables

DARSHAN SIVANANDARAJAH