Nous utilisons des témoins et d’autres technologies pour assurer le fonctionnement et la sécurité de nos services en ligne, et pour vous offrir une expérience personnalisée. En continuant à utiliser nos services en ligne, vous acceptez notre Politique de confidentialité et les conditions d’utilisation. Pour obtenir des informations sur la façon de régler vos paramètres de confidentialité, veuillez consulter notre Politique sur les témoins.
Masquer
Accueil BC Grand Vancouver Greater Vancouver Burnaby Université Simon Fraser Burnaby Mountain
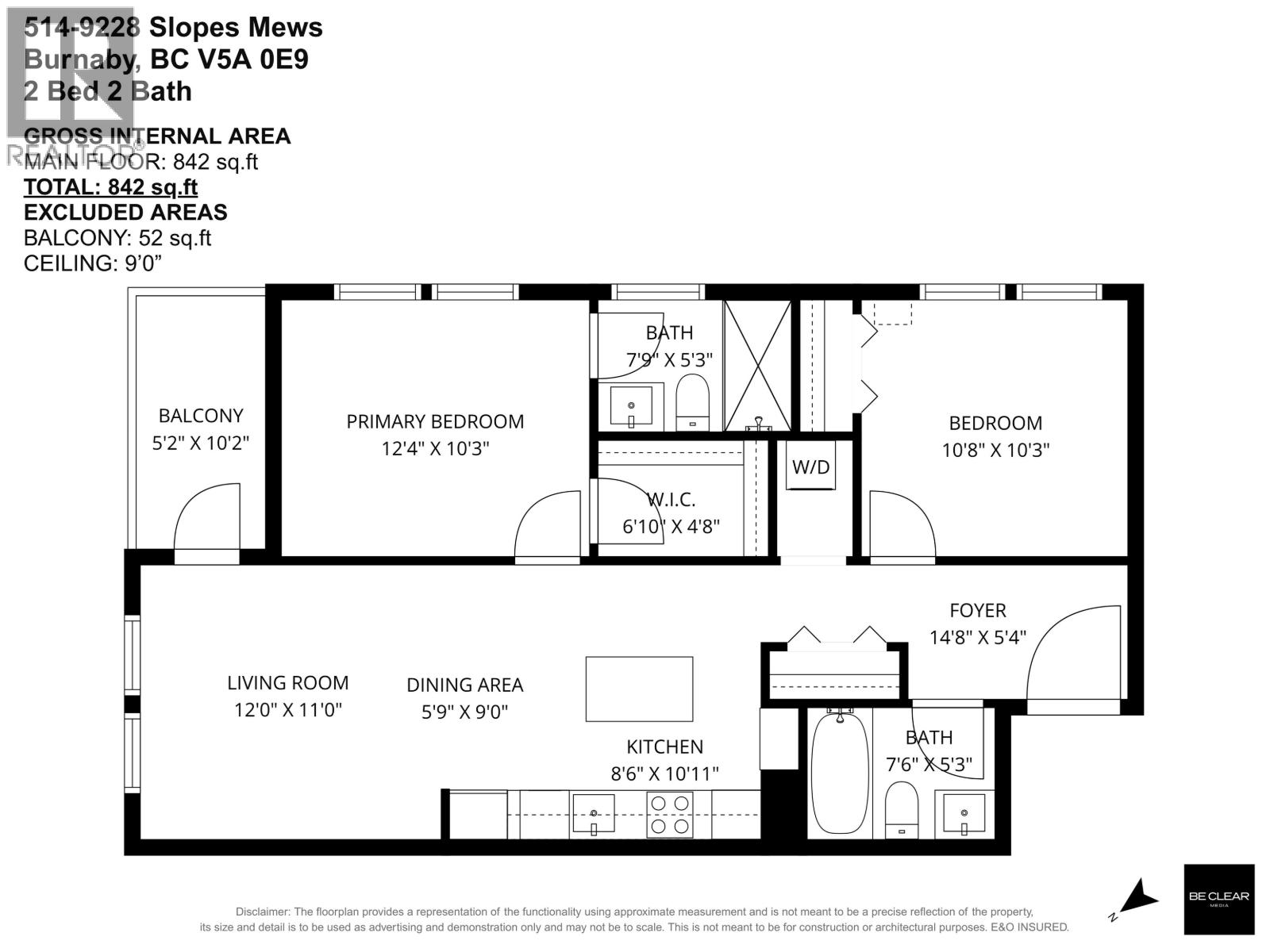
514 9228 SLOPES MEWS
Directions Imprimer
514 9228 SLOPES MEWS 599 880 $
599 880 $
Masquer
Favoris

514 9228 SLOPES MEWS
Burnaby, Colombie-Britannique V5A0E9

Numéro MLS® : R3077123
2
Chambres
2
Salles de bain
842
Pieds carrés

Résumé de la propriété

Type de propriété
Unifamiliale
Type de bâtiment
Appartement
Superficie
842 pi2
Titre
Condominium à bail
Superficie du terrain
0
Date de construction
2021
Impôt foncier annuel
1 997,74 $
Type de stationnement
Stationnement souterrain
Sur REALTOR.ca depuis
9 jours

Édifice

Salles de bain
Total
2
Caractéristiques intérieures
Appareils électroménagers inclus
Toutes les options
Accessoires fixes inclus
Draperies/Couvre-fenêtres
Caractéristiques du bâtiment
Caractéristiques
Site central, Ascenseur
Commodités qu'offre le bâtiment
Buanderie – dans l’appartement
Chauffage et refroidissement
Type de chauffage
Chauffage par rayonnement
Caractéristiques du quartier
Caractéristiques de la communauté
Animaux permis avec restrictions
Commodités à proximité
Loisirs, Centres commerciaux
Infos entretien ou copropriété
Frais d'entretien
529,84 $ mois
Stationnement
Type de stationnement
Stationnement souterrain
Nombre total d'espaces de stationnement
1

Mesures

Superficie
842 pi2

Terrain

Caractéristiques du terrain
Vue
Vue
Données fournies par : Greater Vancouver REALTORS®
Souhaitez-vous visiter cette propriété?
Demander une visite

Inscriptions semblables

Brandon Gee-Moore