Nous utilisons des témoins et d’autres technologies pour assurer le fonctionnement et la sécurité de nos services en ligne, et pour vous offrir une expérience personnalisée. En continuant à utiliser nos services en ligne, vous acceptez notre Politique de confidentialité et les conditions d’utilisation. Pour obtenir des informations sur la façon de régler vos paramètres de confidentialité, veuillez consulter notre Politique sur les témoins.
Masquer
Accueil AB Grand Calgary Division No. 6 Calgary Sunnyside
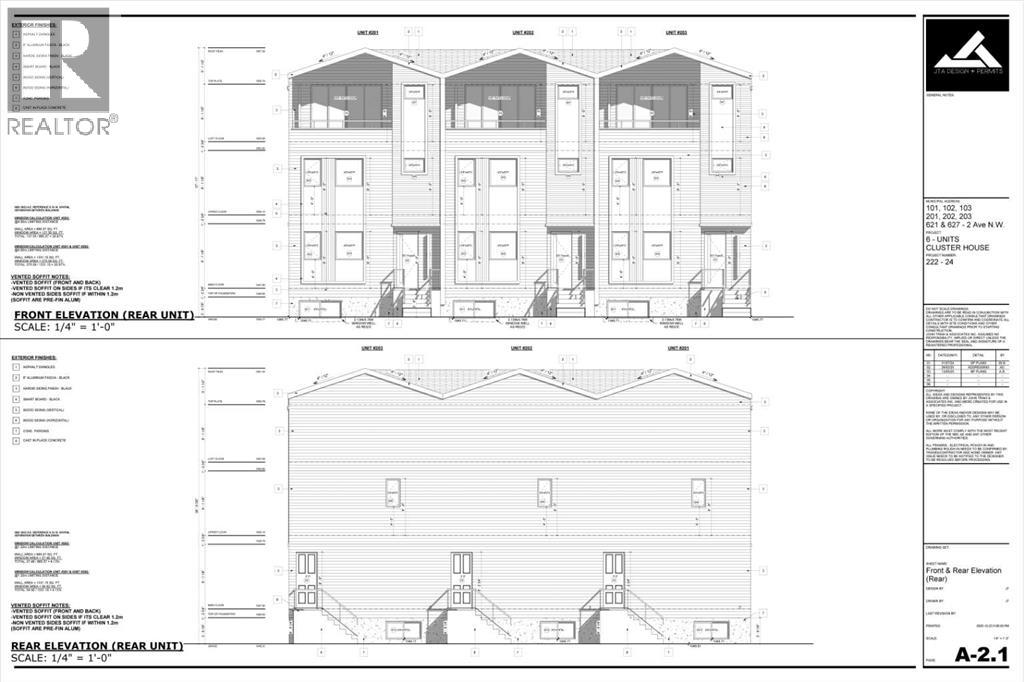
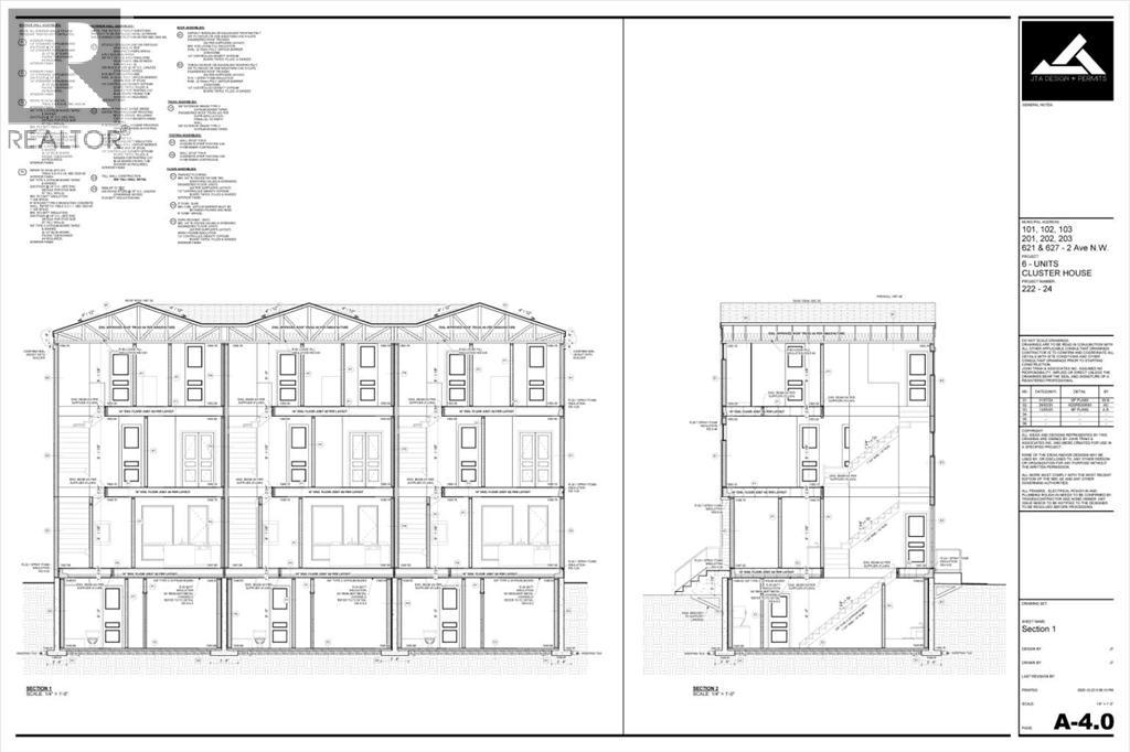
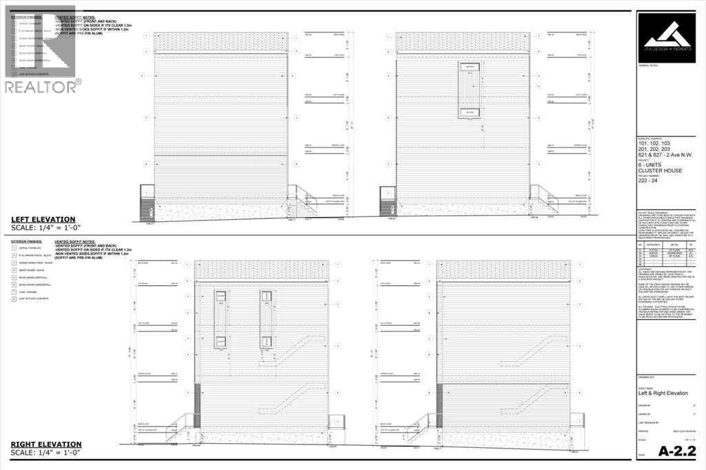
101, 625 2 Avenue NW
Directions Imprimer
101, 625 2 Avenue NW 990 000 $
990 000 $
Masquer
Favoris

101, 625 2 Avenue NW
Calgary, Alberta T2N0E2

Numéro MLS® : A2277154
3 + 1
Chambres
4
Salles de bain
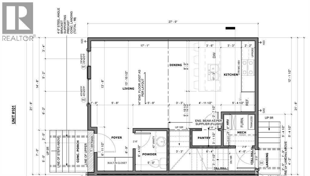
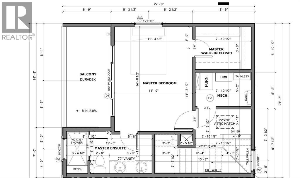
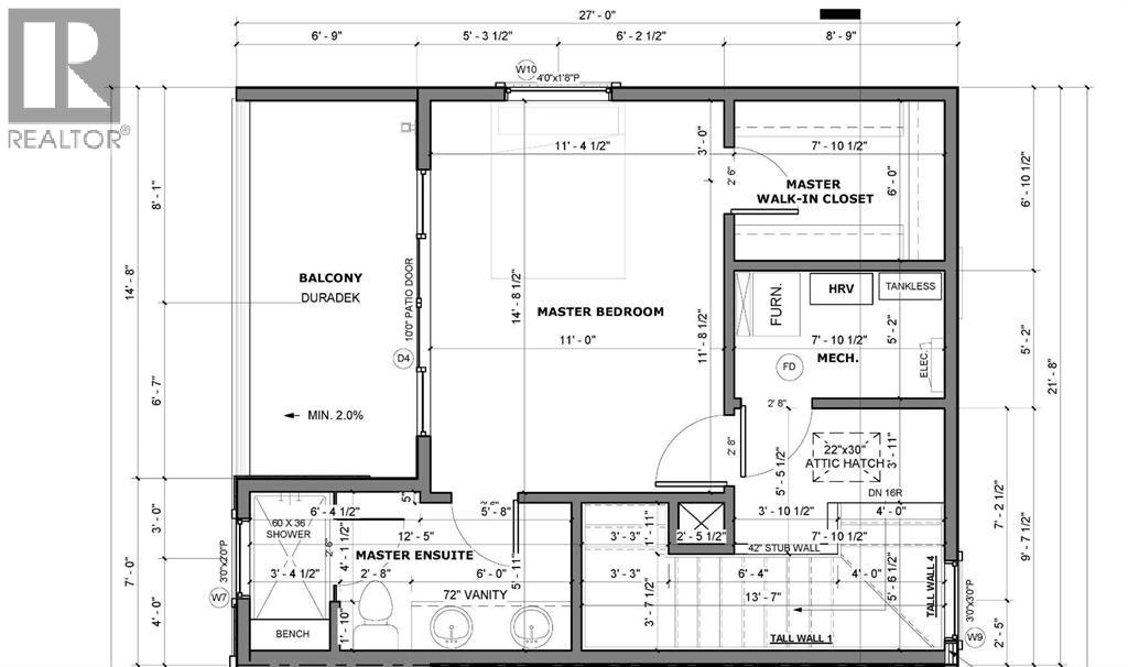
1675
Pieds carrés

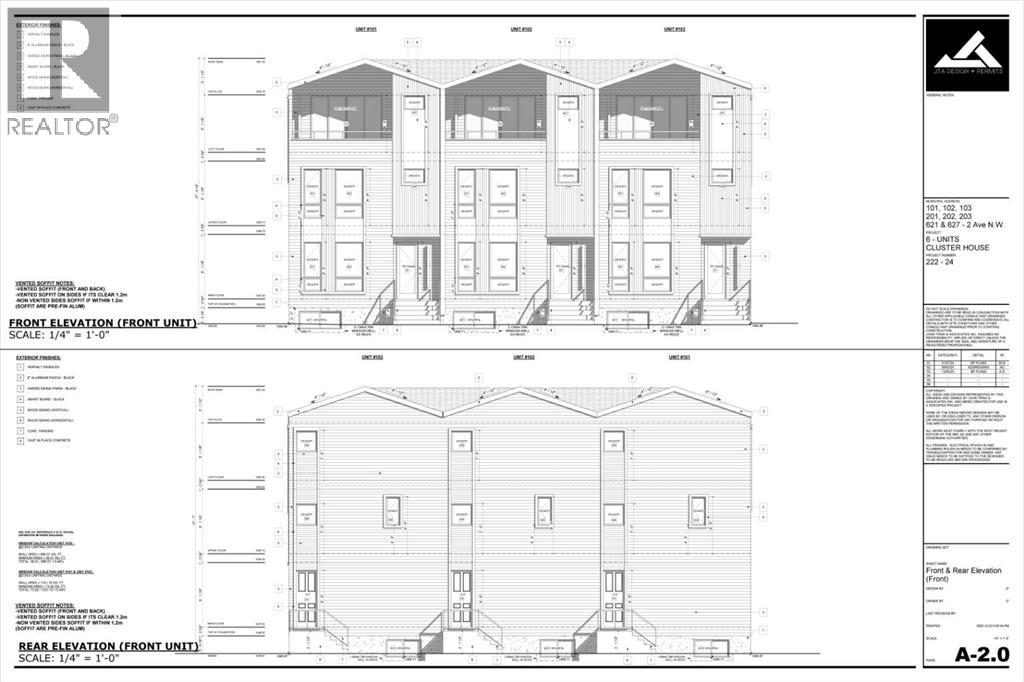
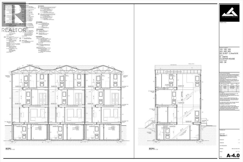
Résumé de la propriété

Type de propriété
Unifamiliale
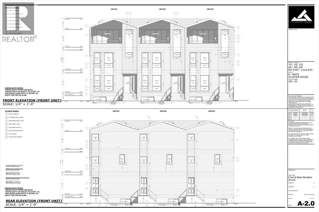
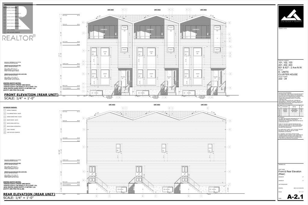
Type de bâtiment
Maison en rangée
Étages
3
Superficie
1675 pi2
Titre
Copropriété divise
Superficie du terrain
416 m2|4 051 - 7 250 pi2
Date de construction
2026
Impôt foncier annuel
0 $
Type de stationnement
Garage détaché (1)
Sur REALTOR.ca depuis
30 jours

Édifice

Chambres
Au-dessus du niveau du sol
3
Au-dessous du niveau du sol
1
Salles de bain
Total
4
Partielle
1
Caractéristiques intérieures
Appareils électroménagers inclus
Voir les remarques
Couvre-plancher
Autre
Caractéristiques du sous-sol
Entrée distincte, Logement accessoire
Type de sous-sol
Sous-sol complet (Aménagé)
Caractéristiques du bâtiment
Caractéristiques
Voir remarques, Voie d'accès à l'arrière, Maison sans animaux, Maison sans fumeurs, Stationnement
Type de fondation
Béton coulé
Style
En rangée
Matériau de Construction
Charpente en bois
Protection contre les incendies
Détecteurs de fumée
Chauffage et refroidissement
Système de refroidissement
Aucun
Type de chauffage
Air pulsé, (Gaz naturel)
Caractéristiques extérieures
Revêtement extérieur
Brique, Stuc
Caractéristiques du quartier
Caractéristiques de la communauté
Animaux permis avec restrictions
Commodités à proximité
Parc, Terrain de jeu, Écoles, Centres commerciaux
Infos entretien ou copropriété
Les frais d'entretien comprennent
Commodités en copropriété
Stationnement
Type de stationnement
Garage détaché (1)
Nombre total d'espaces de stationnement
1

Mesures

Superficie
1675 pi2
Superficie totale aménagée
1675 pi2

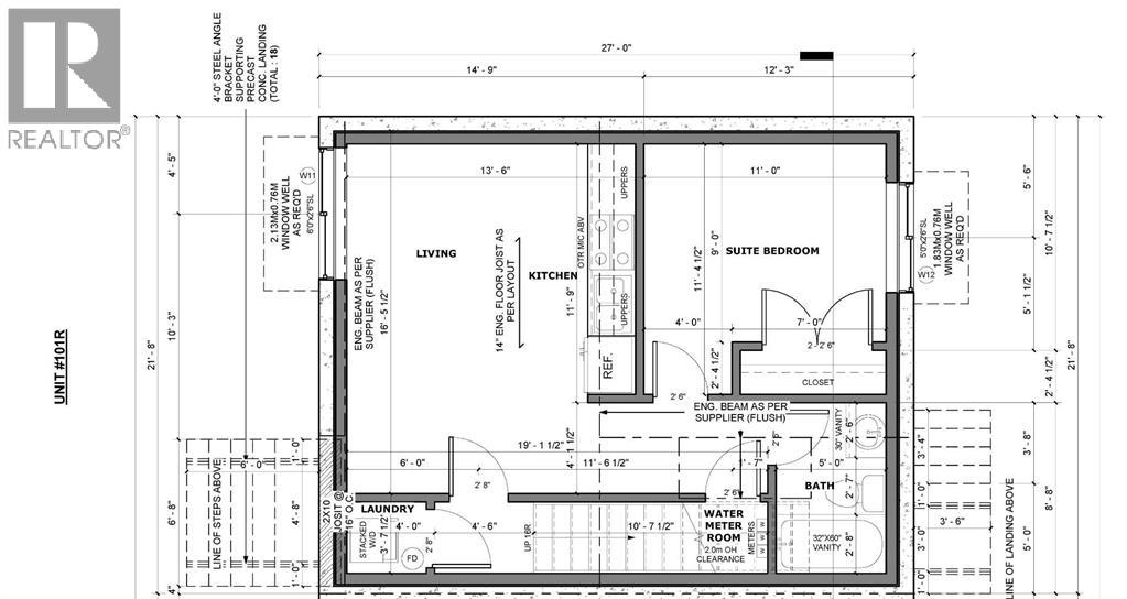
Pièces

MétriqueImpérial
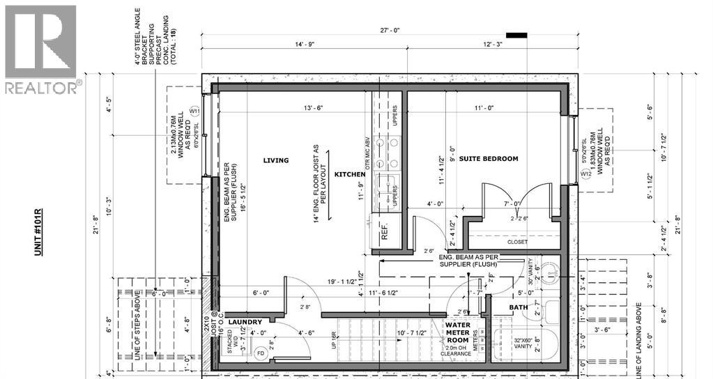
Niveau principal
Salle de bain - 2 éléments
Salon
Salle à manger
Cuisine
Vestibule
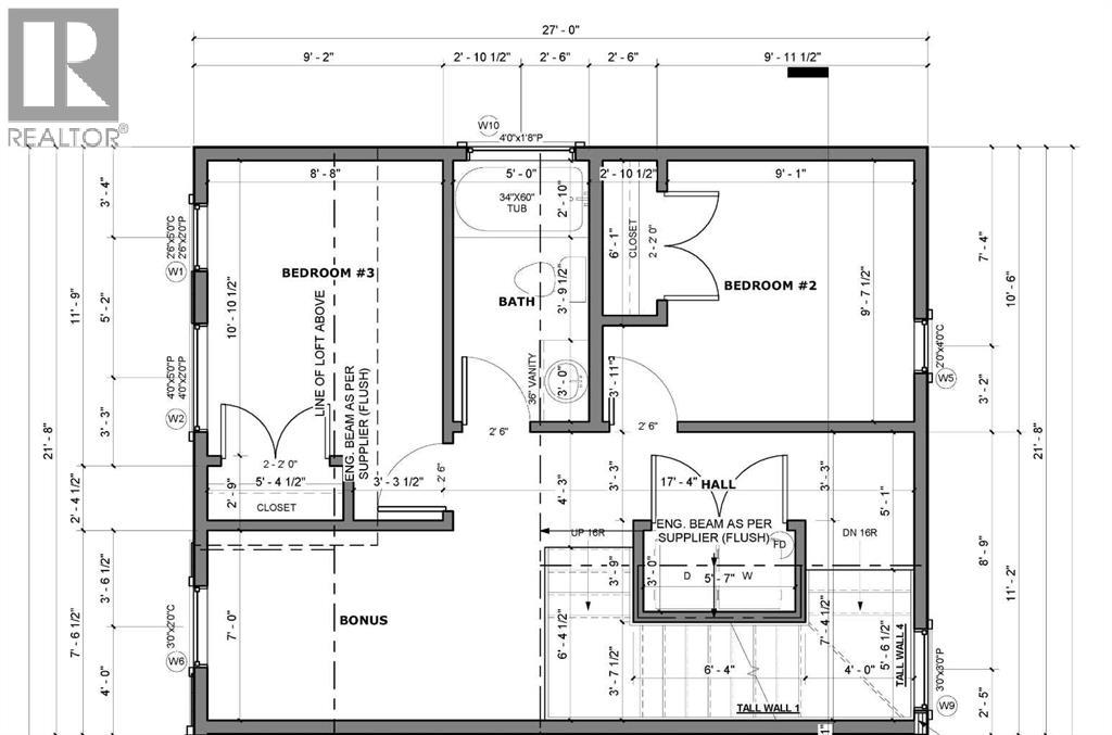
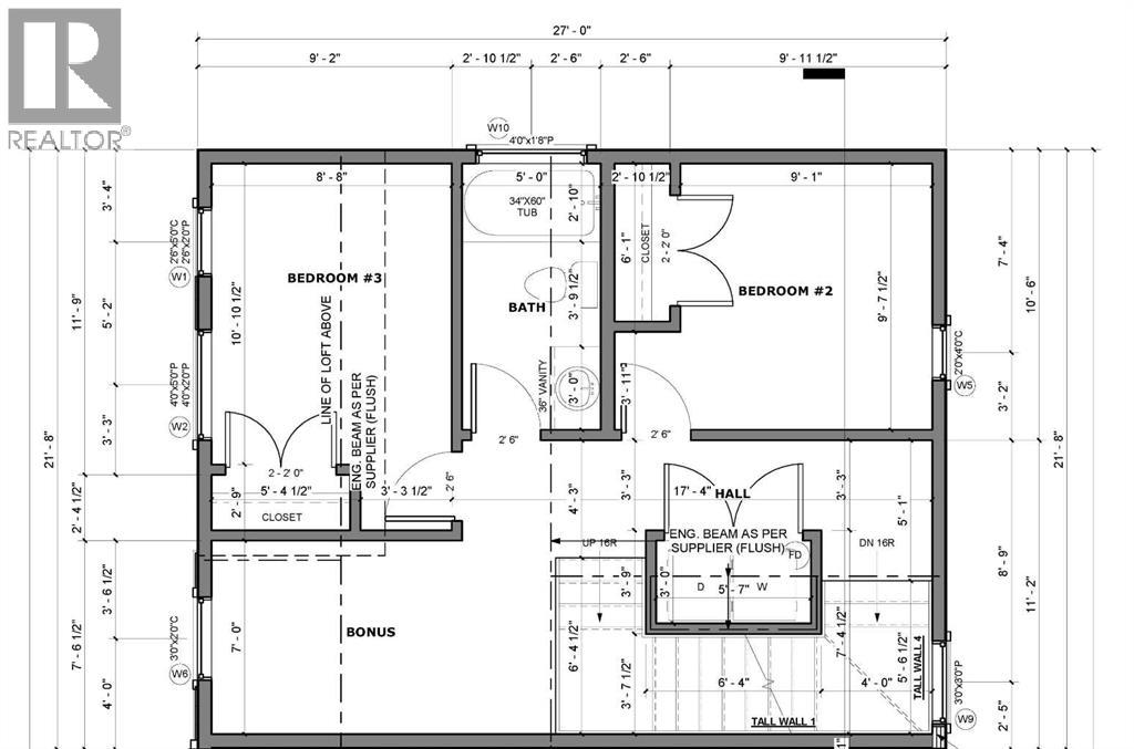
Deuxième niveau
Chambre à coucher
Chambre à coucher
Pièce supplémentaire
Salle de bain - 4 éléments
Troisième niveau
Chambre principale
Salle de bain - 4 éléments
Autre
Inconnu
Salon
Cuisine
Chambre à coucher
Salle de bain - 4 éléments

Terrain

Caractéristiques du terrain
Clôture
Non clôturé
Données fournies par : Pillar 9™
Souhaitez-vous visiter cette propriété?
Demander une visite

Inscriptions semblables

Abe M. Elhage