Nous utilisons des témoins et d’autres technologies pour assurer le fonctionnement et la sécurité de nos services en ligne, et pour vous offrir une expérience personnalisée. En continuant à utiliser nos services en ligne, vous acceptez notre Politique de confidentialité et les conditions d’utilisation. Pour obtenir des informations sur la façon de régler vos paramètres de confidentialité, veuillez consulter notre Politique sur les témoins.
Masquer
Accueil ON Grand Toronto Région de Halton Oakville Central Oakville
128 CHISHOLM STREET
Directions Imprimer
128 CHISHOLM STREET 6 500 $/mois
6 500 $/mois
Masquer
Favoris

128 CHISHOLM STREET
Oakville (CO Central), Ontario L6K3J2

Numéro MLS® : W12670522
3
Chambres
3
Salles de bain
1500 - 2000
Pieds carrés

Résumé de la propriété

Type de propriété
Unifamiliale
Type de bâtiment
Unifamilial
Étages
2
Superficie
1500 - 2000 pi2
Titre
Tenure franche
Superficie du terrain
56 x 80 FT
Âge de l'édifice
100+ ans
Type de stationnement
Garage attenant, Garage
Sur REALTOR.ca depuis
31 jours

Édifice

Chambres
Au-dessus du niveau du sol
3
Salles de bain
Total
3
Partielle
1
Caractéristiques intérieures
Appareils électroménagers inclus
Barbecue, Chauffe-eau, Sécheuse, Machine à laver, Réfrigérateur
Type de sous-sol
Partiellement aménagé
Caractéristiques du bâtiment
Caractéristiques
Plat
Type de fondation
Blocs de béton
Style
Isolée
Commodités qu'offre le bâtiment
Foyer(s)
Location de matérial incluse
Chauffe-eau
Structures
Terrasse(s), Porche, Terrasse
Chauffage et refroidissement
Foyer
3
Type de chauffage
Air pulsé (Gaz naturel)
Services publics
Services publics disponibles
Service du câble (Disponible), Électricité (Disponible), Service d'égout (Installé)
Égouts
Égout sanitaire
Eau
Approvisionnement en eau par la municipalité
Caractéristiques extérieures
Revêtement extérieur
Stuc
Caractéristiques du quartier
Commodités à proximité
Marina, Parc, Transport en commun
Stationnement
Type de stationnement
Garage attenant, Garage
Nombre total d'espaces de stationnement
6

Mesures

Superficie
1500 - 2000 pi2

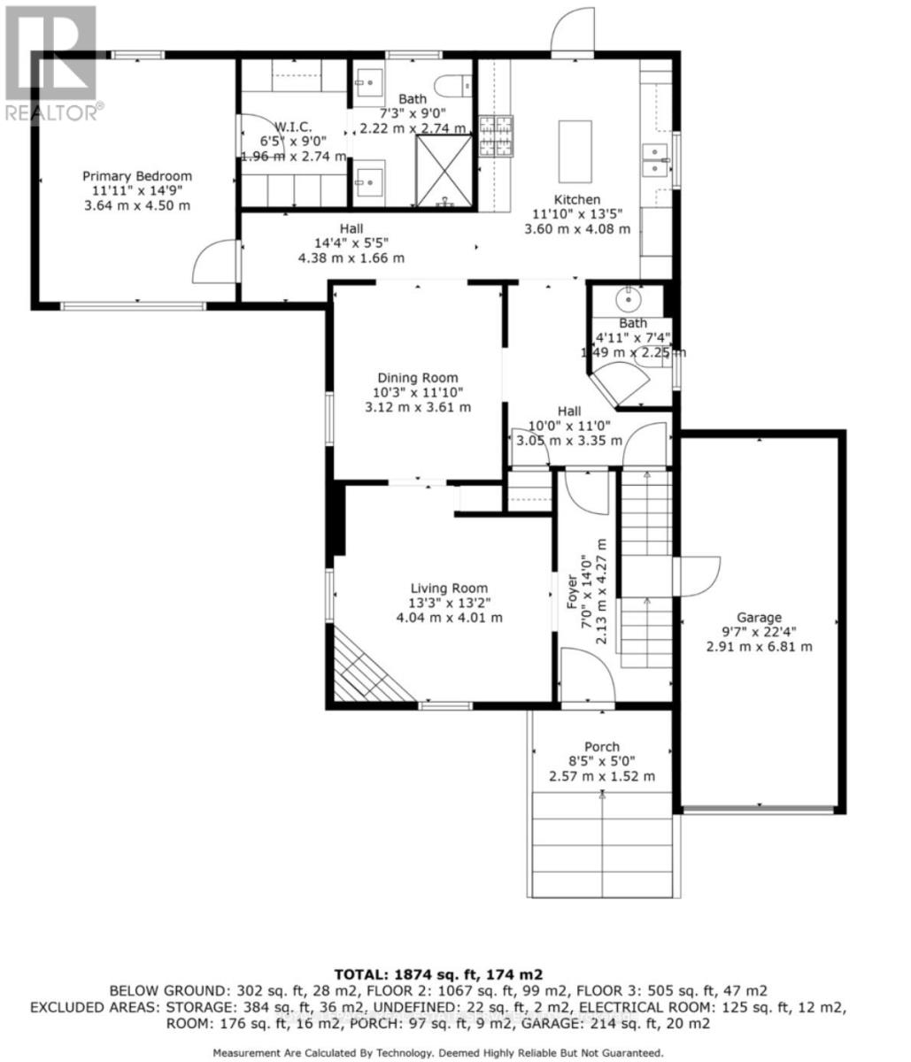
Pièces

MétriqueImpérial
Niveau principal
Salon
Salle à manger
Cuisine
Chambre principale
Deuxième niveau
Deuxième chambre
Troisième chambre
Vestibule
Sous-sol
Buanderie
Atelier
Autre

Terrain

Caractéristiques du terrain
Façade
56 pi
Superficie du terrain
80 pi
Aménagement paysager
Arroseur
Caractéristiques du bord de l'eau
Eau de surface
lac/Étang
Données fournies par : Toronto Regional Real Estate Board
Souhaitez-vous visiter cette propriété?
Demander une visite

Inscriptions semblables

DOUGLAS ALLAN IZON