Nous utilisons des témoins et d’autres technologies pour assurer le fonctionnement et la sécurité de nos services en ligne, et pour vous offrir une expérience personnalisée. En continuant à utiliser nos services en ligne, vous acceptez notre Politique de confidentialité et les conditions d’utilisation. Pour obtenir des informations sur la façon de régler vos paramètres de confidentialité, veuillez consulter notre Politique sur les témoins.
Masquer
Accueil ON Comté de Simcoe Wasaga Beach
27 PENNSYLVANIA AVENUE E
Directions Imprimer
27 PENNSYLVANIA AVENUE E 484 900 $
484 900 $
Masquer
Favoris

27 PENNSYLVANIA AVENUE E
Wasaga Beach, Ontario L9Z3A8

Numéro MLS® : S12670458
3
Chambres
2
Salles de bain
1100 - 1500
Pieds carrés

Résumé de la propriété

Type de propriété
Unifamiliale
Type de bâtiment
Modulaire
Étages
1
Superficie
1100 - 1500 pi2
Titre
Bail/terre louée
Impôt foncier annuel
1 979,80 $
Type de stationnement
Garage
Sur REALTOR.ca depuis
10 jours

Édifice

Chambres
Au-dessus du niveau du sol
3
Salles de bain
Total
2
Caractéristiques intérieures
Appareils électroménagers inclus
Compteur d'eau, Stores, Sécheuse, Cuisinière, Machine à laver, Réfrigérateur
Couvre-plancher
Carrelage
Type de sous-sol
Vide sanitaire
Caractéristiques du bâtiment
Caractéristiques
Ceinture verte
Type de fondation
Blocs de béton
Autre style
Maison préfabriquée
Style d'architecture
Bungalow
Protection contre les incendies
Entrée sélective
Commodités qu'offre le bâtiment
Foyer(s)
Location de matérial incluse
Aucun
Structures
Terrasse
Chauffage et refroidissement
Système de refroidissement
Climatisation centrale
Foyer
1
Type de chauffage
Air pulsé (Gaz naturel)
Services publics
Égouts
Égout sanitaire
Eau
Approvisionnement en eau par la municipalité
Caractéristiques extérieures
Revêtement extérieur
Bardage en vinyle
Stationnement
Type de stationnement
Garage
Nombre total d'espaces de stationnement
3

Mesures

Superficie
1100 - 1500 pi2

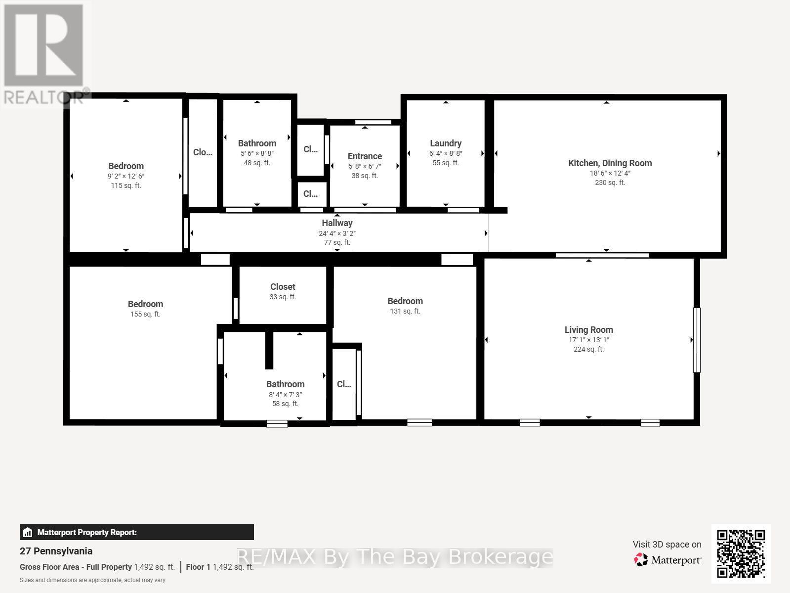
Pièces

MétriqueImpérial
Niveau principal
Salon
Cuisine
Chambre principale
Deuxième chambre
Troisième chambre
Buanderie
Données fournies par : OnePoint - The Lakelands
Souhaitez-vous visiter cette propriété?
Demander une visite

Inscriptions semblables

SCOTT R. HORSLIN