Nous utilisons des témoins et d’autres technologies pour assurer le fonctionnement et la sécurité de nos services en ligne, et pour vous offrir une expérience personnalisée. En continuant à utiliser nos services en ligne, vous acceptez notre Politique de confidentialité et les conditions d’utilisation. Pour obtenir des informations sur la façon de régler vos paramètres de confidentialité, veuillez consulter notre Politique sur les témoins.
Masquer
Accueil BC Cowichan Valley Ladysmith
439 Parkhill Terr
Directions Imprimer
439 Parkhill Terr 849 900 $
Prochaine visite libre
28
févr.
849 900 $
Masquer
Favoris

439 Parkhill Terr
Ladysmith, Colombie-Britannique V9G1V6

Numéro MLS® : 1022454
4
Chambres
3
Salles de bain
2926
Pieds carrés

Visites libres

28 févr.
0 h - 14 h
Ajouter au calendrier

Résumé de la propriété

Type de propriété
Unifamiliale
Type de bâtiment
Unifamilial
Superficie
2926 pi2
Titre
Tenure franche
Superficie du terrain
12750 pi2
Date de construction
1973
Impôt foncier annuel
5 286,72 $
Nombre total d'espaces de stationnement
3
Sur REALTOR.ca depuis
52 jours

Prix et historique

Date Statut Prix vendu
1 mai 2025 Vente conclue 785 000 $

Édifice

Salles de bain
Total
3
Caractéristiques intérieures
Appareils électroménagers inclus
Lave-vaisselle, Cuisinière électrique, Réfrigérateur, Cuisinière, Machine à laver, Sécheuse
Caractéristiques du bâtiment
Caractéristiques
Site central, Partiellement dégagé, Autre, Maritime
Structures
Remise, Atelier, Terrasse(s)
Chauffage et refroidissement
Système de refroidissement
Climatisé, Climatisation centrale
Foyer
2
Type de chauffage
Air pulsé, Thermopompe, (Huile), (Bois)
Stationnement
Nombre total d'espaces de stationnement
3

Mesures

Superficie
2926 pi2
Superficie totale aménagée
2632 pi2

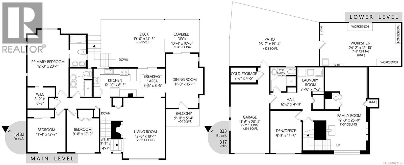
Pièces

MétriqueImpérial
Niveau principal
Balcon
Chambres communicantes, agencement en suite
Salle de bain
Chambre à coucher
Entrée
Chambre à coucher
Chambre principale
Salle à manger
Cuisine
Recoin-repas
Salon
Niveau inférieur
Chambre à coucher
Lieu de rangement
Patio
Atelier
Salle de bain
Buanderie
Salle familiale

Terrain

Caractéristiques du terrain
Vue
Vue sur la montagne, Vue sur l'océan
Autres informations sur la propriété
Accès
Accès routier
Type de Zonage
Résidentiel
Données fournies par : Vancouver Island Real Estate Board
Souhaitez-vous visiter cette propriété?
Demander une visite

Inscriptions semblables

Carol Warkentin