Nous utilisons des témoins et d’autres technologies pour assurer le fonctionnement et la sécurité de nos services en ligne, et pour vous offrir une expérience personnalisée. En continuant à utiliser nos services en ligne, vous acceptez notre Politique de confidentialité et les conditions d’utilisation. Pour obtenir des informations sur la façon de régler vos paramètres de confidentialité, veuillez consulter notre Politique sur les témoins.
Masquer
Accueil NB Comté de Kent Dundas
3737 Route 530
Directions Imprimer
3737 Route 530 274 900 $
274 900 $
Masquer
Favoris

3737 Route 530
Grande-Digue, Nouveau-Brunswick E4R5H5

Numéro MLS® : NB131609
2
Chambres
1
Salles de bain
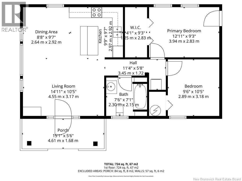
781
Pieds carrés

Résumé de la propriété

Type de propriété
Unifamiliale
Étages
1
Superficie
781 pi2
Titre
Tenure franche
Superficie du terrain
3.21 a
Impôt foncier annuel
1 841,96 $
Sur REALTOR.ca depuis
12 jours

Édifice

Chambres
Au-dessus du niveau du sol
2
Salles de bain
Total
1
Partielle
0
Caractéristiques intérieures
Couvre-plancher
plancher de bois franc
Type de sous-sol
Vide sanitaire
Caractéristiques du bâtiment
Caractéristiques
Terrain plat, Balcon/terrasse
Type de fondation
Blocs de béton
Style d'architecture
Bungalow
Location de matérial incluse
Aucun
Structures
Remise
Chauffage et refroidissement
Système de refroidissement
Climatisé, Thermopompe
Type de chauffage
Plinthes chauffantes, Thermopompe, (Électrique)
Services publics
Égouts
Champ d'épuration
Eau
Puits foré à la sondeuse, Puits
Caractéristiques extérieures
Revêtement extérieur
Bardeaux de cèdre, Bois
Caractéristiques du quartier
Caractéristiques de la communauté
Pêche
Commodités à proximité
Marina, Loisirs à proximité, Centres commerciaux

Mesures

Superficie
781 pi2
Superficie finie au-dessus du niveau du sol
781 pi2
Superficie totale aménagée
781 pi2

Pièces

MétriqueImpérial
Niveau principal
Chambre à coucher
Autre
Chambre principale
Salle de bain - 4 éléments
Cuisine/Salle à manger
Salon

Terrain

Caractéristiques du terrain
Aménagement paysager
Terrain paysager
Type de route
Route revêtue
Vue
Vue sur l'océan
Autres informations sur la propriété
Accès
Accès toute l'année, Accès routier, Voie publique
Données fournies par : REALTORS® du Nouveau Brunswick
Souhaitez-vous visiter cette propriété?
Demander une visite

Inscriptions semblables

Nick Melanson