Nous utilisons des témoins et d’autres technologies pour assurer le fonctionnement et la sécurité de nos services en ligne, et pour vous offrir une expérience personnalisée. En continuant à utiliser nos services en ligne, vous acceptez notre Politique de confidentialité et les conditions d’utilisation. Pour obtenir des informations sur la façon de régler vos paramètres de confidentialité, veuillez consulter notre Politique sur les témoins.
Masquer
Accueil MB Division No. 7 Riverdale
69071 116W Road
Directions Imprimer
69071 116W Road 899 900 $
899 900 $
Masquer
Favoris

69071 116W Road
Brandon, Manitoba R0K1X0

Numéro MLS® : 202600145
5
Chambres
3
Salles de bain
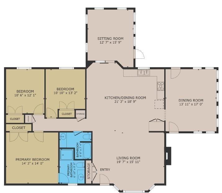
1885
Pieds carrés

Résumé de la propriété

Type de propriété
Unifamiliale
Type de bâtiment
Unifamilial
Étages
1
Superficie
1885 pi2
Titre
Tenure franche
Superficie du terrain
5.82 a
Date de construction
2002
Impôt foncier annuel
6 100,99 $
Type de stationnement
Garage attenant, Garage détaché, Autre, Autre
Sur REALTOR.ca depuis
57 jours

Édifice

Salles de bain
Total
3
Partielle
0
Caractéristiques intérieures
Appareils électroménagers inclus
Four à micro-ondes encastré, Stores, Lave-vaisselle, Sécheuse, Ouvre-porte de garage, Télécommande(s) d'ouvre-porte de garage, Micro-ondes, Réfrigérateur, Cuisinière, Machine à laver, Adoucisseur d'eau, Couvre-fenêtre
Accessoires fixes inclus
Ventilateurs de plafond
Couvre-plancher
Moquette, plancher en stratifié, Vinyle
Caractéristiques du bâtiment
Caractéristiques
Terrain requérant peu d'entretien, Boisé, Terrain plat, Maison sans fumeurs, Résidentiel campagne, Pompe de vidange, Cour privée
Style d'architecture
Bungalow
Protection contre les incendies
Détecteurs de fumée
Structures
Terrasse, Atelier
Chauffage et refroidissement
Système de refroidissement
Climatisation centrale
Type de chauffage
Air pulsé (Électrique)
Services publics
Égouts
Fosse septique et champ d'épuration
Eau
Puits
Caractéristiques du quartier
Commodités à proximité
Centres commerciaux
Stationnement
Type de stationnement
Garage attenant, Garage détaché, Autre

Mesures

Superficie
1885 pi2

Terrain

Caractéristiques du terrain
Aménagement paysager
Arbres fruitiers/Arbustes, Potager
Données fournies par : Brandon Area REALTORS®
Souhaitez-vous visiter cette propriété?
Demander une visite

Inscriptions semblables

Audrey Wilson