Nous utilisons des témoins et d’autres technologies pour assurer le fonctionnement et la sécurité de nos services en ligne, et pour vous offrir une expérience personnalisée. En continuant à utiliser nos services en ligne, vous acceptez notre Politique de confidentialité et les conditions d’utilisation. Pour obtenir des informations sur la façon de régler vos paramètres de confidentialité, veuillez consulter notre Politique sur les témoins.
Masquer
Accueil ON Comté de Grey West Grey
55 - 302694 DOUGLAS STREET
Directions Imprimer
55 - 302694 DOUGLAS STREET 199 000 $
199 000 $
Masquer
Favoris

55 - 302694 DOUGLAS STREET
West Grey, Ontario N0G1R0

Numéro MLS® : X12655692
2
Chambres
1
Salles de bain
700 - 1100
Pieds carrés

Résumé de la propriété

Type de propriété
Unifamiliale
Type de bâtiment
Maison mobile
Étages
1
Superficie
700 - 1100 pi2
Titre
Bail/terre louée
Superficie du terrain
50 x 200 FT|moins de 1/2 acre
Âge de l'édifice
51 à 99 ans
Impôt foncier annuel
0 $
Type de stationnement
Aucun garage
Sur REALTOR.ca depuis
15 jours

Édifice

Chambres
Au-dessus du niveau du sol
2
Salles de bain
Total
1
Caractéristiques intérieures
Appareils électroménagers inclus
Chauffe-eau, Lave-vaisselle, Sécheuse, Cuisinière(s) à gaz, Machine à laver, Couvre-fenêtre, Réfrigérateur
Type de sous-sol
Vide sanitaire
Caractéristiques du bâtiment
Caractéristiques
Cul-de-sac, Zone boisée, Terrain plat, Accès par fauteuil roulant
Type de fondation
Bois/pilotis
Style d'architecture
Bungalow
Protection contre les incendies
Détecteurs de fumée
Structures
Remise
Chauffage et refroidissement
Système de refroidissement
Climatisation centrale
Type de chauffage
Air pulsé (Gaz naturel)
Services publics
Services publics disponibles
Service du câble (Disponible), Électricité (Installé), Sans fil (Disponible), Gaz naturel disponible (Disponible)
Égouts
Fosse septique
Eau
Puits foré à la sondeuse, Puits commun
Caractéristiques extérieures
Revêtement extérieur
Bardage en vinyle
Caractéristiques du quartier
Commodités à proximité
Un hôpital
Stationnement
Type de stationnement
Aucun garage
Nombre total d'espaces de stationnement
2

Mesures

Superficie
700 - 1100 pi2

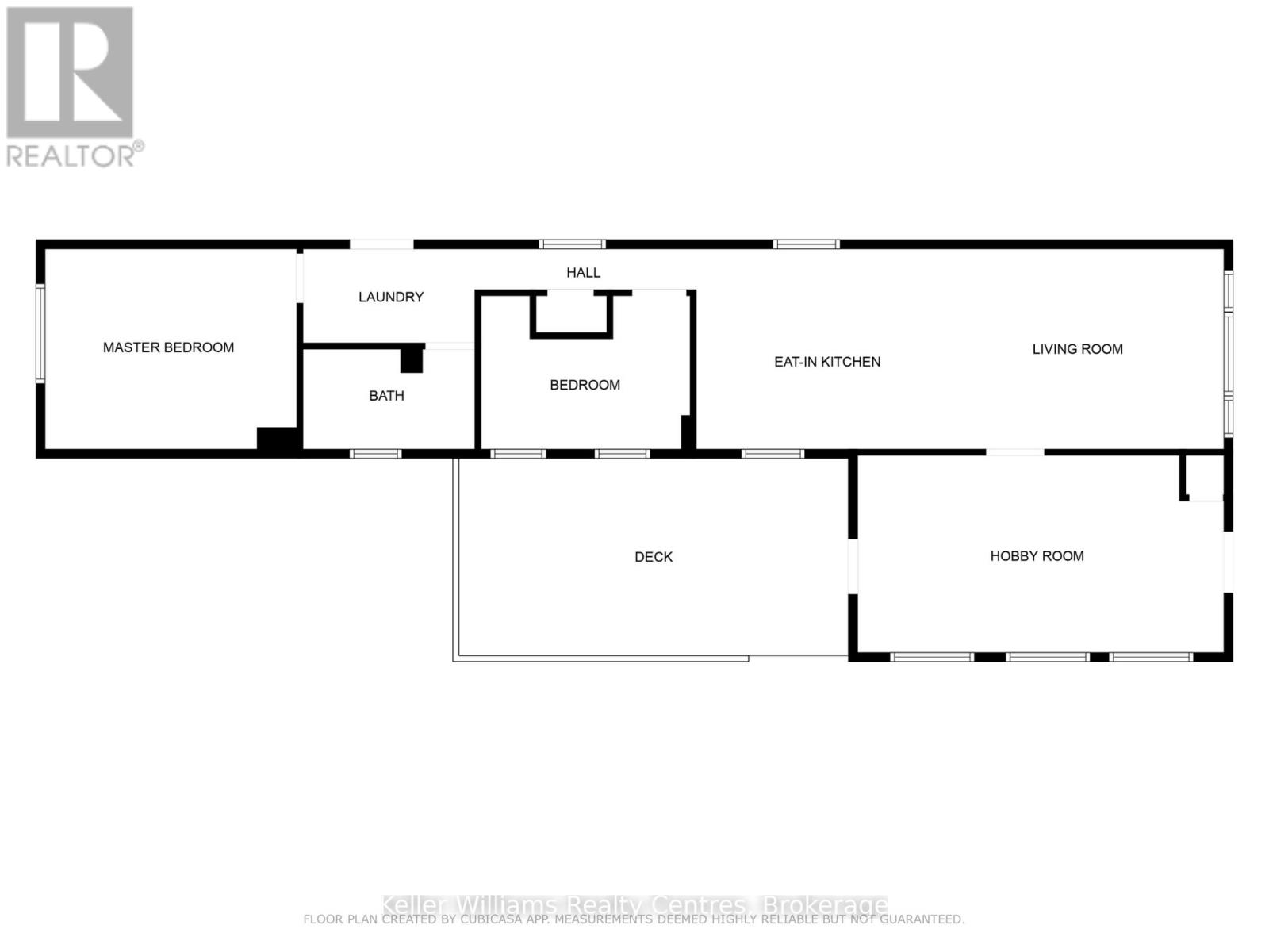
Pièces

MétriqueImpérial
Niveau du sol
Vestibule
Cuisine
Chambre à coucher
Deuxième chambre

Terrain

Caractéristiques du terrain
Façade
50 pi
Superficie du terrain
200 pi
Données fournies par : OnePoint - The Lakelands
Souhaitez-vous visiter cette propriété?
Demander une visite

Inscriptions semblables

TRACEY KIRSTINE