Nous utilisons des témoins et d’autres technologies pour assurer le fonctionnement et la sécurité de nos services en ligne, et pour vous offrir une expérience personnalisée. En continuant à utiliser nos services en ligne, vous acceptez notre Politique de confidentialité et les conditions d’utilisation. Pour obtenir des informations sur la façon de régler vos paramètres de confidentialité, veuillez consulter notre Politique sur les témoins.
Masquer
Accueil ON Grand Windsor Comté d'Essex LaSalle
3570 Oke DRIVE
Directions Imprimer
Plus de photos + 2
3570 Oke DRIVE 1 560 900 $
Depuis 6 heures
1 560 900 $
Masquer
Favoris

3570 Oke DRIVE
LaSalle, Ontario N9J0E9

Numéro MLS® : 25031868
4
Chambres
3
Salles de bain
3200
Pieds carrés

Résumé de la propriété

Type de propriété
Unifamiliale
Type de bâtiment
Unifamilial
Étages
2
Superficie
3200 pi2
Titre
Tenure franche
Superficie du terrain
65.73 X 191.09 FT
Type de stationnement
Garage attenant, Garage, Entrée intérieure
Sur REALTOR.ca depuis
6 heures

Édifice

Chambres
Au-dessus du niveau du sol
4
Salles de bain
Total
3
Caractéristiques intérieures
Couvre-plancher
Céramique/porcelaine, plancher de bois franc
Caractéristiques du bâtiment
Caractéristiques
Voie d'accès pour deux autos ou plus, Entrée de façade
Type de fondation
Fondation en béton
Style
Isolée
Chauffage et refroidissement
Système de refroidissement
Climatisation centrale
Type de foyer
Ventilateur direct (Gaz)
Type de chauffage
Air pulsé, Chaudière, Ventilateur récupérateur de chaleur (VRC), (Gaz naturel)
Caractéristiques extérieures
Revêtement extérieur
Brique, Pierre, Ciment/stucco
Stationnement
Type de stationnement
Garage attenant, Garage, Entrée intérieure

Mesures

Superficie
3200 pi2
Superficie totale aménagée
3200 pi2

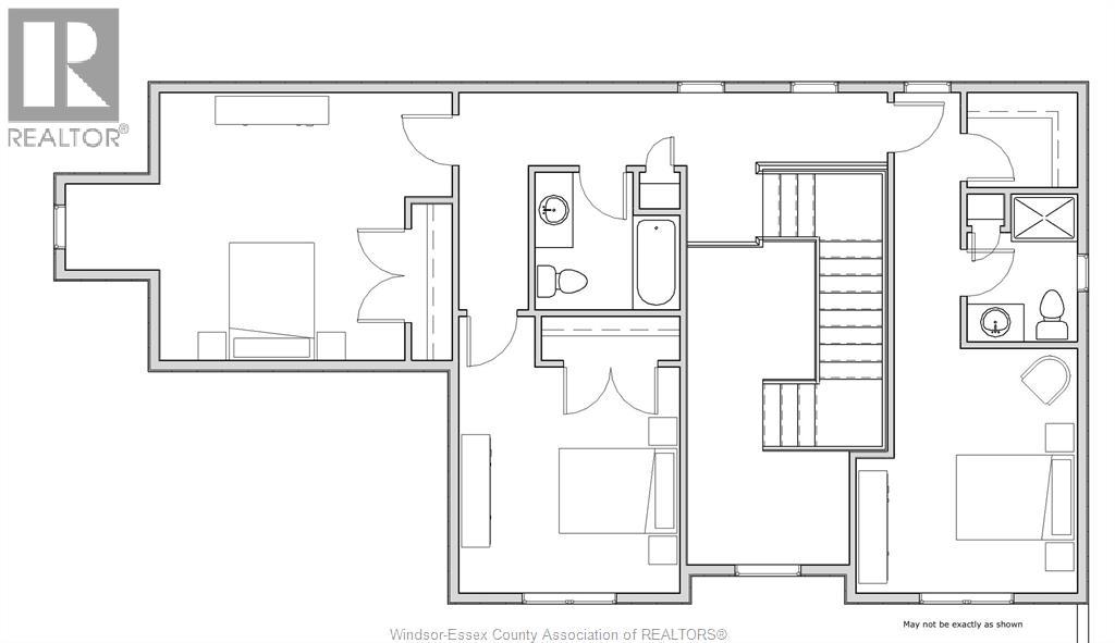
Pièces

Niveau principal
Salle de bain - 2 éléments
Salle de bain attenante - (5 éléments)
Vestibule
Buanderie
Chambre principale
Salle à manger
Cuisine
Salon/foyer
Bureau
Vestibule
Deuxième niveau
Salle de bain - 4 éléments
Salle de bain attenante - (3 éléments)
Chambre à coucher
Chambre à coucher
Chambre à coucher
Sous-sol
Lieu de rangement
Local de services
Souhaitez-vous visiter cette propriété?
Demander une visite

Inscriptions semblables

PETER-JAMES LUCENTE