Nous utilisons des témoins et d’autres technologies pour assurer le fonctionnement et la sécurité de nos services en ligne, et pour vous offrir une expérience personnalisée. En continuant à utiliser nos services en ligne, vous acceptez notre Politique de confidentialité et les conditions d’utilisation. Pour obtenir des informations sur la façon de régler vos paramètres de confidentialité, veuillez consulter notre Politique sur les témoins.
Masquer
Accueil ON Grand Toronto Région de York Markham Victoria Square
29 GEORGE PEACH AVENUE
Directions Imprimer
29 GEORGE PEACH AVENUE 3 800 $/mois
Depuis 12 heures
3 800 $/mois
Masquer
Favoris

29 GEORGE PEACH AVENUE
Markham (Cathedraltown), Ontario L6C0Z1

Numéro MLS® : N12641366
3 + 1
Chambres
3
Salles de bain
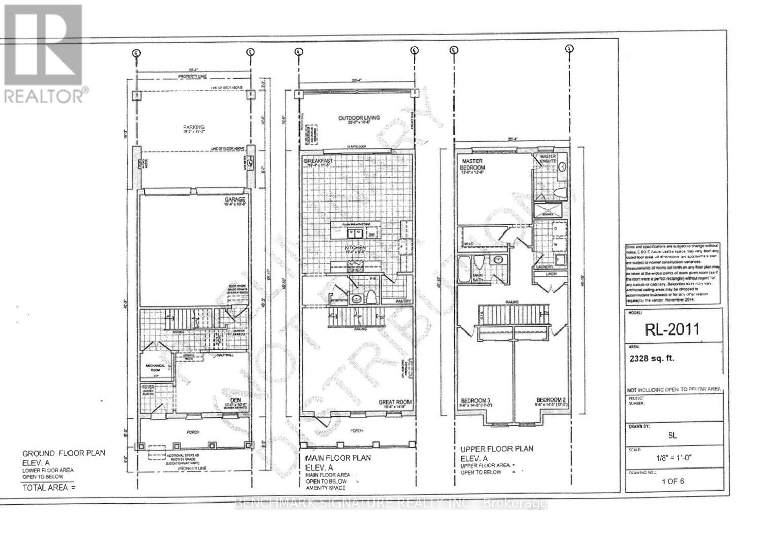
2000 - 2500
Pieds carrés

Résumé de la propriété

Type de propriété
Unifamiliale
Type de bâtiment
Maison en rangée
Étages
3
Superficie
2000 - 2500 pi2
Titre
Tenure franche
Âge de l'édifice
0 à 5 ans
Type de stationnement
Garage
Sur REALTOR.ca depuis
12 heures

Édifice

Chambres
Au-dessus du niveau du sol
3
Au-dessous du niveau du sol
1
Salles de bain
Total
3
Partielle
1
Caractéristiques intérieures
Appareils électroménagers inclus
Lave-vaisselle, Sécheuse, Hotte, Chauffe-eau, Cuisinière, Machine à laver, Réfrigérateur
Type de sous-sol
Pas de sous-sol
Caractéristiques du bâtiment
Caractéristiques
Sans tapis
Type de fondation
Fondation en béton
Style
En rangée
Chauffage et refroidissement
Système de refroidissement
Climatisation centrale
Type de chauffage
Air pulsé (Gaz naturel)
Services publics
Services publics disponibles
Service d'égout (Disponible)
Égouts
Égout sanitaire
Eau
Approvisionnement en eau par la municipalité
Caractéristiques extérieures
Revêtement extérieur
Brique
Caractéristiques du quartier
Caractéristiques de la communauté
Centre communautaire
Commodités à proximité
Parc, Écoles
Stationnement
Type de stationnement
Garage
Nombre total d'espaces de stationnement
4

Mesures

Superficie
2000 - 2500 pi2

Pièces

MétriqueImpérial
Deuxième niveau
Cuisine
Salle à manger
Salon
Troisième niveau
Chambre principale
Deuxième chambre
Troisième chambre
Niveau du sol
Coin repos
Données fournies par : Toronto Regional Real Estate Board
Souhaitez-vous visiter cette propriété?
Demander une visite

Inscriptions semblables

MING WONG