Nous utilisons des témoins et d’autres technologies pour assurer le fonctionnement et la sécurité de nos services en ligne, et pour vous offrir une expérience personnalisée. En continuant à utiliser nos services en ligne, vous acceptez notre Politique de confidentialité et les conditions d’utilisation. Pour obtenir des informations sur la façon de régler vos paramètres de confidentialité, veuillez consulter notre Politique sur les témoins.
Masquer
Accueil NS Comté de Hants East Hants
Unit 210 Hybrid Lane
Directions Imprimer
Unit 210 Hybrid Lane 629 900 $
629 900 $
Masquer
Favoris

Unit 210 Hybrid Lane
East Uniacke, Nouvelle-Écosse B0N1Z0

Numéro MLS® : 202529560
3
Chambres
2
Salles de bain
1574
Pieds carrés

Résumé de la propriété

Type de propriété
Unifamiliale
Étages
1
Superficie
1574 pi2
Titre
Copropriété divise
Superficie du terrain
1.3 a
Type de stationnement
Gravier
Sur REALTOR.ca depuis
71 jours

Édifice

Chambres
Au-dessus du niveau du sol
3
Salles de bain
Total
2
Partielle
0
Caractéristiques intérieures
Couvre-plancher
plancher de bois franc usiné, plancher de bois franc
Type de sous-sol
Pas de sous-sol
Caractéristiques du bâtiment
Type de fondation
Béton coulé, Dalle en béton
Style
Isolée
Style d'architecture
Bungalow
Chauffage et refroidissement
Système de refroidissement
Thermopompe
Services publics
Égouts
Fosse septique
Eau
Puits foré à la sondeuse, Puits
Caractéristiques extérieures
Revêtement extérieur
Aluminium, Vinyle
Infos entretien ou copropriété
Frais d'entretien
50 $ mois
Société de gestion de l'entretien
Condo Corp # 6
Stationnement
Type de stationnement
Gravier
Fonctions d’accessibilité
Entrée et accès
Cadres de porte d'entrée : min. 32 po, Entrée : moins de 3 marches
Déplacement à l'intérieur
Cadres de porte : min. 32 po

Mesures

Superficie
1574 pi2
Source : Propriétaire
Superficie totale aménagée
1574 pi2

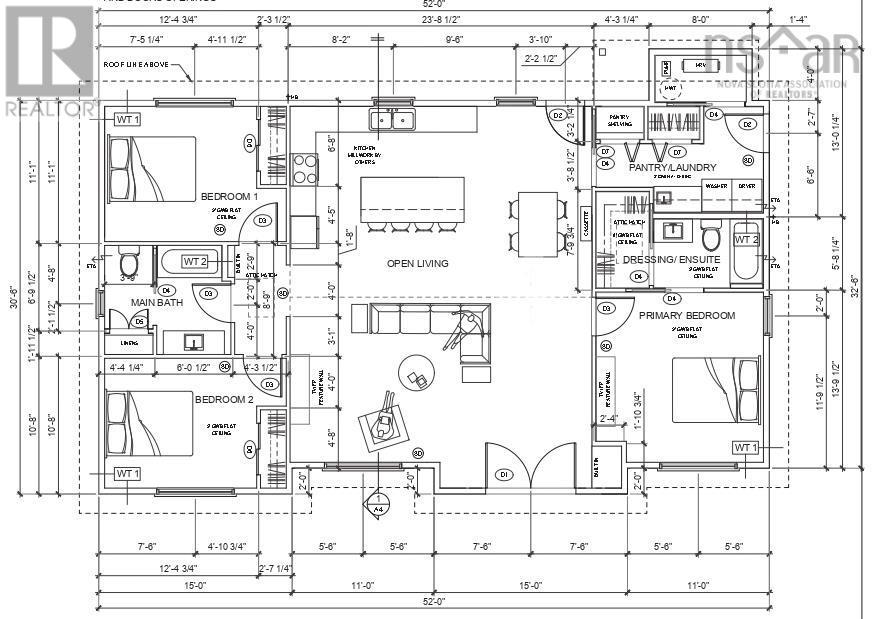
Pièces

MétriqueImpérial
Niveau principal
Grande salle
Chambre principale
Ensuite (nbre de pièces 2-6)
Buanderie
Chambre à coucher
Chambre à coucher
Bain (nbre de pièces 1-6)

Terrain

Caractéristiques du terrain
Aménagement paysager
Partiellement aménagé
Données fournies par : Nova Scotia Association of REALTORS®
Souhaitez-vous visiter cette propriété?
Demander une visite

Inscriptions semblables

Johnathon Benedict