Nous utilisons des témoins et d’autres technologies pour assurer le fonctionnement et la sécurité de nos services en ligne, et pour vous offrir une expérience personnalisée. En continuant à utiliser nos services en ligne, vous acceptez notre Politique de confidentialité et les conditions d’utilisation. Pour obtenir des informations sur la façon de régler vos paramètres de confidentialité, veuillez consulter notre Politique sur les témoins.
Masquer
Accueil SK Grand Saskatoon Division No. 11 Saskatoon College Park East
9 1025 Boychuk DRIVE
Directions Imprimer
9 1025 Boychuk DRIVE 16 $/pieds carrés
Depuis 20 heures
16 $/pieds carrés
Masquer
Favoris

9 1025 Boychuk DRIVE
Saskatoon, Saskatchewan S7H5B2

Numéro MLS® : SK025642

Résumé de la propriété

Type de propriété
Détail
Type de bâtiment
Détail
Titre
Tenure à bail
Date de construction
1977
Sur REALTOR.ca depuis
20 heures

Édifice

Caractéristiques du bâtiment
Commodités qu'offre le bâtiment
Devanture de magasin
Entreprise
Type d'entreprise
Vente de détail et en gros (Vente au détail)

Mesures

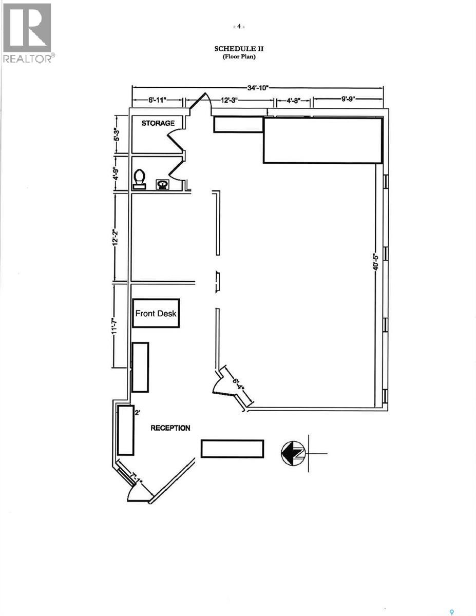
Superficie
1638 pi2
Dimension du bâtiment - extérieur
1638 pi2
Données fournies par : Saskatchewan REALTORS® Association
Souhaitez-vous visiter cette propriété?
Demander une visite

Maurice (Moe) Bloom