Nous utilisons des témoins et d’autres technologies pour assurer le fonctionnement et la sécurité de nos services en ligne, et pour vous offrir une expérience personnalisée. En continuant à utiliser nos services en ligne, vous acceptez notre Politique de confidentialité et les conditions d’utilisation. Pour obtenir des informations sur la façon de régler vos paramètres de confidentialité, veuillez consulter notre Politique sur les témoins.
Masquer
Accueil ON Grand Toronto Région de Halton Oakville Glen Abbey
2501 SAW WHET Boulevard Unit# 251
Directions Imprimer
2501 SAW WHET Boulevard Unit# 251 2 550 $/mois
Modification du prix le 2026/02/05
2 550 $/mois
-100 $/mois
2 650 $/mois
Masquer
Favoris

2501 SAW WHET Boulevard Unit# 251
Oakville, Ontario L6M5N2

Numéro MLS® : 40794143
2
Chambres
2
Salles de bain
759
Pieds carrés

Résumé de la propriété

Type de propriété
Unifamiliale
Type de bâtiment
Appartement
Étages
1
Superficie
759 pi2
Titre
Copropriété divise
Superficie du terrain
Inconnu
Type de stationnement
Stationnement souterrain, Stationnement pour les visiteurs
Sur REALTOR.ca depuis
51 jours

Édifice

Chambres
Au-dessus du niveau du sol
2
Salles de bain
Total
2
Caractéristiques intérieures
Appareils électroménagers inclus
Lave-vaisselle, Sécheuse, Micro-ondes, Réfrigérateur, Cuisinière, Machine à laver, Couvre-fenêtre
Type de sous-sol
Pas de sous-sol
Caractéristiques du bâtiment
Caractéristiques
Balcon
Style
En rangée
Commodités qu'offre le bâtiment
Salle d'exercises, Salle de réception
Entreposage
Armoire vestiaire
Chauffage et refroidissement
Système de refroidissement
Climatisation centrale
Type de chauffage
Air pulsé
Services publics
Égouts
Égout municipal
Eau
Approvisionnement en eau par la municipalité
Caractéristiques extérieures
Revêtement extérieur
Placage de brique
Caractéristiques du quartier
Commodités à proximité
Terrain de golf à proximité, Un hôpital, Parc, Lieu de culte, Transport en commun, Écoles, Centres commerciaux
Infos entretien ou copropriété
Les frais d'entretien comprennent
Assurance
Stationnement
Type de stationnement
Stationnement souterrain, Stationnement pour les visiteurs
Nombre total d'espaces de stationnement
1

Mesures

Superficie
759 pi2
Superficie finie au-dessus du niveau du sol
759 pi2
Source : Constructeur

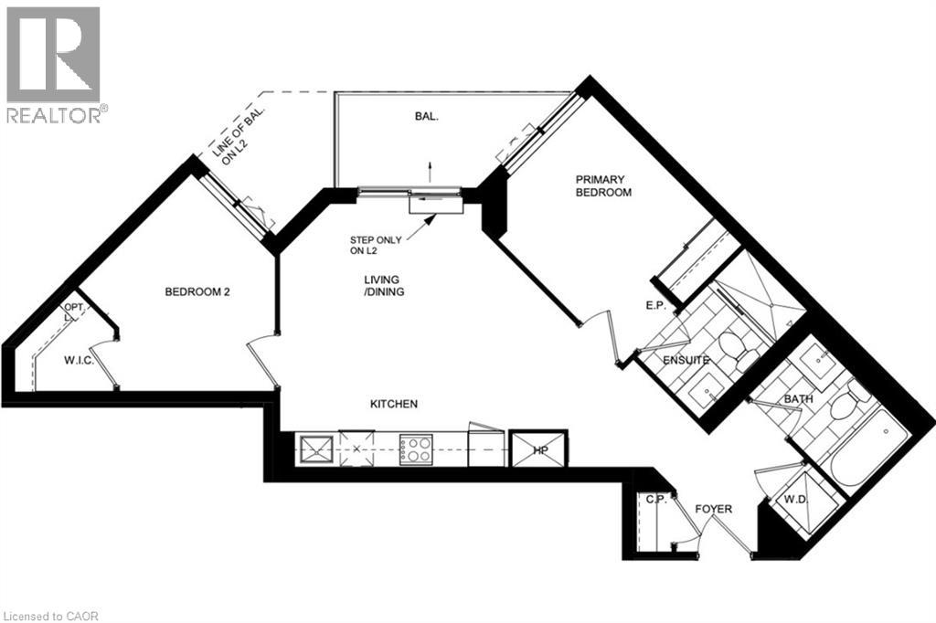
Pièces

MétriqueImpérial
Niveau principal
Salle de bain - 3 éléments
Salle de bain - 3 éléments
Chambre à coucher
Chambre principale
Cuisine
Souhaitez-vous visiter cette propriété?
Demander une visite

Inscriptions semblables

Brooke Hicks