Nous utilisons des témoins et d’autres technologies pour assurer le fonctionnement et la sécurité de nos services en ligne, et pour vous offrir une expérience personnalisée. En continuant à utiliser nos services en ligne, vous acceptez notre Politique de confidentialité et les conditions d’utilisation. Pour obtenir des informations sur la façon de régler vos paramètres de confidentialité, veuillez consulter notre Politique sur les témoins.
Masquer
Accueil ON Grand Toronto Toronto Scarborough Dorset Park
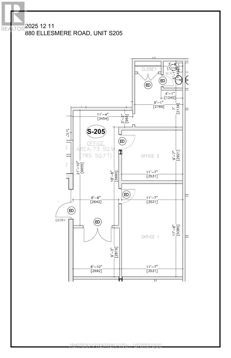
S205 - 880 ELLESMERE ROAD
Directions Imprimer
S205 - 880 ELLESMERE ROAD 2 900 $/mois
Depuis 5 jours
2 900 $/mois
Masquer
Favoris

S205 - 880 ELLESMERE ROAD
Toronto (Dorset Park), Ontario M1P2W6

Numéro MLS® : E12635026
1
Salles de bain
785
Pieds carrés

Résumé de la propriété

Type de propriété
Bureau
Type de bâtiment
Bureaux
Superficie
785 pi2
Impôt foncier annuel
0 $
Sur REALTOR.ca depuis
5 jours

Édifice

Salles de bain
Total
1
Caractéristiques du bâtiment
Caractéristiques
Ascenseur
Chauffage et refroidissement
Système de refroidissement
Entièrement climatisé
Type de chauffage
Air pulsé (Gaz naturel)
Services publics
Eau
Approvisionnement en eau par la municipalité
Caractéristiques du quartier
Commodités à proximité
Autoroute, Transport en commun

Mesures

Superficie
785 pi2

Terrain

Autres informations sur la propriété
Type de bail
Net
Caractéristiques de la ferme
Type de ferme
Autre
Données fournies par : Toronto Regional Real Estate Board
Souhaitez-vous visiter cette propriété?
Demander une visite

PRAVISHA NAGARETNAM