Nous utilisons des témoins et d’autres technologies pour assurer le fonctionnement et la sécurité de nos services en ligne, et pour vous offrir une expérience personnalisée. En continuant à utiliser nos services en ligne, vous acceptez notre Politique de confidentialité et les conditions d’utilisation. Pour obtenir des informations sur la façon de régler vos paramètres de confidentialité, veuillez consulter notre Politique sur les témoins.
Masquer
Accueil ON Meaford
328 CEDAR AVENUE
Directions Imprimer
328 CEDAR AVENUE 3 750 $/mois
Depuis 1 journée
3 750 $/mois
Masquer
Favoris

328 CEDAR AVENUE
Meaford, Ontario N4L1W5

Numéro MLS® : X12628530
2 + 1
Chambres
2
Salles de bain
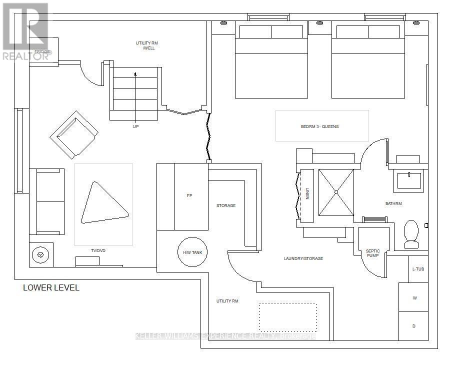
1100 - 1500
Pieds carrés

Résumé de la propriété

Type de propriété
Unifamiliale
Type de bâtiment
Unifamilial
Étages
1
Superficie
1100 - 1500 pi2
Titre
Tenure franche
Superficie du terrain
48.6 FT
Type de stationnement
Garage
Sur REALTOR.ca depuis
1 journée

Édifice

Chambres
Au-dessus du niveau du sol
2
Au-dessous du niveau du sol
1
Salles de bain
Total
2
Caractéristiques intérieures
Appareils électroménagers inclus
Plaque de cuisson
Type de sous-sol
Sous-sol complet (Aménagé)
Caractéristiques du bâtiment
Caractéristiques
Zone boisée, Sans tapis
Type de fondation
Blocs de béton
Style
Isolée
Style d'architecture
Bungalow surélevé
Chauffage et refroidissement
Système de refroidissement
Climatisation centrale
Foyer
2
Type de chauffage
Air pulsé (Propane)
Services publics
Services publics disponibles
Service du câble (Installé), Électricité (Installé)
Égouts
Fosse septique
Eau
Puits foré à la sondeuse
Caractéristiques extérieures
Revêtement extérieur
Brique, Bardage en vinyle
Caractéristiques du quartier
Commodités à proximité
Plage
Stationnement
Type de stationnement
Garage
Nombre total d'espaces de stationnement
6

Mesures

Superficie
1100 - 1500 pi2

Terrain

Caractéristiques du terrain
Façade
48 pi 7 po
Vue
Vue sur le lac
Caractéristiques du bord de l'eau
Eau de surface
lac/Étang
Données fournies par : Toronto Regional Real Estate Board
Souhaitez-vous visiter cette propriété?
Demander une visite

Inscriptions semblables

ALLYSON DUBLACK