Nous utilisons des témoins et d’autres technologies pour assurer le fonctionnement et la sécurité de nos services en ligne, et pour vous offrir une expérience personnalisée. En continuant à utiliser nos services en ligne, vous acceptez notre Politique de confidentialité et les conditions d’utilisation. Pour obtenir des informations sur la façon de régler vos paramètres de confidentialité, veuillez consulter notre Politique sur les témoins.
Masquer
Accueil ON Grand Toronto Halton Hills
14360 SIXTH LINE
Directions Imprimer
14360 SIXTH LINE 949 000 $
Depuis 14 heures
Prochaine visite libre
14
déc.
949 000 $
Masquer
Favoris

14360 SIXTH LINE
Halton Hills (Rural Halton Hills), Ontario L0P1H0

Numéro MLS® : W12628478
3 + 1
Chambres
3
Salles de bain
1500 - 2000
Pieds carrés

Visites libres

14 déc.
14 h - 16 h
Ajouter au calendrier

Résumé de la propriété

Type de propriété
Unifamiliale
Type de bâtiment
Unifamilial
Étages
1
Superficie
1500 - 2000 pi2
Titre
Tenure franche
Superficie du terrain
125 x 178.6 FT|1/2 - 1,99 acre
Âge de l'édifice
31 à 50 ans
Impôt foncier annuel
5 112,05 $
Type de stationnement
Garage attenant, Garage
Sur REALTOR.ca depuis
14 heures

Édifice

Chambres
Au-dessus du niveau du sol
3
Au-dessous du niveau du sol
1
Salles de bain
Total
3
Partielle
1
Caractéristiques intérieures
Appareils électroménagers inclus
Chauffe-eau, Adoucisseur d'eau, Lave-vaisselle, Sécheuse, Micro-ondes, Hotte, Cuisinière, Machine à laver, Couvre-fenêtre, Réfrigérateur
Couvre-plancher
plancher en stratifié
Type de sous-sol
Sous-sol complet (Aménagé)
Caractéristiques du bâtiment
Caractéristiques
Conservation/ceinture verte, Éclairage
Type de fondation
Béton coulé
Style
Isolée
Style d'architecture
Bungalow
Statut de construction
Isolant amélioré
Commodités qu'offre le bâtiment
Foyer(s)
Location de matérial incluse
Adoucisseur d'eau
Structures
Terrasse, Remise, Atelier
Chauffage et refroidissement
Système de refroidissement
Climatisation centrale
Foyer
3
Type de foyer
Poêle à bois
Type de chauffage
Air pulsé (Propane)
Services publics
Égouts
Fosse septique
Caractéristiques extérieures
Revêtement extérieur
Bardage en vinyle, Brique
Stationnement
Type de stationnement
Garage attenant, Garage
Nombre total d'espaces de stationnement
12

Mesures

Superficie
1500 - 2000 pi2

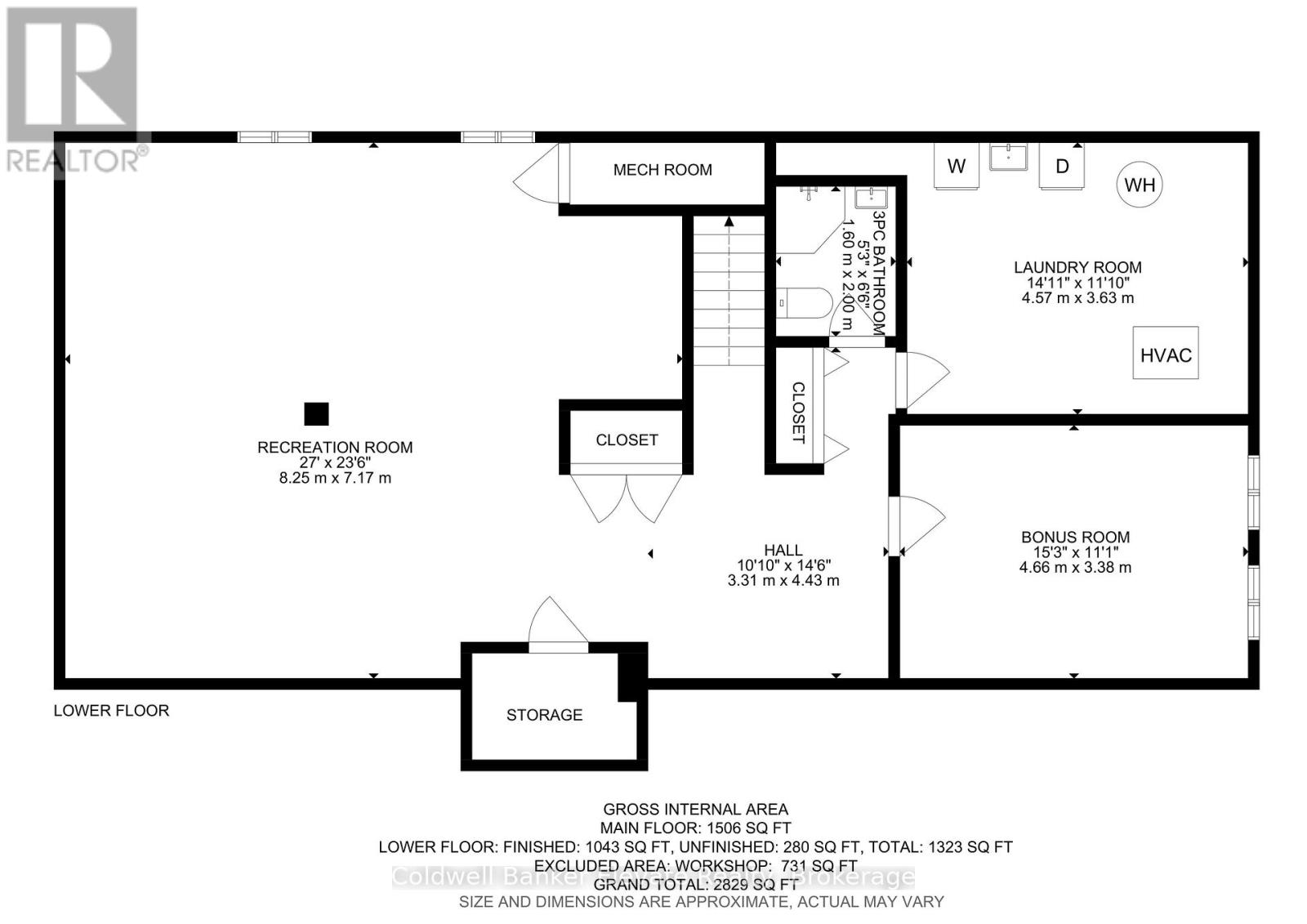
Pièces

MétriqueImpérial
Niveau principal
Vestibule
Salon
Salle à manger
Cuisine
Chambre principale
Deuxième chambre
Troisième chambre
Sous-sol
Salle de jeux, récréative
Buanderie
Bureau

Terrain

Caractéristiques du terrain
Façade
125 pi
Superficie du terrain
178 pi 7 po
Caractéristiques du bord de l'eau
Eau de surface
rivière/courant
Données fournies par : Toronto Regional Real Estate Board
Souhaitez-vous visiter cette propriété?
Demander une visite

Inscriptions semblables

LISA HARTSINK