Nous utilisons des témoins et d’autres technologies pour assurer le fonctionnement et la sécurité de nos services en ligne, et pour vous offrir une expérience personnalisée. En continuant à utiliser nos services en ligne, vous acceptez notre Politique de confidentialité et les conditions d’utilisation. Pour obtenir des informations sur la façon de régler vos paramètres de confidentialité, veuillez consulter notre Politique sur les témoins.
Masquer
Accueil NB Grand Moncton Comté de Westmorland Moncton
51 Driftwood Court
Directions Imprimer
51 Driftwood Court 699 900 $
Depuis 19 heures
699 900 $
Masquer
Favoris

51 Driftwood Court
Moncton, Nouveau-Brunswick E1G2G1

Numéro MLS® : NB131216
4
Chambres
5
Salles de bain
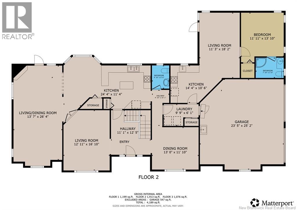
4171
Pieds carrés

Résumé de la propriété

Type de propriété
Unifamiliale
Étages
2
Superficie
4171 pi2
Titre
Tenure franche
Superficie du terrain
1278 m2
Date de construction
1994
Impôt foncier annuel
6 949,57 $
Type de stationnement
Garage attenant, Garage
Sur REALTOR.ca depuis
19 heures

Édifice

Chambres
Au-dessus du niveau du sol
4
Salles de bain
Total
5
Partielle
1
Caractéristiques intérieures
Couvre-plancher
Céramique, plancher de bois franc
Caractéristiques du bâtiment
Caractéristiques
Cul-de-sac, Balcon/terrasse
Type de fondation
Fondation en béton
Chauffage et refroidissement
Système de refroidissement
Climatisé, Thermopompe
Type de chauffage
Thermopompe, Voir les remarques, (Propane)
Services publics
Égouts
Égout municipal
Eau
Approvisionnement en eau par la municipalité
Caractéristiques extérieures
Revêtement extérieur
Brique, Vinyle
Stationnement
Type de stationnement
Garage attenant, Garage

Mesures

Superficie
4171 pi2
Superficie finie au-dessus du niveau du sol
3221 pi2
Superficie totale aménagée
4171 pi2

Pièces

MétriqueImpérial
Niveau principal
Salle de bain - 3 éléments
Chambre à coucher
Salon
Cuisine
Vestibule
Salle de bain - 2 éléments
Salon
Salle familiale
Salle à manger
Recoin-repas
Cuisine
Deuxième niveau
Salle de bain - 4 éléments
Chambre à coucher
Chambre à coucher
Chambre à coucher
Sous-sol
Bureau
Lieu de rangement
Chambre froide
Salle de bain - 3 éléments
Chambre à coucher
Salle familiale

Terrain

Caractéristiques du terrain
Clôture
Entièrement clôturé
Aménagement paysager
Terrain paysager
Autres informations sur la propriété
Accès
Accès toute l'année, Voie publique
Données fournies par : REALTORS® du Nouveau Brunswick
Souhaitez-vous visiter cette propriété?
Demander une visite

Inscriptions semblables

Dwayne Muir