Nous utilisons des témoins et d’autres technologies pour assurer le fonctionnement et la sécurité de nos services en ligne, et pour vous offrir une expérience personnalisée. En continuant à utiliser nos services en ligne, vous acceptez notre Politique de confidentialité et les conditions d’utilisation. Pour obtenir des informations sur la façon de régler vos paramètres de confidentialité, veuillez consulter notre Politique sur les témoins.
Masquer
Accueil ON Grand Windsor Lakeshore
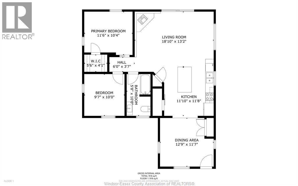
255 EDWARD ROAD
Directions Imprimer
255 EDWARD ROAD 1 875 $/mois
Depuis 2 jours
1 875 $/mois
Masquer
Favoris

255 EDWARD ROAD
Lakeshore, Ontario N0R1S0

Numéro MLS® : 25031490
2
Chambres
1
Salles de bain
-
Pieds carrés

Résumé de la propriété

Type de propriété
Unifamiliale
Type de bâtiment
Unifamilial
Étages
1
Titre
Tenure franche
Superficie du terrain
100.39 X 119.46 FT
Date de construction
1983
Sur REALTOR.ca depuis
2 jours

Édifice

Chambres
Au-dessus du niveau du sol
2
Salles de bain
Total
1
Caractéristiques intérieures
Appareils électroménagers inclus
Lave-vaisselle, Sécheuse, Réfrigérateur, Cuisinière, Machine à laver
Couvre-plancher
Céramique/porcelaine, plancher de bois franc
Caractéristiques du bâtiment
Caractéristiques
Entrée de façade
Type de fondation
Blocs de béton
Style
Isolée
Style d'architecture
Bungalow, Ranch
Chauffage et refroidissement
Système de refroidissement
Climatisation centrale
Type de foyer
Foyer - Cheminée de tôle autostable (Gaz)
Type de chauffage
Air pulsé, Chaudière, (Gaz naturel)
Services publics
Égouts
Fosse septique
Caractéristiques extérieures
Revêtement extérieur
Aluminium/vinyle

Pièces

Niveau principal
Lieu de rangement
Buanderie
Chambre à coucher
Chambre principale
Salle familiale /Foyer
Cuisine/Salle à manger
Vestibule

Terrain

Caractéristiques du terrain
Aménagement paysager
Terrain paysager
Caractéristiques du bord de l'eau
Bord de l'eau
Terrain riverain (sur canal)
Souhaitez-vous visiter cette propriété?
Demander une visite

Inscriptions semblables

KRISTA KLUNDERT