Nous utilisons des témoins et d’autres technologies pour assurer le fonctionnement et la sécurité de nos services en ligne, et pour vous offrir une expérience personnalisée. En continuant à utiliser nos services en ligne, vous acceptez notre Politique de confidentialité et les conditions d’utilisation. Pour obtenir des informations sur la façon de régler vos paramètres de confidentialité, veuillez consulter notre Politique sur les témoins.
Masquer
Accueil PE Grand Summerside Summerside
43 & 45 Glover Shore Road
Directions Imprimer
43 & 45 Glover Shore Road 890 000 $
Depuis 2 jours
890 000 $
Masquer
Favoris

43 & 45 Glover Shore Road
Summerside, Île-du-Prince-Édouard C1N4G4

Numéro MLS® : 202529236
3
Chambres
2
Salles de bain

Résumé de la propriété

Type de propriété
Unifamiliale
Type de bâtiment
Duplex
Titre
Tenure franche
Superficie du terrain
0.2200|moins de 1/2 acre
Date de construction
2025
Type de stationnement
Garage attenant, Garage chauffé
Sur REALTOR.ca depuis
2 jours

Édifice

Chambres
Au-dessus du niveau du sol
3
Salles de bain
Total
2
Partielle
0
Caractéristiques intérieures
Appareils électroménagers inclus
Plaque de cuisson, Cuisinière, Lave-vaisselle, Sécheuse, Machine à laver, Réfrigérateur
Couvre-plancher
plancher en stratifié, Carrelage
Type de sous-sol
Pas de sous-sol
Caractéristiques du bâtiment
Caractéristiques
Voie d'accès pavée, Plat
Structures
Terrasse
Chauffage et refroidissement
Système de refroidissement
Échangeur d'air
Type de chauffage
Plinthes chauffantes, Thermopompe murale, (Électrique)
Services publics
Égouts
Égout municipal
Eau
Approvisionnement en eau par la municipalité
Caractéristiques extérieures
Revêtement extérieur
Vinyle
Caractéristiques du quartier
Caractéristiques de la communauté
Installations récréatives, Autobus scolaire
Commodités à proximité
Terrain de golf, Parc, Terrain de jeu, Transport en commun, Centres commerciaux
Stationnement
Type de stationnement
Garage attenant, Garage chauffé

Mesures

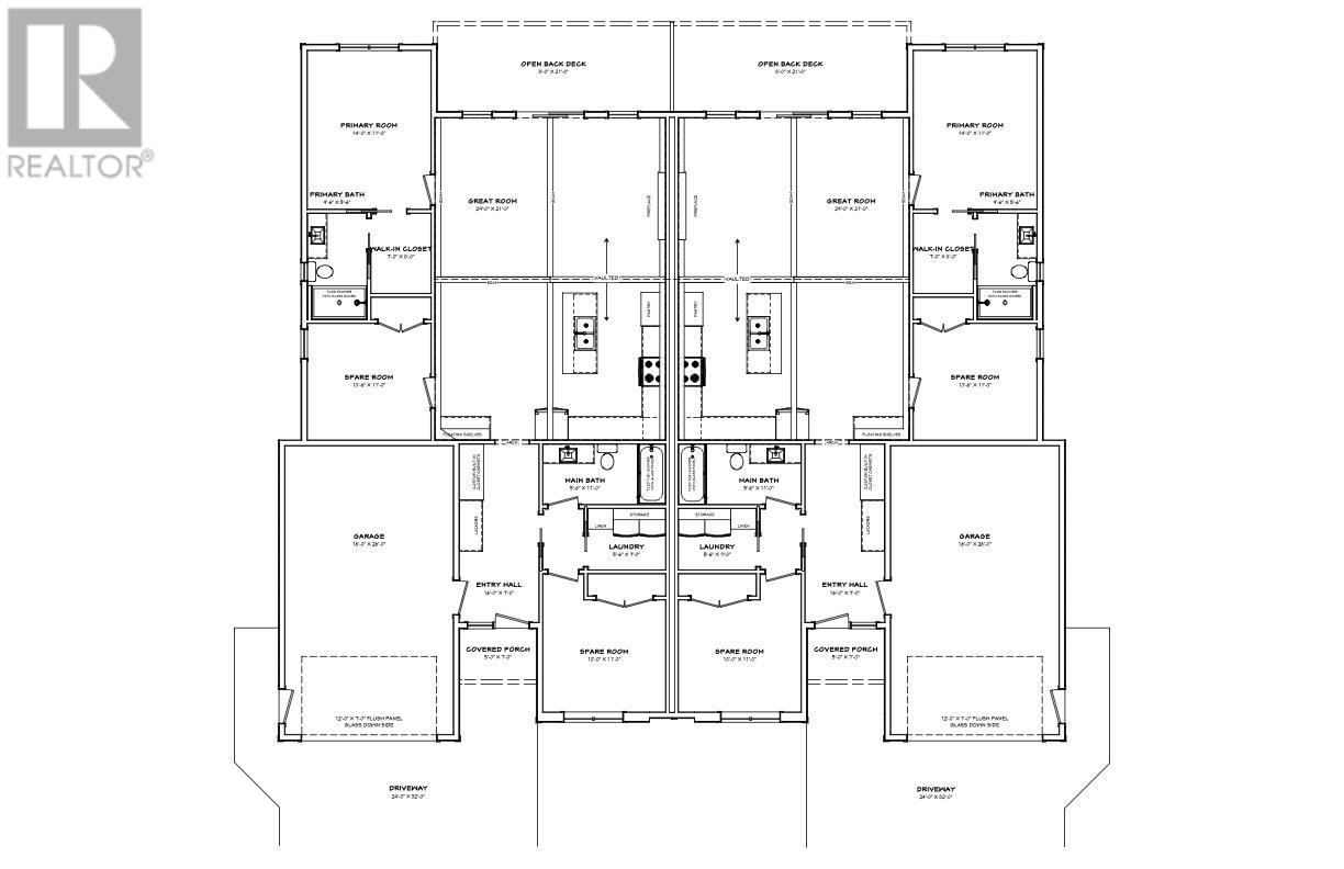
Superficie totale aménagée
2900 pi2

Pièces

MétriqueImpérial
Niveau principal
Chambre principale
Ensuite (nbre de pièces 2-6)
Autre
Chambre à coucher
Grande salle
Cuisine
Salle à manger
Bain (nbre de pièces 1-6)
Buanderie
Chambre à coucher
Autre
Chambre principale
Ensuite (nbre de pièces 2-6)
Autre
Chambre à coucher
Grande salle
Cuisine
Salle à manger
Bain (nbre de pièces 1-6)
Buanderie
Chambre à coucher
Autre

Terrain

Caractéristiques du terrain
Aliénation des terrains
Déboisé
Autres informations sur la propriété
Accès
Accès toute l'année
Souhaitez-vous visiter cette propriété?
Demander une visite

902-315-3778
902-315-3778

Inscriptions semblables

Corey Ross