Nous utilisons des témoins et d’autres technologies pour assurer le fonctionnement et la sécurité de nos services en ligne, et pour vous offrir une expérience personnalisée. En continuant à utiliser nos services en ligne, vous acceptez notre Politique de confidentialité et les conditions d’utilisation. Pour obtenir des informations sur la façon de régler vos paramètres de confidentialité, veuillez consulter notre Politique sur les témoins.
Masquer
Accueil ON Grand Toronto Markham Middlefield
22 ROBERT EATON AVENUE
Directions Imprimer
22 ROBERT EATON AVENUE 3 400 $/mois
Depuis 3 jours
3 400 $/mois
Masquer
Favoris

22 ROBERT EATON AVENUE
Markham (Middlefield), Ontario L3S0G3

Numéro MLS® : N12612916
3
Chambres
4
Salles de bain
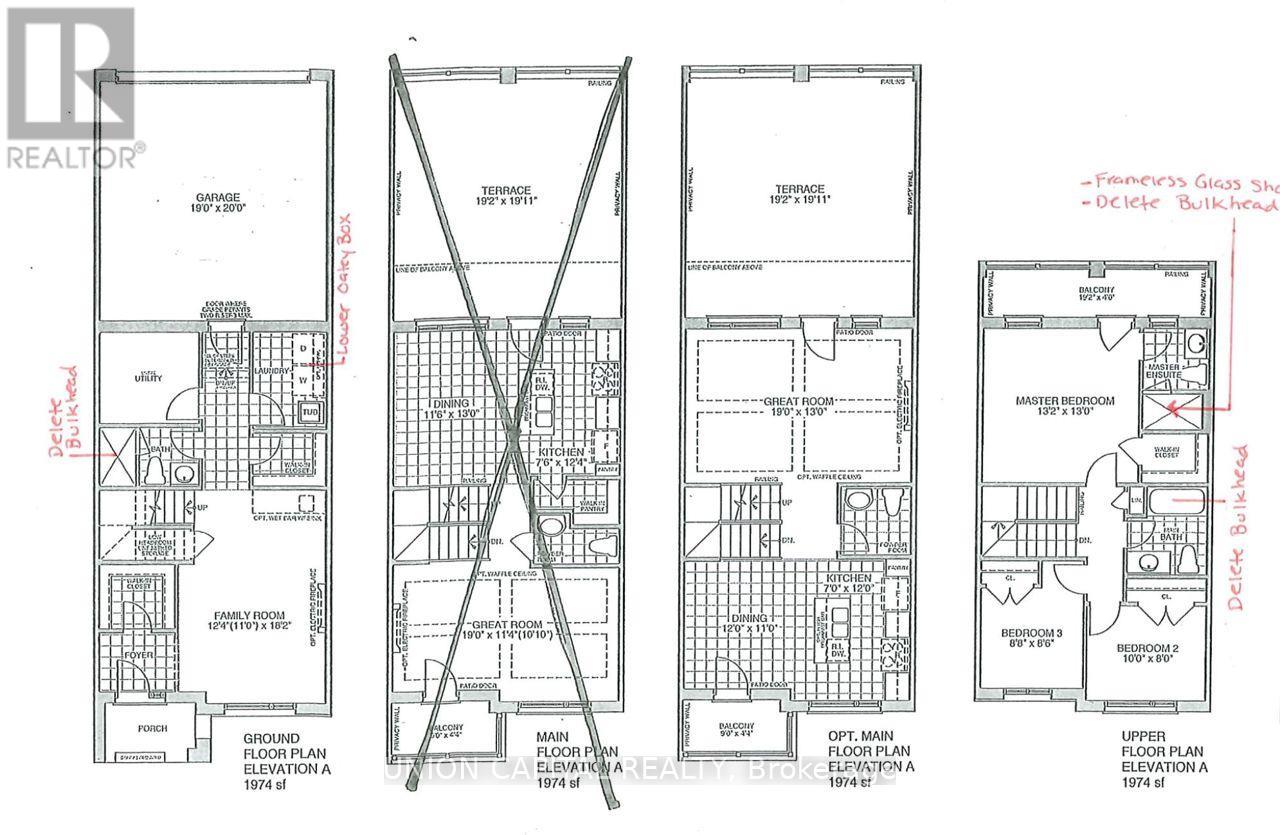
1500 - 2000
Pieds carrés

Résumé de la propriété

Type de propriété
Unifamiliale
Type de bâtiment
Maison en rangée
Étages
3
Superficie
1500 - 2000 pi2
Titre
Tenure franche
Âge de l'édifice
0 à 5 ans
Type de stationnement
Garage attenant, Garage
Sur REALTOR.ca depuis
3 jours

Édifice

Chambres
Au-dessus du niveau du sol
3
Salles de bain
Total
4
Partielle
1
Caractéristiques intérieures
Appareils électroménagers inclus
Sécheuse, Ouvre-porte de garage, Hotte, Cuisinière, Machine à laver, Couvre-fenêtre, Réfrigérateur
Couvre-plancher
plancher en stratifié, Céramique
Type de sous-sol
Pas de sous-sol
Caractéristiques du bâtiment
Caractéristiques
Sans tapis
Type de fondation
Béton coulé
Style
En rangée
Protection contre les incendies
Détecteurs de fumée
Location de matérial incluse
Chauffe-eau
Chauffage et refroidissement
Système de refroidissement
Climatisation centrale
Type de chauffage
Air pulsé (Gaz naturel)
Services publics
Égouts
Égout sanitaire
Eau
Approvisionnement en eau par la municipalité
Caractéristiques extérieures
Revêtement extérieur
Brique
Caractéristiques du quartier
Caractéristiques de la communauté
Centre communautaire
Commodités à proximité
Un hôpital, Lieu de culte, Transport en commun, Écoles
Stationnement
Type de stationnement
Garage attenant, Garage
Nombre total d'espaces de stationnement
6

Mesures

Superficie
1500 - 2000 pi2

Pièces

MétriqueImpérial
Deuxième niveau
Salon
Cuisine
Salle à manger
Salle de repas
Troisième niveau
Chambre principale
Deuxième chambre
Troisième chambre
Niveau du sol
Salle familiale
Données fournies par : Toronto Regional Real Estate Board
Souhaitez-vous visiter cette propriété?
Demander une visite

Inscriptions semblables

KEVIN LIU