Nous utilisons des témoins et d’autres technologies pour assurer le fonctionnement et la sécurité de nos services en ligne, et pour vous offrir une expérience personnalisée. En continuant à utiliser nos services en ligne, vous acceptez notre Politique de confidentialité et les conditions d’utilisation. Pour obtenir des informations sur la façon de régler vos paramètres de confidentialité, veuillez consulter notre Politique sur les témoins.
Masquer
Accueil ON Ottawa - Gatineau Ottawa Riverside South - Leitrim
1053 LUNAR GLOW CRESCENT
Directions Imprimer
1053 LUNAR GLOW CRESCENT 725 000 $
Depuis 2 jours
725 000 $
Masquer
Favoris

1053 LUNAR GLOW CRESCENT
Ottawa, Ontario K4M0J9

Numéro MLS® : X12612260
3
Chambres
3
Salles de bain
1500 - 2000
Pieds carrés

Résumé de la propriété

Type de propriété
Unifamiliale
Type de bâtiment
Maison en rangée
Étages
2
Superficie
1500 - 2000 pi2
Titre
Tenure franche
Superficie du terrain
26.7 x 101.7 FT
Impôt foncier annuel
4 515 $
Type de stationnement
Garage attenant, Garage
Sur REALTOR.ca depuis
2 jours

Édifice

Chambres
Au-dessus du niveau du sol
3
Salles de bain
Total
3
Partielle
1
Caractéristiques intérieures
Appareils électroménagers inclus
Télécommande(s) d'ouvre-porte de garage, Lave-vaisselle, Sécheuse, Cuisinière, Machine à laver, Réfrigérateur
Type de sous-sol
Sous-sol complet (Aménagé)
Caractéristiques du bâtiment
Type de fondation
Béton coulé
Style
En rangée
Location de matérial incluse
Chauffe-eau
Chauffage et refroidissement
Système de refroidissement
Climatisation centrale
Foyer
1
Type de chauffage
Air pulsé (Gaz naturel)
Services publics
Égouts
Égout sanitaire
Eau
Approvisionnement en eau par la municipalité
Caractéristiques extérieures
Revêtement extérieur
Brique
Stationnement
Type de stationnement
Garage attenant, Garage
Nombre total d'espaces de stationnement
3

Mesures

Superficie
1500 - 2000 pi2

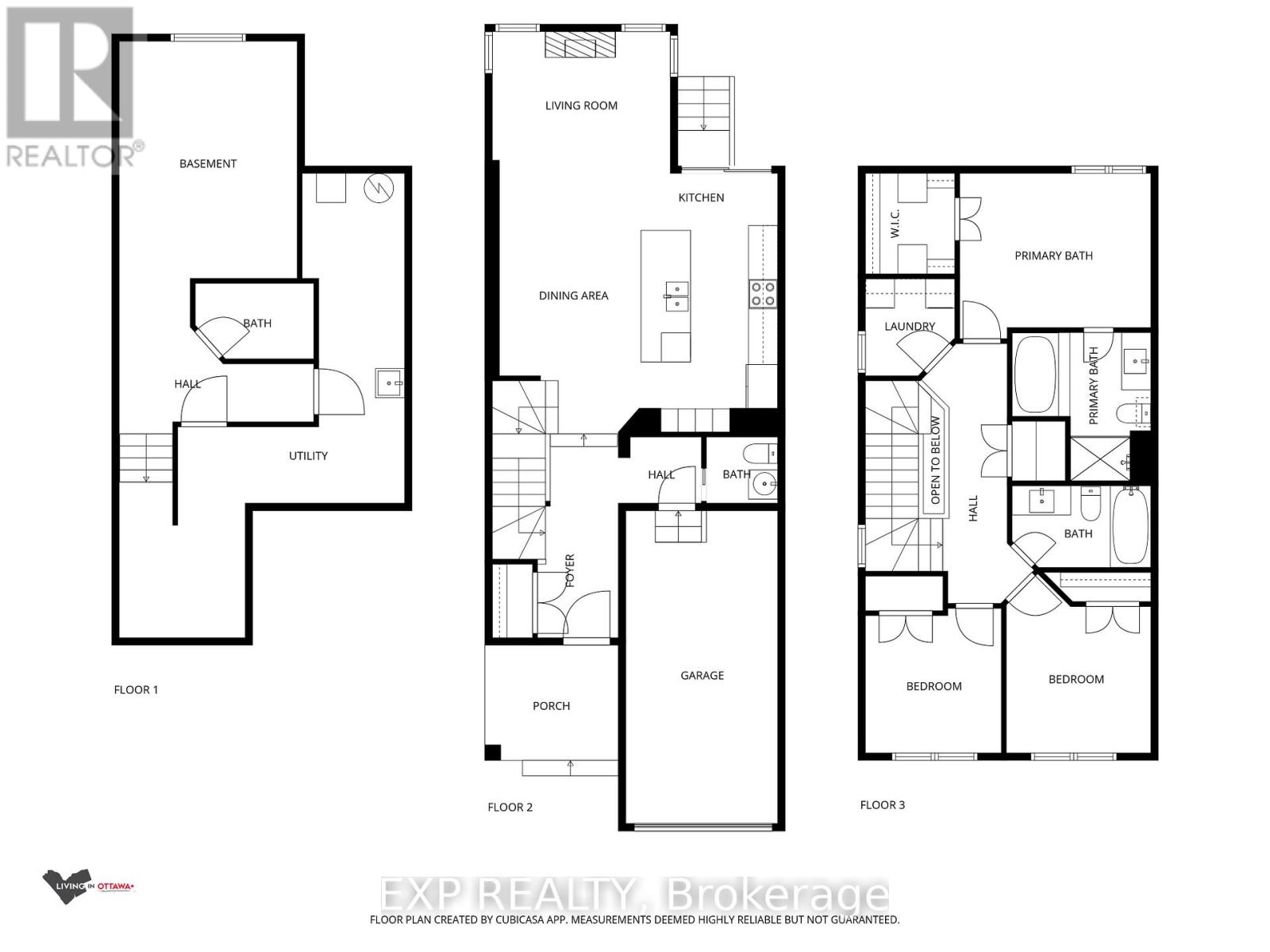
Pièces

MétriqueImpérial
Niveau principal
Cuisine
Salle à manger
Salon
Deuxième niveau
Chambre principale
Salle de bain
Buanderie
Deuxième chambre
Troisième chambre
Salle de bain
Niveau inférieur
Salle de jeux, récréative

Terrain

Caractéristiques du terrain
Façade
26 pi 8 po
Superficie du terrain
101 pi 8 po
Données fournies par : Ottawa Real Estate Board
Souhaitez-vous visiter cette propriété?
Demander une visite

Inscriptions semblables

Peter Twolan