Nous utilisons des témoins et d’autres technologies pour assurer le fonctionnement et la sécurité de nos services en ligne, et pour vous offrir une expérience personnalisée. En continuant à utiliser nos services en ligne, vous acceptez notre Politique de confidentialité et les conditions d’utilisation. Pour obtenir des informations sur la façon de régler vos paramètres de confidentialité, veuillez consulter notre Politique sur les témoins.
Masquer
Accueil ON Grand Toronto Ajax Midtown
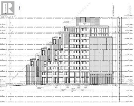
27-31 HARWOOD AVENUE S
Directions Imprimer
27-31 HARWOOD AVENUE S 3 000 000 $
Depuis 7 jours
3 000 000 $
Masquer
Favoris

27-31 HARWOOD AVENUE S
Ajax (Central), Ontario L1S2B8

Numéro MLS® : E12611992

Résumé de la propriété

Type de propriété
Détail
Superficie du terrain
150 x 218 FT
Impôt foncier annuel
41 719,36 $
Sur REALTOR.ca depuis
7 jours

Édifice

Chauffage et refroidissement
Système de refroidissement
Aucun
Type de chauffage
Aucun chauffage
Services publics
Eau
Approvisionnement en eau par la municipalité
Caractéristiques du quartier
Commodités à proximité
Autoroute, Transport en commun

Mesures

Superficie
3700 pi2

Terrain

Caractéristiques du terrain
Façade
150 pi
Superficie du terrain
218 pi
Données fournies par : Toronto Regional Real Estate Board
Souhaitez-vous visiter cette propriété?
Demander une visite

ADAM BRONSON