Nous utilisons des témoins et d’autres technologies pour assurer le fonctionnement et la sécurité de nos services en ligne, et pour vous offrir une expérience personnalisée. En continuant à utiliser nos services en ligne, vous acceptez notre Politique de confidentialité et les conditions d’utilisation. Pour obtenir des informations sur la façon de régler vos paramètres de confidentialité, veuillez consulter notre Politique sur les témoins.
Masquer
Accueil ON Grand Hamilton Hamilton Old Hamilton Parkview West
575 WOODWARD Avenue Unit# 63
Directions Imprimer
575 WOODWARD Avenue Unit# 63 2 650 $/mois
Modification du prix le 2026/01/06
2 650 $/mois
-100 $/mois
2 750 $/mois
Masquer
Favoris

575 WOODWARD Avenue Unit# 63
Hamilton, Ontario L8H0B3

Numéro MLS® : 40792408
3
Chambres
3
Salles de bain
1601
Pieds carrés

Résumé de la propriété

Type de propriété
Unifamiliale
Type de bâtiment
Maison en rangée
Étages
3
Superficie
1601 pi2
Titre
Copropriété divise
Superficie du terrain
Inconnu
Date de construction
2021
Type de stationnement
Garage attenant
Sur REALTOR.ca depuis
41 jours

Édifice

Chambres
Au-dessus du niveau du sol
3
Salles de bain
Total
3
Partielle
1
Caractéristiques intérieures
Appareils électroménagers inclus
Lave-vaisselle, Sécheuse, Réfrigérateur, Cuisinière, Machine à laver, Four à micro-ondes encastré
Type de sous-sol
Pas de sous-sol
Caractéristiques du bâtiment
Caractéristiques
Balcon
Style
En rangée
Style d'architecture
3 étages
Chauffage et refroidissement
Système de refroidissement
Climatisation centrale
Type de chauffage
Air pulsé, (Gaz naturel)
Services publics
Égouts
Égout municipal
Eau
Approvisionnement en eau par la municipalité
Caractéristiques extérieures
Revêtement extérieur
Brique
Caractéristiques du quartier
Commodités à proximité
Parc, Écoles
Stationnement
Type de stationnement
Garage attenant
Nombre total d'espaces de stationnement
2

Mesures

Superficie
1601 pi2
Superficie finie au-dessus du niveau du sol
1601 pi2
Source : Autre

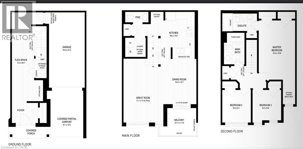
Pièces

MétriqueImpérial
Niveau principal
Vestibule
Deuxième niveau
Salle de bain - 2 éléments
Cuisine
Salle à manger
Grande salle
Troisième niveau
Salle de bain - 4 éléments
Chambre à coucher
Chambre à coucher
Salle de bains complète
Chambre principale

Terrain

Autres informations sur la propriété
Accès
Accès à l'autoroute
Souhaitez-vous visiter cette propriété?
Demander une visite

Inscriptions semblables

SAHIL SHARMA