Nous utilisons des témoins et d’autres technologies pour assurer le fonctionnement et la sécurité de nos services en ligne, et pour vous offrir une expérience personnalisée. En continuant à utiliser nos services en ligne, vous acceptez notre Politique de confidentialité et les conditions d’utilisation. Pour obtenir des informations sur la façon de régler vos paramètres de confidentialité, veuillez consulter notre Politique sur les témoins.
Masquer
Accueil ON Grand Guelph Comté de Wellington Guelph Two Rivers
1205 - 93 ARTHUR STREET S
Directions Imprimer
1205 - 93 ARTHUR STREET S 2 100 $/mois
2 100 $/mois
Masquer
Favoris

1205 - 93 ARTHUR STREET S
Guelph (St. Patrick's Ward), Ontario N1E0S6

Numéro MLS® : X12598992
1
Chambres
1
Salles de bain
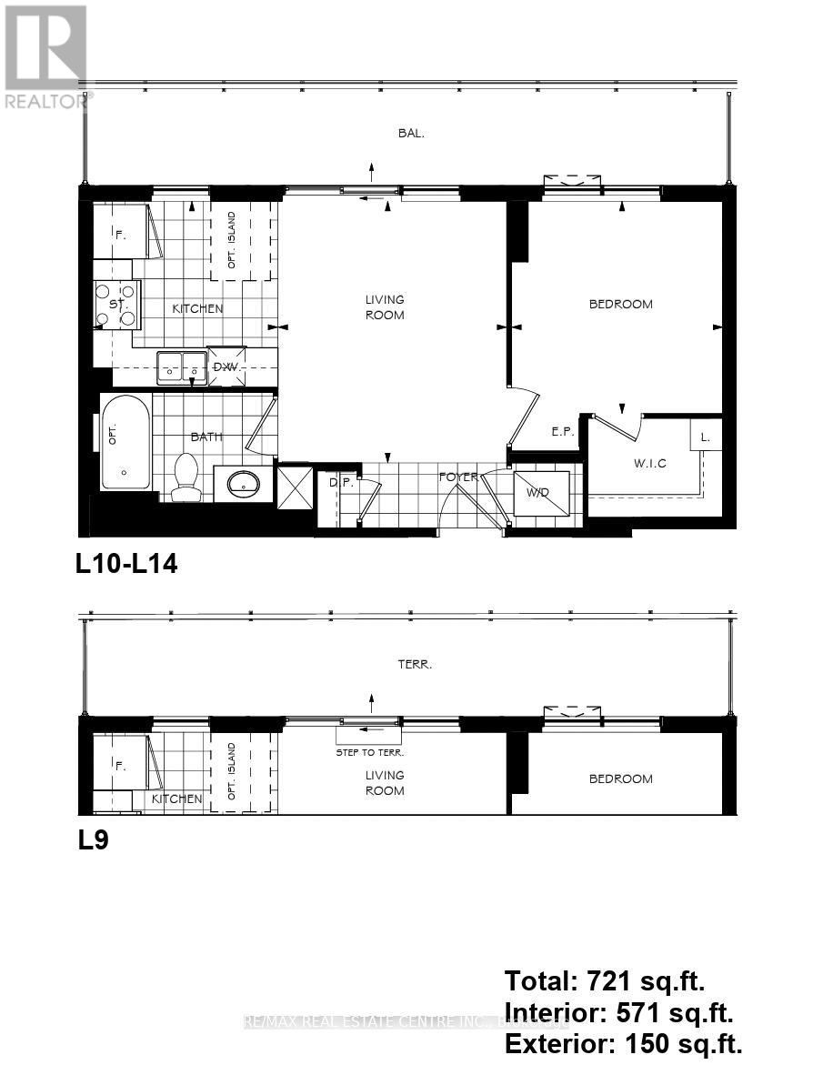
500 - 599
Pieds carrés

Résumé de la propriété

Type de propriété
Unifamiliale
Type de bâtiment
Appartement
Superficie
500 - 599 pi2
Titre
Copropriété divise
Âge de l'édifice
Bâtiment neuf
Type de stationnement
Aucun garage
Sur REALTOR.ca depuis
65 jours

Édifice

Chambres
Au-dessus du niveau du sol
1
Salles de bain
Total
1
Caractéristiques intérieures
Couvre-plancher
plancher de bois franc
Type de sous-sol
Pas de sous-sol
Caractéristiques du bâtiment
Caractéristiques
Balcon, Sans tapis, Buanderie
Protection contre les incendies
Système de sécurité, Détecteurs de fumée
Commodités qu'offre le bâtiment
Salle de réception, Salle d'exercises, Stationnement pour les visiteurs, Armoire vestiaire
Chauffage et refroidissement
Système de refroidissement
Climatisation centrale
Type de chauffage
Thermopompe (Électrique), Inconnu (Électrique)
Services publics
Service public - Communications
Internet haute vitesse
Caractéristiques extérieures
Revêtement extérieur
Brique, Aluminium
Caractéristiques du quartier
Caractéristiques de la communauté
Animaux permis avec restrictions
Commodités à proximité
Parc, Lieu de culte
Infos entretien ou copropriété
Société de gestion de l'entretien
Five Rivers Property Management
Stationnement
Type de stationnement
Aucun garage
Nombre total d'espaces de stationnement
0

Mesures

Superficie
500 - 599 pi2

Pièces

MétriqueImpérial
Niveau principal
Cuisine
Salon
Salle à manger
Chambre à coucher

Terrain

Caractéristiques du bord de l'eau
Eau de surface
rivière/courant
Données fournies par : Toronto Regional Real Estate Board
Souhaitez-vous visiter cette propriété?
Demander une visite

Inscriptions semblables

MANI BATOO