Nous utilisons des témoins et d’autres technologies pour assurer le fonctionnement et la sécurité de nos services en ligne, et pour vous offrir une expérience personnalisée. En continuant à utiliser nos services en ligne, vous acceptez notre Politique de confidentialité et les conditions d’utilisation. Pour obtenir des informations sur la façon de régler vos paramètres de confidentialité, veuillez consulter notre Politique sur les témoins.
Masquer
Accueil SK Grand Saskatoon Saskatoon Aspen Ridge
198 Sharma LANE
Directions Imprimer
198 Sharma LANE 589 900 $
Promesse d’achat
589 900 $
Masquer
Favoris

198 Sharma LANE
Saskatoon, Saskatchewan S7W0Y4

Numéro MLS® : SK025060
5
Chambres
3
Salles de bain
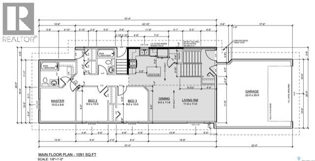
1091
Pieds carrés

Résumé de la propriété

Type de propriété
Unifamiliale
Type de bâtiment
Unifamilial
Superficie
1091 pi2
Titre
Tenure franche
Superficie du terrain
35.9x121.6
Date de construction
2025
Type de stationnement
Garage attenant, Espace(s) de stationnement (4)
Sur REALTOR.ca depuis
9 jours

Édifice

Salles de bain
Total
3
Caractéristiques intérieures
Appareils électroménagers inclus
Machine à laver, Réfrigérateur, Lave-vaisselle, Sécheuse, Micro-ondes, Télécommande(s) d'ouvre-porte de garage, Cuisinière
Type de sous-sol
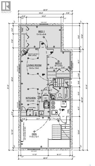
Sous-sol complet (Aménagé)
Caractéristiques du bâtiment
Caractéristiques
Rectangulaire, Pompe de vidange
Style d'architecture
Logement avec entrée à mi-étage
Chauffage et refroidissement
Système de refroidissement
Climatisation centrale, Échangeur d'air
Type de foyer
Conventionnel (Électricité), Conventionnel (Gaz)
Type de chauffage
Air pulsé, (Gaz naturel)
Stationnement
Type de stationnement
Garage attenant, Espace(s) de stationnement (4)

Mesures

Superficie
1091 pi2

Pièces

MétriqueImpérial
Niveau principal
Cuisine
Salle à manger
Salon
Chambre principale
Salle de bain attenante - (4 éléments)
Chambre à coucher
Chambre à coucher
Salle de bain - 4 éléments
Buanderie
Sous-sol
Cuisine/Salle à manger
Salon
Chambre à coucher
Chambre à coucher
Salle de bain - 4 éléments
Buanderie
Coin repos

Terrain

Caractéristiques du terrain
Façade
35 pi 9 po
Données fournies par : Saskatchewan REALTORS® Association
Souhaitez-vous visiter cette propriété?
Demander une visite

Inscriptions semblables

Raychel Moore