Nous utilisons des témoins et d’autres technologies pour assurer le fonctionnement et la sécurité de nos services en ligne, et pour vous offrir une expérience personnalisée. En continuant à utiliser nos services en ligne, vous acceptez notre Politique de confidentialité et les conditions d’utilisation. Pour obtenir des informations sur la façon de régler vos paramètres de confidentialité, veuillez consulter notre Politique sur les témoins.
Masquer
Accueil ON Grand Oshawa Région de Durham Whitby Port Whitby
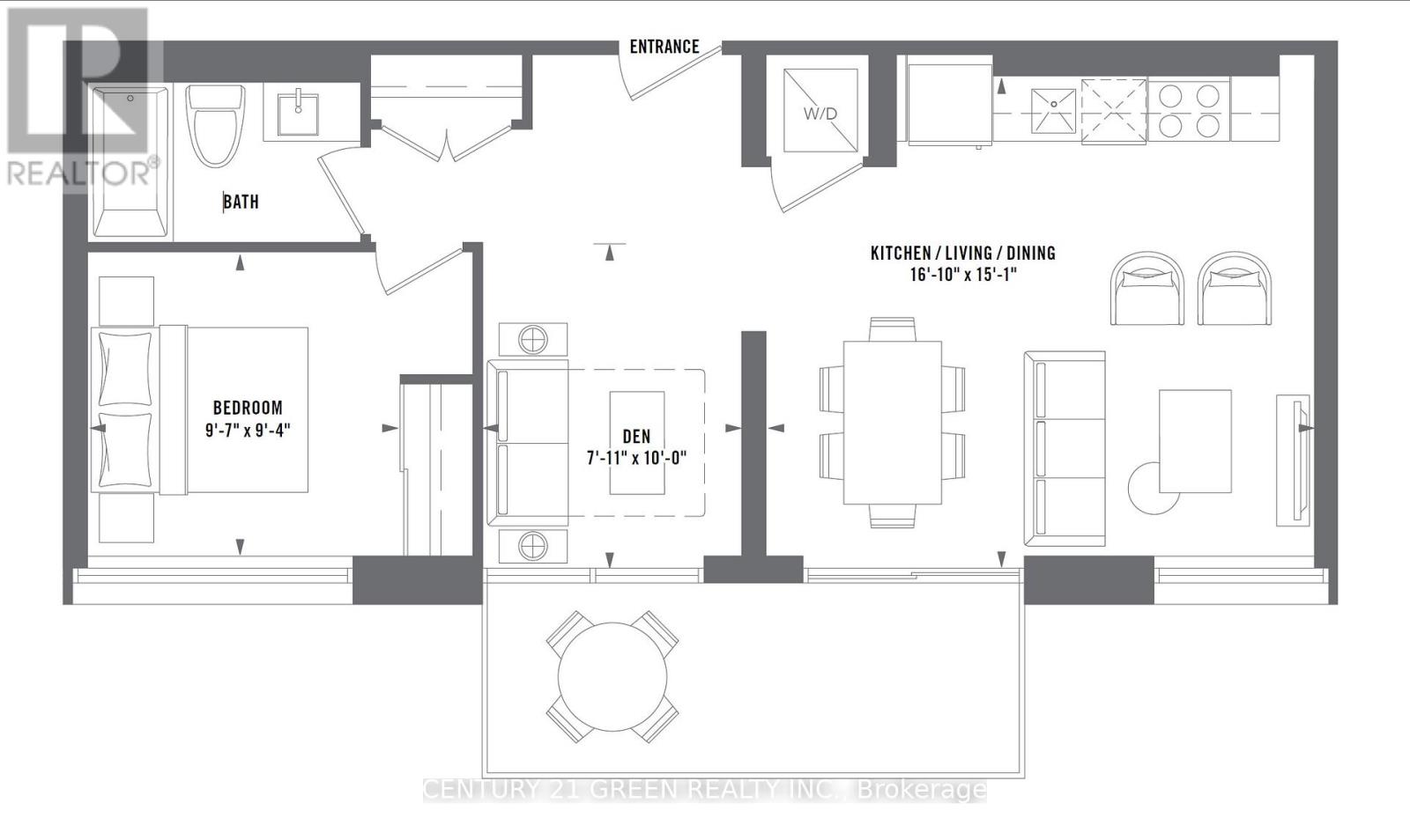
323C - 1612 CHARLES STREET
Directions Imprimer
323C - 1612 CHARLES STREET 525 000 $
Modification du prix le 2026/02/20
Prochaine visite libre
28
févr.
525 000 $
+26 000 $
499 000 $
Masquer
Favoris

323C - 1612 CHARLES STREET
Whitby (Port Whitby), Ontario L1N0P3

Numéro MLS® : E12592286
1 + 1
Chambres
1
Salles de bain
700 - 799
Pieds carrés

Visites libres

28 févr.
14 h - 16 h
Ajouter au calendrier

Résumé de la propriété

Type de propriété
Unifamiliale
Type de bâtiment
Appartement
Superficie
700 - 799 pi2
Titre
Copropriété divise
Âge de l'édifice
Bâtiment neuf
Impôt foncier annuel
0 $
Type de stationnement
Stationnement souterrain, Garage
Sur REALTOR.ca depuis
88 jours

Édifice

Chambres
Au-dessus du niveau du sol
1
Au-dessous du niveau du sol
1
Salles de bain
Total
1
Caractéristiques intérieures
Appareils électroménagers inclus
Compteur d'eau
Type de sous-sol
Pas de sous-sol
Caractéristiques du bâtiment
Caractéristiques
Terrain plat, Ascenseur, Balcon, Sec
Protection contre les incendies
Entrée sélective, Détecteurs de fumée, Système d'alarme surveillé
Commodités qu'offre le bâtiment
Service de sécurité/conciergerie, Centre récréatif, Salle d'exercises, Salle de réception
Chauffage et refroidissement
Système de refroidissement
Climatisation centrale
Type de chauffage
Ventilo-convecteur (Électrique)
Caractéristiques extérieures
Revêtement extérieur
Acier, Brique
Caractéristiques du quartier
Caractéristiques de la communauté
Animaux permis avec restrictions, Autobus scolaire
Commodités à proximité
Transport en commun, Parc
Infos entretien ou copropriété
Frais d'entretien
595,27 $ mois
Les frais d'entretien comprennent
Entretien de la zone commune, Parking, Assurance
Société de gestion de l'entretien
N/A
Stationnement
Type de stationnement
Stationnement souterrain, Garage
Nombre total d'espaces de stationnement
1

Mesures

Superficie
700 - 799 pi2

Terrain

Caractéristiques du terrain
Aménagement paysager
Terrain paysager
Vue
Vue, Vue sur la ville
Données fournies par : Toronto Regional Real Estate Board
Souhaitez-vous visiter cette propriété?
Demander une visite

Inscriptions semblables

BIPLAB MAZUMDER