Nous utilisons des témoins et d’autres technologies pour assurer le fonctionnement et la sécurité de nos services en ligne, et pour vous offrir une expérience personnalisée. En continuant à utiliser nos services en ligne, vous acceptez notre Politique de confidentialité et les conditions d’utilisation. Pour obtenir des informations sur la façon de régler vos paramètres de confidentialité, veuillez consulter notre Politique sur les témoins.
Masquer
Accueil PE Grand Charlottetown Comté de Queens Charlottetown East Royalty
67 Violet Circle
Directions Imprimer
Plus de photos + 1
67 Violet Circle 359 000 $
359 000 $
Masquer
Favoris

67 Violet Circle
Charlottetown, Île-du-Prince-Édouard C0A0K6

Numéro MLS® : 202528815
3
Chambres
2
Salles de bain

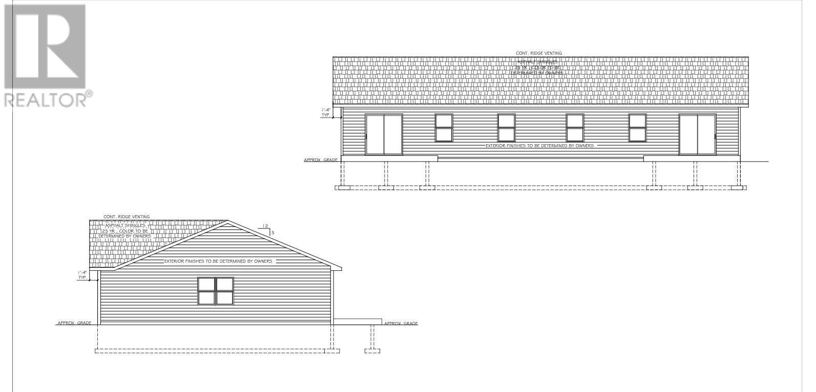
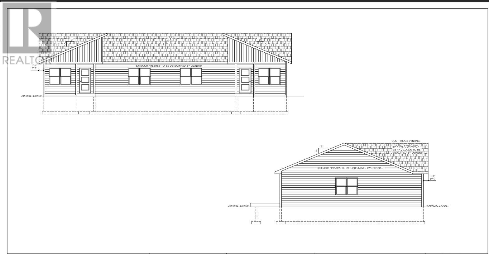
Résumé de la propriété

Type de propriété
Unifamiliale
Type de bâtiment
Duplex
Titre
Tenure franche
Superficie du terrain
p/p 0.22|moins de 1/2 acre
Date de construction
2025
Sur REALTOR.ca depuis
11 jours

Édifice

Chambres
Au-dessus du niveau du sol
3
Salles de bain
Total
2
Partielle
0
Caractéristiques intérieures
Appareils électroménagers inclus
Cuisinière, Lave-vaisselle, Sécheuse, Machine à laver, Micro-ondes, Réfrigérateur
Couvre-plancher
Vinyle
Type de sous-sol
Pas de sous-sol
Caractéristiques du bâtiment
Caractéristiques
Voie d'accès pavée, Entrée simple
Type de fondation
Béton coulé, Dalle en béton
Structures
Terrasse
Chauffage et refroidissement
Type de chauffage
Plinthes chauffantes, Thermopompe murale, (Électrique), Ventilateur récupérateur de chaleur (VRC)
Services publics
Égouts
Égout municipal
Eau
Approvisionnement en eau par la municipalité
Caractéristiques extérieures
Revêtement extérieur
Vinyle
Caractéristiques du quartier
Caractéristiques de la communauté
Installations récréatives
Commodités à proximité
Parc, Terrain de jeu, Transport en commun

Mesures

Superficie totale aménagée
1211 pi2

Pièces

MétriqueImpérial
Niveau principal
Chambre principale
Salon
Chambre à coucher
Chambre à coucher
Cuisine

Terrain

Caractéristiques du terrain
Aménagement paysager
Terrain paysager
Souhaitez-vous visiter cette propriété?
Demander une visite

Inscriptions semblables

Robbie Sehgal