Nous utilisons des témoins et d’autres technologies pour assurer le fonctionnement et la sécurité de nos services en ligne, et pour vous offrir une expérience personnalisée. En continuant à utiliser nos services en ligne, vous acceptez notre Politique de confidentialité et les conditions d’utilisation. Pour obtenir des informations sur la façon de régler vos paramètres de confidentialité, veuillez consulter notre Politique sur les témoins.
Masquer
Accueil ON Comté de Grey Hanover
729 18TH STREET
Directions Imprimer
729 18TH STREET 639 900 $
639 900 $
Masquer
Favoris

729 18TH STREET
Hanover, Ontario N4N0C7

Numéro MLS® : X12578998
2 + 1
Chambres
3
Salles de bain
1100 - 1500
Pieds carrés

Résumé de la propriété

Type de propriété
Unifamiliale
Type de bâtiment
Maison en rangée
Étages
1
Superficie
1100 - 1500 pi2
Titre
Tenure franche
Superficie du terrain
23.7 x 153.4 FT ; 182.86ft x 23.67 ft x 153.40 ftx86.55ft
Âge de l'édifice
Bâtiment neuf
Impôt foncier annuel
0 $
Type de stationnement
Garage attenant, Garage
Sur REALTOR.ca depuis
93 jours

Édifice

Chambres
Au-dessus du niveau du sol
2
Au-dessous du niveau du sol
1
Salles de bain
Total
3
Caractéristiques intérieures
Appareils électroménagers inclus
Chauffe-eau sans réservoir, Chauffe-eau, Adoucisseur d'eau, Lave-vaisselle, Sécheuse, Ouvre-porte de garage, Micro-ondes, Cuisinière, Machine à laver, Réfrigérateur
Caractéristiques du sous-sol
Sous-sol à niveau
Type de sous-sol
Sous-sol complet, Aménagé
Caractéristiques du bâtiment
Caractéristiques
En pente
Type de fondation
Béton coulé
Style
En rangée
Style d'architecture
Bungalow
Protection contre les incendies
Détecteurs de fumée
Commodités qu'offre le bâtiment
Foyer(s)
Location de matérial incluse
Aucun
Structures
Terrasse, Porche
Chauffage et refroidissement
Système de refroidissement
Climatisation centrale, Échangeur d'air
Foyer
2
Type de chauffage
Thermopompe (Électrique), Air pulsé (Gaz naturel)
Services publics
Services publics disponibles
Électricité (Installé), Sans fil (Disponible), Gaz naturel disponible (Disponible), Service d'égout (Installé)
Égouts
Égout sanitaire
Eau
Approvisionnement en eau par la municipalité
Caractéristiques extérieures
Revêtement extérieur
Pierre
Caractéristiques du quartier
Caractéristiques de la communauté
Centre communautaire
Commodités à proximité
Un hôpital, Lieu de culte, Écoles
Stationnement
Type de stationnement
Garage attenant, Garage
Nombre total d'espaces de stationnement
2

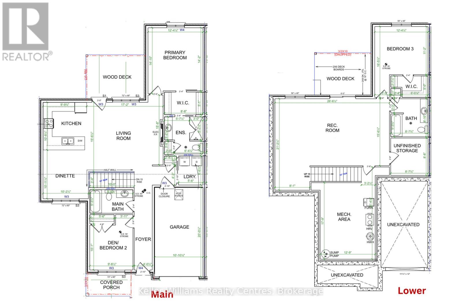
Mesures

Superficie
1100 - 1500 pi2

Pièces

MétriqueImpérial
Niveau principal
Salon
Cuisine
Chambre à coucher
Buanderie
Deuxième chambre
Sous-sol
Salle de jeux, récréative
Troisième chambre
Local de services
Autre

Terrain

Caractéristiques du terrain
Façade
23 pi 8 po
Superficie du terrain
153 pi 4 po
Caractéristiques du bord de l'eau
Eau de surface
rivière/courant
Données fournies par : OnePoint - The Lakelands
Souhaitez-vous visiter cette propriété?
Demander une visite

Inscriptions semblables

TRACEY KIRSTINE