Nous utilisons des témoins et d’autres technologies pour assurer le fonctionnement et la sécurité de nos services en ligne, et pour vous offrir une expérience personnalisée. En continuant à utiliser nos services en ligne, vous acceptez notre Politique de confidentialité et les conditions d’utilisation. Pour obtenir des informations sur la façon de régler vos paramètres de confidentialité, veuillez consulter notre Politique sur les témoins.
Masquer
Accueil ON Grand London Comté de Middlesex London Southcrest
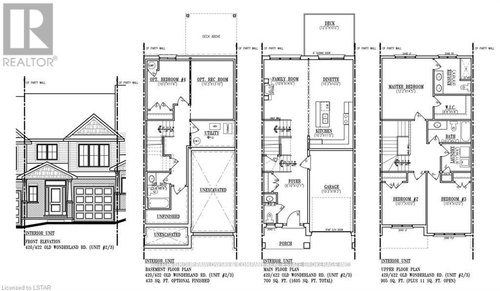
422 OLD WONDERLAND ROAD
Directions Imprimer
422 OLD WONDERLAND ROAD 699 000 $
Prochaine visite libre
7
févr.
699 000 $
Masquer
Favoris

422 OLD WONDERLAND ROAD
London South (South N), Ontario N6K3R2

Numéro MLS® : X12575278
3
Chambres
3
Salles de bain
1400 - 1599
Pieds carrés

Visites libres

7 févr.
14 h - 16 h
8 févr.
14 h - 16 h
14 févr.
14 h - 16 h
15 févr.
14 h - 16 h
21 févr.
14 h - 16 h
22 févr.
14 h - 16 h
28 févr.
14 h - 16 h
1 mars
14 h - 16 h
Tout afficher
Ajouter au calendrier

Résumé de la propriété

Type de propriété
Terrain vacant
Étages
2
Superficie
1400 - 1599 pi2
Titre
Copropriété divise
Superficie du terrain
.
Âge de l'édifice
Bâtiment neuf
Impôt foncier annuel
0 $
Type de stationnement
Garage attenant, Garage
Sur REALTOR.ca depuis
73 jours

Édifice

Chambres
Au-dessus du niveau du sol
3
Salles de bain
Total
3
Partielle
1
Caractéristiques intérieures
Appareils électroménagers inclus
Télécommande(s) d'ouvre-porte de garage, Lave-vaisselle, Sécheuse, Hotte, Cuisinière, Machine à laver, Réfrigérateur
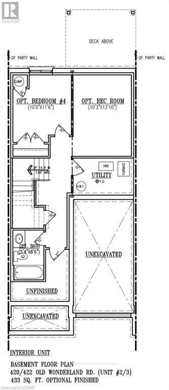
Type de sous-sol
Sous-sol complet (Non aménagé)
Caractéristiques du bâtiment
Caractéristiques
Cul-de-sac, Zone boisée, Pompe de vidange
Type de fondation
Béton coulé
Commodités qu'offre le bâtiment
Stationnement pour les visiteurs
Location de matérial incluse
Chauffe-eau sans réservoir, Chauffe-eau
Structures
Terrasse
Chauffage et refroidissement
Système de refroidissement
Climatisation centrale
Type de chauffage
Air pulsé (Gaz naturel)
Caractéristiques extérieures
Revêtement extérieur
Brique, Bardage en vinyle
Caractéristiques du quartier
Caractéristiques de la communauté
Animaux permis avec restrictions, Autobus scolaire
Commodités à proximité
Parc, Lieu de culte, Transport en commun
Infos entretien ou copropriété
Frais d'entretien
175 $ mois
Les frais d'entretien comprennent
Parking, Assurance, Entretien de la zone commune
Société de gestion de l'entretien
Arnsby Property Management
Stationnement
Type de stationnement
Garage attenant, Garage
Nombre total d'espaces de stationnement
2

Mesures

Superficie
1400 - 1599 pi2

Pièces

MétriqueImpérial
Niveau principal
Vestibule
Cuisine
Salle de repas
Salle familiale
Salle de bain
Deuxième niveau
Salle de bain
Chambre principale
Deuxième chambre
Troisième chambre
Buanderie
Salle de bain
Souhaitez-vous visiter cette propriété?
Demander une visite

Inscriptions semblables

LINDA WILSON