Nous utilisons des témoins et d’autres technologies pour assurer le fonctionnement et la sécurité de nos services en ligne, et pour vous offrir une expérience personnalisée. En continuant à utiliser nos services en ligne, vous acceptez notre Politique de confidentialité et les conditions d’utilisation. Pour obtenir des informations sur la façon de régler vos paramètres de confidentialité, veuillez consulter notre Politique sur les témoins.
Masquer
Accueil ON Comté de Lanark Drummond-North Elmsley
000 CORNELIA STREET WEST STREET
Directions Imprimer
000 CORNELIA STREET WEST STREET 950 000 $
950 000 $
Masquer
Favoris

000 CORNELIA STREET WEST STREET
Drummond/North Elmsley, Ontario K7A4S4

Numéro MLS® : X12570862

Résumé de la propriété

Type de propriété
Industriel
Type de bâtiment
Entrepôt
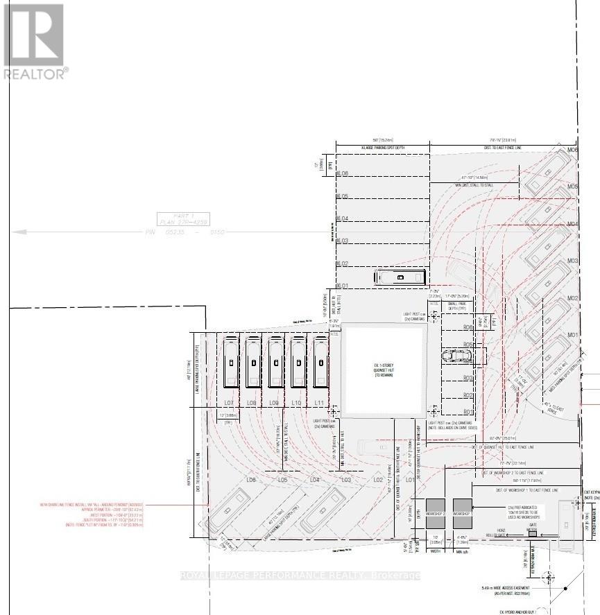
Superficie du terrain
7 a
Âge de l'édifice
0 à 5 ans
Impôt foncier annuel
546 $
Nombre total d'espaces de stationnement
10
Sur REALTOR.ca depuis
22 jours

Édifice

Chauffage et refroidissement
Système de refroidissement
Partiellement climatisé
Type de chauffage
Ventilo-convecteur
Entreprise
Type d'entreprise
Industriel (Entrepôt)
Caractéristiques du quartier
Commodités à proximité
Autoroute
Stationnement
Nombre total d'espaces de stationnement
10

Mesures

Superficie
4360 pi2

Terrain

Caractéristiques du terrain
Façade
626 pi 10 po
Superficie du terrain
512 pi 3 po
Données fournies par : Ottawa Real Estate Board
Souhaitez-vous visiter cette propriété?
Demander une visite

Bruce Firestone