Nous utilisons des témoins et d’autres technologies pour assurer le fonctionnement et la sécurité de nos services en ligne, et pour vous offrir une expérience personnalisée. En continuant à utiliser nos services en ligne, vous acceptez notre Politique de confidentialité et les conditions d’utilisation. Pour obtenir des informations sur la façon de régler vos paramètres de confidentialité, veuillez consulter notre Politique sur les témoins.
Masquer
Accueil MB Grand Winnipeg Division No. 10 St. François Xavier
136 Rosser Road
Directions Imprimer
136 Rosser Road 549 900 $
549 900 $
Masquer
Favoris

136 Rosser Road
St Francois Xavier, Manitoba R4L0A4

Numéro MLS® : 202528920
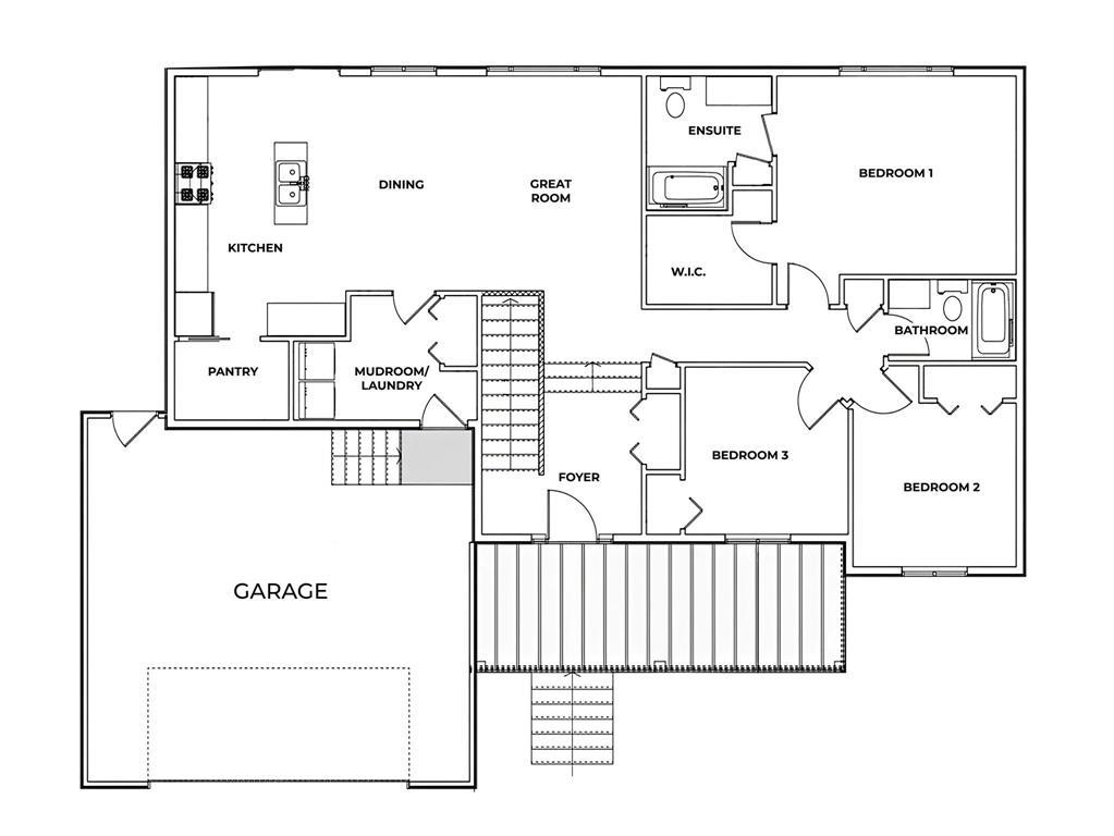
3
Chambres
2
Salles de bain
1413
Pieds carrés

Résumé de la propriété

Type de propriété
Unifamiliale
Type de bâtiment
Unifamilial
Étages
1
Superficie
1413 pi2
Titre
Tenure franche
Superficie du terrain
102 x 312
Date de construction
2025
Impôt foncier annuel
0 $
Type de stationnement
Garage attenant, Autre
Sur REALTOR.ca depuis
19 jours

Édifice

Salles de bain
Total
2
Partielle
0
Caractéristiques intérieures
Appareils électroménagers inclus
Hotte
Couvre-plancher
Planche vinyle
Caractéristiques du bâtiment
Caractéristiques
Aucune voie d'accès à l'arrière, Murs extérieurs - 2"x6", Ventilation, sortie centralisée, Pompe de vidange, Plancher de sous-sol en bois structural
Style d'architecture
Bungalow surélevé
Protection contre les incendies
Détecteurs de fumée
Chauffage et refroidissement
Système de refroidissement
Climatisation centrale
Type de chauffage
Ventilateur récupérateur de chaleur (VRC), Air pulsé (Électrique)
Services publics
Eau
Approvisionnement en eau par la municipalité
Stationnement
Type de stationnement
Garage attenant, Autre

Mesures

Superficie
1413 pi2

Pièces

MétriqueImpérial
Niveau principal
Chambre à coucher
Chambre à coucher
Chambre principale
Grande salle
Salle à manger
Cuisine

Terrain

Caractéristiques du terrain
Façade
102 pi
Superficie du terrain
312 pi
Type de route
Route revêtue
Données fournies par : Winnipeg Regional Real Estate Board
Souhaitez-vous visiter cette propriété?
Demander une visite

Inscriptions semblables

James Boschman